Кресло качалка своими руками. Чертежи, 188 фото, размеры
Кресло качалка своими руками простоВ этой статье мы рассмотрим пошаговые мастер классы о том, как сделать кресло качалку своими руками из дерева, металла, фанеры, катушки для проводов. К креслу качалке, изготовление, чертежи, макеты и схемы сборки, которого мы будем рассматривать ниже, будем относить так же и качающийся стул и шезлонг для дачи.
Кресло качалка без гвоздей своими руками
Посмотрите по пошаговым фото ниже как сделать кресло-качалку без единого гвоздя самостоятельно. Автор купил лист фанеры, вырезал из него детали данного качающегося стула и склеил детали между собой. На фото в галереи приведены чертежи сделанные автором от руки для трех основных деталей, которые вы сами можете перенести в любой масштаб.
Мастер класс с пошаговыми фото изготовления
Источник фото: www.instructables.com/id/Childs-Rocking-Chair-Without-any-nails-or-screws. Автор: paracordbraider
Чертежи из фанеры кресло-качалки

Простое кресло качалка своими руками
Автор этого качающего стула нашел на улице деревянное основание от кровати и сделал из него креслок качалку. Как он это сделал вы можете посмотреть на пошаговых фото ниже.
Источник фото: www.instructables.com/id/Childs-Rocking-Chair-Without-any-nails-or-screws. Автор: paracordbraider
Кресло качалка для сада из фанеры. Чертежи

Кресло качалка из клена с плетенной спинкой и сиденьем.
Довольно сложный по изготовлению стул. Некоторые части автор вырезал на ЧПУ станке по самостоятельно нарисованным чертежам, а некоторые приходилось допиливать в ручную. Автор использовал клен, это довольно твердое дерево, поэтому для придания необходимых форм приходилось подолгу замачивать некоторые части в кипятке. Особой работы требует обмотка спинки и сиденья, как это сделать смотрите на пошаговых фото и в этом видео на ютубе
Источник фото: www.instructables.com/id/Grandpys-Rocking-Chair. Автор: Wood Crow
Чертежи простого кресла-качалки

Качающийся стул из металлических стержней
Своими руками
Качающийся стул из металлических труб, ещё можно назвать этот предмет мебели качающийся шезлонг или гамак (тут уж кому, что больше видится в этом предмете). Автор сделал это кресло из 20 мм стержней, конечно проще бы было использовать трубы, в таком случае конструкция получилась бы намного легче. Но автор учел свой сварочный опыт и пришел к выводу, что трубы у него не удастся так крепко сварить, и он решил обезопаситься металлическими стержнями в 22 мм. (к тому же сгибание труб тоже требует определенного навыка и инструмента). Особую трудность представляет сгибание столь прочных и толстых стержней, для этого он использовал дерево во дворе и рычаг в виде насаженной на стержень дополнительной трубы. Постепенно сгибая и перемещая стержень между деревьями удается добиться необходимой дуги.
Как же сделать такую металлическое кресло качалку вы можете посмотреть из пошаговых фото ниже. Автор отмечает, что следует лучше продумать чертеж, что бы сделать центр тяжести так, что бы кресло не так сильно отклонялось назад (на последнем фото, для лучшего вида кресло подпёрто сзади)
Источник фото: www.instructables.com/id/Minimalist-Steel-Rocking-Chair. Автор: Henri.Lacoste
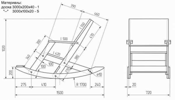
Чертеж. Кресло-качалка своими руками (из дерева, фанеры)

Кресло качалка из кабельной катушки

Как видите из фото, катушка разбирается, в кругах вырезается паз для досок, переставляются стержни вниз, под будущее сиденье и все скрепляется. Получается не очень сложно и довольно симпатичное кресло.
Источник фото: www.instructables.com/id/DIY-Cable-Drum-Rocking-Chair. Автор: libskie
Деревянный стул качалка Адирондак
Здесь мы видим качающися стул (или кресло качалку) в стиле Адирондак, что является давольно необычным сочетанием. Обратите внимание на высоту спинки, которая сделана достаточной длины, что бы на неё можно было отклонить голову для отдыха.
Очень важно изготовить правильной формы коромысло, которое обеспечивает качание. При изготовлении такого стула внимательно изучите его форму.
Скачать более подробные инструкции по изготовлению со схемой сборки вы можете по этой ссылке
Источник фото: www.instructables.com/id/Adirondack-Rocking-Chair Автор: plansinwood
Схемы и чертежи кресло качалки
300 фото стул качалка своими руками
novamett.ru
Кресло качалка своими руками. Чертежи, 188 фото, размеры
Кресло качалка своими руками простоВ этой статье мы рассмотрим пошаговые мастер классы о том, как сделать кресло качалку своими руками из дерева, металла, фанеры, катушки для проводов. К креслу качалке, изготовление, чертежи, макеты и схемы сборки, которого мы будем рассматривать ниже, будем относить так же и качающийся стул и шезлонг для дачи.
Кресло качалка без гвоздей своими руками
Посмотрите по пошаговым фото ниже как сделать кресло-качалку без единого гвоздя самостоятельно. Автор купил лист фанеры, вырезал из него детали данного качающегося стула и склеил детали между собой. На фото в галереи приведены чертежи сделанные автором от руки для трех основных деталей, которые вы сами можете перенести в любой масштаб.
Мастер класс с пошаговыми фото изготовления
Источник фото: www.instructables.com/id/Childs-Rocking-Chair-Without-any-nails-or-screws. Автор: paracordbraider
Чертежи из фанеры кресло-качалки

Простое кресло качалка своими руками
Автор этого качающего стула нашел на улице деревянное основание от кровати и сделал из него креслок качалку. Как он это сделал вы можете посмотреть на пошаговых фото ниже.
Источник фото: www.instructables.com/id/Childs-Rocking-Chair-Without-any-nails-or-screws. Автор: paracordbraider
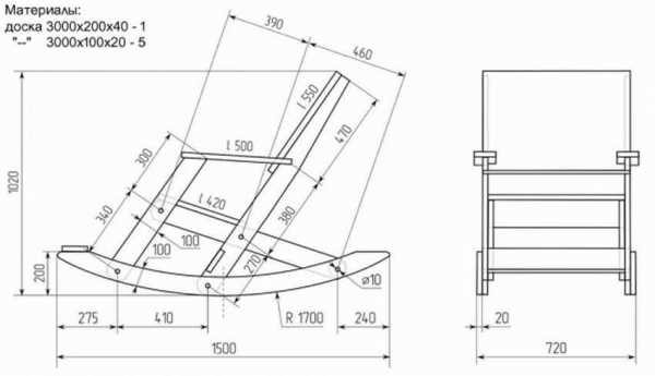
Кресло качалка для сада из фанеры. Чертежи

Кресло качалка из клена с плетенной спинкой и сиденьем.
Довольно сложный по изготовлению стул. Некоторые части автор вырезал на ЧПУ станке по самостоятельно нарисованным чертежам, а некоторые приходилось допиливать в ручную. Автор использовал клен, это довольно твердое дерево, поэтому для придания необходимых форм приходилось подолгу замачивать некоторые части в кипятке. Особой работы требует обмотка спинки и сиденья, как это сделать смотрите на пошаговых фото и в этом видео на ютубе
Источник фото: www.instructables.com/id/Grandpys-Rocking-Chair. Автор: Wood Crow
Чертежи простого кресла-качалки

Качающийся стул из металлических стержней
Своими руками

Как же сделать такую металлическое кресло качалку вы можете посмотреть из пошаговых фото ниже. Автор отмечает, что следует лучше продумать чертеж, что бы сделать центр тяжести так, что бы кресло не так сильно отклонялось назад (на последнем фото, для лучшего вида кресло подпёрто сзади)
Источник фото: www.instructables.com/id/Minimalist-Steel-Rocking-Chair. Автор: Henri.Lacoste
Чертеж. Кресло-качалка своими руками (из дерева, фанеры)

Кресло качалка из кабельной катушки
Если у вас есть никому кроме вас не принадлежащая катушка из под кабеля, то вы можете сделать из неё вот такое кресло качалку. Ниже вы можете посмотреть подробный пошаговый мастер класс как делается такое кресло качалка.
Как видите из фото, катушка разбирается, в кругах вырезается паз для досок, переставляются стержни вниз, под будущее сиденье и все скрепляется. Получается не очень сложно и довольно симпатичное кресло.
Источник фото: www.instructables.com/id/DIY-Cable-Drum-Rocking-Chair. Автор: libskie
Деревянный стул качалка Адирондак
Здесь мы видим качающися стул (или кресло качалку) в стиле Адирондак, что является давольно необычным сочетанием. Обратите внимание на высоту спинки, которая сделана достаточной длины, что бы на неё можно было отклонить голову для отдыха.
Очень важно изготовить правильной формы коромысло, которое обеспечивает качание. При изготовлении такого стула внимательно изучите его форму.
Скачать более подробные инструкции по изготовлению со схемой сборки вы можете по этой ссылке
Источник фото: www.instructables.com/id/Adirondack-Rocking-Chair Автор: plansinwood
Схемы и чертежи кресло качалки
300 фото стул качалка своими руками
www.novamett.ru
фото, чертежи и ход работы

Кресло-качалка у всех ассоциируется с комфортом и уютом, и сразу хочется расположиться в ней у камина в загородном доме с чашечкой горячего кофе. Это очень красивый и оригинальный элемент интерьера, который вписывается почти в любой стиль. Кроме того, качаться на кресле полезно для здоровья. Так можно расслабиться, снять стресс, набраться сил, спокойно почитать любимую книгу, послушать музыку или просто подремать. Кресло качалку можно сделать своими руками из дерева, рассмотрим примеры с фото, чертежи и ход работы по нескольким технологиям.
Особенности конструкций из дерева
Чаще всего мебель изготавливают из древесины, поэтому кресло-качалка не стала исключением. Почему же многие выбирают именно этот материал:
- Древесина экологична и не вредна для здоровья, материал не выделяет токсичных летучих веществ.
- Дерево является прочным материалом, подходящим для создания массивных конструкций.
- Долговечность.
- Можно воплотить любую идею и создать дизайнерские элементы интерьера.
- Дерево легко и быстро обрабатывается, в нем можно вырезать любые орнаменты и узоры, придавать любую форму, красить и покрывать лаком.
- Широкий ассортимент и большой выбор цветовых решений.
- Возможность выбора различных форм и размеров, а также изготовление на заказ.
- Привлекательный внешний вид в этической стороне вопроса.
- Устойчивость к повышенной влажности и лучам ультрафиолета.

Чем привлекательно такое кресло:
- Данный предмет мебели способен успокоить нервы и эффективно снять стресс за счет легких и ритмичных покачиваний. Иногда его используют для достижения полного расслабления и состояния транса.
- Активизируется парасимпатическая нервная система, а сам организм при этом приходит в состояние спокойствия и комфорта.
- Можно отвлечься от неприятных мыслей, воспоминаний и повседневной рутины. При этом все мышцы расслабляются, тело способно полноценно отдохнуть, набраться сил и восстановиться.

- Кресло может помочь устранить проблемы с засыпанием. Все эти манипуляции в виде легких раскачиваний способны вызвать глубокий сон.
- Помогает больным тахикардией при помощи темпа, успокаивающего сердечную мышцу. Также происходит тренировка вестибулярного аппарата.
- В кресле можно сразу сконцентрироваться и навести порядок в своих мыслях.
- Его можно разместить в офисе, также у себя дома или на дачном участке. Также можно подобрать кресло по габаритам конкретного человека.

Как сделать кресло качалку своими руками из дерева по чертежам показано на видео с инструкцией и ходом работы.
Разновидности кресел
Существует множество различных моделей кресел, все они могут отличаться по своей функциональности, габаритам, стилю исполнения, материалам и наличием дополнительных гаджетов. Мы всегда выбираем мебель, сходя из своих предпочтений и привычек, и кресло-качалка не стала исключением.
Рассмотрим несколько вариантов конструкций качалок:
- Кресло способно мягко и плавно раскачиваться благодаря радиусным полозьям. Однако при такой конструкции на радиусах приспособление необходимо сделать на низкой посадке. Иначе кресло может опрокинуться, что приведет к неприятным последствиям. Чтобы качалка была выше, на полозья устанавливают отбойники. Чтобы встать, необходимо немного напрячься и наклониться вперед.
- Если у вас кресло, имеющее полозья переменной кривизны, то случайное опрокидывание исключено. Такие изделия подойдут любителям отдохнуть с разным телосложением, в них комфортно, удобно и безопасно. Высаживание происходит мягко и плавно.
Кресло в переменной кривизной - Качалки с колыбелью конструируют специально для мам с маленькими детьми. Здесь предусмотрены только полозья переменной кривизны, что делает кресло надежным и безопасным.
- Качалка-нирвана является конструкцией на эллипсных полозьях. Раскачивание мягкое, почти блаженное и успокаивающее. Однако сильно раскачиваться не стоит, может произойти опрокидывание. По этой причине необходимо снабжать кресло отбойниками, иногда передние совмещены с подножкой.
Качалка нирвана - Есть разновидность качалок нирвана на рессорах, однако сделать такое кресло своими руками будет весьма сложно. Вам потребуются особые породы древесины, а, возможно, даже и обрезиненная конструкция.
- Садовые качалки-лежалки защищены от опрокидывания тентом на эллипсах.
Садовая лежалка
Технология работы
Чтобы разобраться, как сделать кресло качалку своими руками из дерева по чертежам и нужным размерам, нужно приобрести все необходимые материалы и инструменты:
- Шуруповерт.
- Малярная кисточка для заполнения отверстий крепежа.
- Молоток.
- Прямой уголок с линейкой.
- Дисковая машина для шлифовки.
- Саморезы.
- Электролобзик для вырезания заготовок.
- Струбцина.
1 способ
Для создания кресла-качалки можно использовать обыкновенный стул, укоротив ему ножки и прикрепив данную конструкцию на полозьях. Чтобы внешний вид был привлекательным, стул можно оплести лентами из кожи или пластика. При желании можно также сшить самостоятельно чехол для качалки.
Чтобы сделать конструкцию более интересной формы, из фанеры можно вырезать боковины по заранее рассчитанному лекалу. Края фанеры следует хорошо обработать.

Края фанеры
Затем две получившиеся детали соединяем друг с другом при помощи трех брусков (30*50*600 мм).
Чтобы выложить верхнюю часть, используем тонкие доски и планки из фанеры (10*50*600 мм).

В некоторых случаях длину можно увеличить, чтобы планки выступали за края боковин. После сборки кресла его можно покрыть лаком или покрасить.

2 способ
Начинаем процесс создания качалки с чертежа. Для качественного результата эскиз обязателен. Кроме того, мы сможем избавить себя от сильных погрешностей в расчетах количества материала.

Техника работы:
- Берем металлическую сетку, где каждая клетка-ячейка равна 1 сантиметру, чтобы создать шаблон для боковушки. Затем переносим этот шаблон на бумагу, чтобы было легче размечать контур на фанере. Главное, чтобы соблюдалась симметричность обеих боковин.
- Приступаем к вырезке деталей. Необходимо подготовить фанеру толщиной 3 сантиметра. Вырезаем из нее 3 рамы (120*800 мм). Боковые части выпиливаем при помощи электрического лобзика по лекалу.

- Из бруска (50*25 мм) выпиливаем 35 элементов, длина у каждого должна быть 120 сантиметров. Это заготовки для будущей спинки и сиденья.
- Приступаем к обработке всех заготовок. Поверхности обрабатываем шлифовальной машинкой, уделяя особенное внимание торцам.
- Не должно оставаться волокон, они выравниваются молотком и затем обрабатываются горячей олифой. Таким образом, торцы станут влагоустойчивыми, а само кресло прослужит дольше. Олифой необходимо обработать поверхность дважды.
- Приступаем к сборке кресла качалки своими руками из дерева по фото и чертежам. Скрепляем две боковины, нанеся предварительно отметки в местах их соединения. Фиксация должна происходить сверху в месте расположения головы, в середине и в ногах при помощи царгов.

- Чтобы монтировать стягивающие планки к боковине, необходимо использовать специальную стяжку из шурупов — конфирмат. Делаем в боковине отверстия 8 мм, а в торце – 5 мм.
- Приступаем к монтажу сидения. Чтобы прикрепить его к основанию, нам понадобится 35 брусов с 4 отверстиями в каждом из них (по 2 отверстия с обеих сторон). Фиксируем брусы к боковине саморезами. Важно всегда проверять, чтобы установка производилась строго горизонтально. Сборка закончена.
- Приступаем к обработке кресла. Финишная облицовка изделия должна быть выполнена качественно и правильно. Шпаклевкой обрабатываем отверстия над и около саморезов, затем покрываем кресло антисептиком, после чего наносим лак для создания влагоотталкивающего слоя. Лак наносится дважды, после высыхания первого слоя. Кресло готово!
3 способ
Соберем кресло качалку по чертежу, используя качественные сорта древесины. В качестве основы используем обычный деревянный стул. Все детали будут монтироваться под прямым углом, поэтому не нужно дополнительно вырезать много элементов.
- В качестве основы нам будет служить размер сидения стула и высота его ножек. Все соединяющие элементы должны вырезаться строго под данные размеры.

- Приступаем к нарезке деталей. Толщина сидушки должна быть от 1 до 1,5 сантиметров. Высота задних ножек должна быть от 105 до 110 сантиметров, а передних – от 55 до 60 сантиметров. В качестве поперечных соединительных деталей для конструкции будем использовать рейки 57*4*1,5 сантиметров (длина*высота*толщина).
- Приступаем к соединению всех деталей конструкции, используя метод крепления в шип. Для этого наносим на все деревянные детали разметку, затем вырезаем в ножках пазы (2*1,5 см), имеющие глубину в 2 сантиметра. Чтобы соединить пазы и рейки, их концы нужно обработать специальным клеем.
Крепление в шип - Чтобы произвести окончательное крепление всех элементов, устанавливаем прокладку между качалкой и струбциной. Струбцину необходимо затянуть, после чего оставить изделие на 24 часа.
- Приступаем к установке полозьев. Чтобы выполнить ее быстро и грамотно, нам понадобиться фанерный лист толщиной до 1,5 сантиметра. По лекалу из листа вырезаем метровые одинаковые заготовки.
Вырезаем заготовки - На ножках качалки прорезаем отверстия в ширину 1,5 см, чтобы подходили по толщине к полозьям. При этом глубина может быть от 7 до 10 сантиметров.
- Производим шлифовку краев всех полозьев, затем вставляем их в прорези. Там, где была произведена посадка полозьев, прорезаем отверстие насквозь с диаметром в 2 сантиметра. Затем наносим на отверстие строительный клей, после чего устанавливаем в него шип из древесины.
Шлифовка - Теперь мы должны проверить равновесие. Чтобы качалка была хорошо сбалансирована, можно устанавливать на полозьях сзади дополнительные поперечные планочки. Также помните, чтобы увеличить вес, вы можете всегда применять несколько декоративных элементов для утяжеления.
Теперь вы можете самостоятельно создать кресло качалку и порадовать своих домочадцев. Главное помните, что изделие может поцарапаться, а материал быстро постареть и потерять свой вид. Поэтому всегда обрабатывайте кресло лаком, чтобы оно долго радовало вас своей красотой и создавало уют в доме.
dekormyhome.ru
Кресло своими руками: качалка, мешок, подвесное
Кресло прежде всего эргономически-функционально: это предмет мебели для отдыха или создания комфортных условий для длительной сидячей работы. Но в то же время кресло в гостиную или спальню престижно и может быть предметом роскоши, поэтому эстетически весьма значимо. Если шторы замыкают собой эстетику интерьера, кресло дает ключ к ее пониманию. А если шторы простенькие, то именно кресло сводит всю меблировку в единый ансамбль. Разумеется, в том случае, когда дизайн интерьера тщательно и со знанием дела продуман. Наконец, садовое или дачное кресло должны вписываться в пейзаж и стойко выносить непогоду, зимовку в холодной кладовке, небрежное обращение.
Разные кресла
Сделать кресло своими руками вполне под силу домашнему мастеру. Столяры-любители делают самостоятельно кресла иной раз весьма высокого уровня, см. рис. Однако произведения высокого мебельного искусства оставим на потом, а настоящую публикацию будем считать начальной и ограничимся в ней образцами, требующими для изготовления самое большее места в гараже, обычного инструмента по дереву и средней степени навыков владения им. Для некоторых дело обойдется вообще только швейными работами. Тем не менее, в стране кресел граница между сугубо утилитарными и элитными экземплярами весьма условна и кое-чему из описанного найдется место и в гостиной. А полученный в ходе работ опыт позволит со временем подступиться и к эксклюзиву.
О набивке и чехлах
Любое мягкое кресло, на жесткой основе или бескаркасное (см. далее), наполняется мягким и достаточно упругим материалом. Конский волос ныне доступен единицам, китовый ус вообще никому не доступен, поэтому любительские кресла набивают чаще всего поролоном или пенопластом (вспененным полистиролом) в гранулах. У них есть общее свойство: они легко электризуются и долго держат в себе статическое электричество, что для здоровья отнюдь не полезно. Поэтому обшивку подушек, матов и пр. мягких узлов мебели делают обязательно 2-слойной: внешней декоративной и внутренней антистатической. Это, кроме того, упрощает уход за декоративной обшивкой и ее замену при необходимости.
Антистатический чехол мягкой мебели шьют из тканей х/б по тем же выкройкам, что декоративный. Альтернативы х/б как разряднику почти нет: сопротивление утечки кресла на деревянных ножках, стоящего на полу из ламината, с внешней обшивкой из очень хорошо электризующегося шелка, с внутренним чехлом из х/б, лежит в пределах 1,8 – 5,6 МОм, что обеспечивает практически мгновенный сток заряда от электрофорной машины. Несколько хуже синтепон: он не гниет, но внешняя обшивка должна быть также антистатической, из натуральных мебельных тканей.
Замечательный по механическим свойствам и сам по себе антистатический наполнитель мягкой мебели – пенополиуретан (ППУ). Но не строительный самовспенивающийся герметик/теплоизолятор, по механике он для мебели не годится, а т. наз. неопрен, вспененный в специальных условиях при изготовлении. Неопрен выпускается гранулами и листами; из последних, кстати, делают гидрокостюмы. Материал это дорогой, особенно листовой, но – голь на выдумки хитра. Из неопрена выполнены вкладыши автомобильных сидений. Поэтому, если вам на глаза попадется предназначенный на свалку драндулет, постарайтесь заполучить его сидушки и спинки. Как металл их все равно не зачтут, а вы, раскромсав вставки, получите отличную набивку для пары кресел.
С чего начнем?
С качалок. Самодельное кресло-качалка даст наиболее ощутимую экономию денег сравнительно с покупными – раз. Изготовление его технологически несложно; из стационарного оборудования достаточно иметь верстак (возможно, тоже самодельный) в каком-нибудь закутке – два. И на даче оно всегда пригодится, даже если дизайн с отделкой от неопытного мастера подгуляли – три. Но делать кресло-качалку своими руками нужно только и только по проверенным образцам, а самостоятельно конструировать можно, лишь имея немалый опыт мебельщика и/или солидные познания в этом деле.

В конструировании кресел-качалок усматривается аналогия с проектированием парусных судов. Там центр парусности (ЦП), расположение которого зависит от конфигурации надводной части (более всего – парусного вооружения), направления и силы ветра, должен всегда быть чуть позади центра вращения (ЦВ) судна. Расположение ЦВ определяется взаимодействием подводной части судна с набегающим потоком воды.
Если ЦП окажется впереди ЦВ, судно на ходу будет склонно к зарыскиванию и плохо держаться на курсе, а с брошенным румпелем/штурвалом увалится под ветер и встанет лагом (бортом) к волне, что чревато катастрофой. Если же ЦП будет далеко за ЦВ, судно без руля приведется к ветру и примет волну на нос, что безопаснее, но на повороты руля станет отзываться вяло и медленно, что также грозит крушением. Поэтому парусники проектируют так, чтобы при любых эволюциях судна (маневры + изменения парусности в любых возможных условиях плавания) ЦП вел себя, как хитрая лиса с собакой: «дразнил» ЦВ, держась к нему поближе сзади, но тут же отбегал чуть-чуть, едва ЦВ приблизится вплотную. В таком случае судно будет достаточно поворотливым, а неуправляемое все-таки приведется к ветру.
В кресле-качалке роль ЦП играет общий центр тяжести (ЦТ) кресла и сидящего в нем человека, а роль ЦВ – линия контакта (ЛК), проходящая через точки касания опорных башмаков (дуг) пола или грунта. Если ЦТ будет далеко впереди ЛК, качаться будет трудно, а при выходе из кресла можно получить от него, простите, пенделя. Если же ЦТ окажется позади ЛК, то возможен «поворот оверкиль», что совсем не смешно: медикам хорошо известны случаи, когда люди ломали себе шею, кувыркнувшись через голову из самодельных качалок. Т.е., чтобы качалка была безопасной, удобной и комфортной, ее ЦТ с седоком любой корпулентности должен всегда быть чуть впереди ЛК.
Примечание: для справки, ЦТ человеческого тела нормальной комплекции находится на границе поясницы и крестца с внутренней стороны позвоночного столба. При движениях и в разных позах его положение меняется мало – за миллионы лет эволюции выработалась кинематическая система, позволяющая нам не валиться набок, протянув руку.
Конструкции кресел-качалок
В силу указанного выше первые кресла-качалки появились сравнительно поздно, не ранее середины XVIII в. К тому времени наука дала технике методы расчета сложных механических систем в динамике и пыхтели первые паровые машины. Что до качалок, то их классическая схема построения – удлиненные кзади дуги с плавно уменьшающимся спереди назад радиусом кривизны, поз. 1 на рис. В такой системе чем дальше назад откачнется сидящий, тем дальше ЛК отодвинется назад от ЦТ и откачнуться еще будет все труднее и труднее вплоть до стопора – задние концы дуг переходят в прямые. Это т. наз. обратно-прогрессивная опора. Ее часто называют просто прогрессивной, т.к. действительно прогрессивная вывалит седока назад от малейшего толчка и потому не применяется. По соображениям эргономики прогрессивные дуги не всегда удобны (если кто-то наступит на пятку дуги, седока дернет), поэтому тогда же придумали выносить подножку качалки вперед, что сдвигает туда же общий ЦТ, поз. 2, но такие кресла пригодны только для людей, под телосложение которых они рассчитаны.
Кресла-качалки на опорных дугах разных типов
Наилучший способ создать кресло-качалку, удобное кому угодно – поставить дуги на рессоры, поз. 3. Сначала рессоры делали деревянными, из тикового дерева или кизила (замены нет). Сейчас рессоры качалок выполняют углепластиковыми (карбон, кевлар) или из спецсталей. Качалки на рессорах, кроме того, долго и плавно качаются от небольшого толчка, убаюкивая седока наинежнейшим образом.
Наиболее просты конструктивно и совершенно безопасны качалки-лестницы, поз. 4. В них косоуры служат одновременно и дугами, причем большая длина их образующих гарантирует от опрокидывания. Но одинарные качалки-лестницы – кресла индивидуального пользования. Если в такую сядет кто-то другой, с ЦТ, хоть немного смещенным от расчетного, ему или тяжело будет раскачаться, или он окажется лежащим коленками в небо. Поэтому по схеме лестницы выполняется, как правило, парное садовое кресло- или скамейка-качалка. В этом случае общему ЦТ седоков меньше вероятности уйти из расчетной области, а большая опорная площадь дуг обеспечивает раскачивание при установке качалки прямо на грунт. Устройство и размеры парной садовой качалки показаны на рис. Обивка сиденья – рейки 30х50; продолины – доска 100х30.

Парное садовое кресло-качалка

Чертежи классического кресла-качалки
Образцы изделий
На след. рис. – чертежи классического кресла-качалки, относительно несложного и не особо материалоемкого, но пригодного и на дачу, и в гостиную. Подушки сиденья и спинки в последнем случае выполняются толщиной 5-7 см по технологиии, описанной далее.
Следующий вариант – садовая качалка из досок, см. рис. Уширенные дуги предназначены для установки на грунт. При создании конструкции учтен тот факт, что на газоне или гравии от одного толчка все равно долго не покачаешься. Это дало возможность отнести ЦТ больше вперед от ЛК за счет выноса сиденья, а дуги применить простые радиусные. Кроме того, полученный запас устойчивости позволил сделать спинку регулируемой по наклону.
Чертежи садового кресла-качалки с регулируемой спинкой
Качалка на рис. выше конструктивно уже близка к качалке-шезлонгу, в которой фиксация ЦТ седока относительно ЛК обеспечивается самой его позой; попросту – довольно глубоким провалом дражайших частей и, соответственно, низко расположенным общим ЦТ. Чертежи пары качалок-шезлонгов приведены на след. рис. Слева – на вид поэлегантнее, но материалоемкого: для каждой из фасонных боковин понадобится целый лист фанеры толщиной 20 мм. Справа – попроще и экономнее. Дуги шириной 60 мм 4-слойные: 2 средних вырезаются заодно с соответствующими деталями боковин из 15-мм фанеры, и к ним добавляются накладки, вырезанные отдельно. Все это вместе делает конструкцию очень прочной, а добавочное смещение ее собственного ЦТ вниз за счет тяжеловатых дуг и достаточно устойчивой к опрокидыванию.

Чертежи качалок-шезлонгов
Еще на дачу и не только
Качалка-шезлонг не всем по нраву; большинство отдыхающих предпочитают принимать солнечные ванны в шезлонгах обычных хотя бы потому что их сложенными можно возить на верхнем багажнике. На такой случай – на рис. чертежи шезлонга для дачи, пикника или пляжа. Отличие от типовых образцов – не требующая фасонного металла система регулировки наклона спинки, что, однако, требует выполнения детали 1, а также круглых поперечин, из достаточно твердого дерева.

Чертежи шезлонга
На след. рис. – конструкция любопытная. Это деревянное кресло в исходном варианте пойдет на дачу, но его несложно доработать и во вполне престижное в квартиру:
- Механизм регулировки наклона спинки скрывают, для чего боковины спинки делают без прорезей. Далее к боковинам рамы спинки изнутри прикрепляют шарнирные стальные упоры, а нижние концы их рычагов соединяют на сварке стальным прутом, чтобы образовалась жесткая рамка. Концы прута должны выступать наружу на 15-20 мм. Опорные гребенки переносят на внутренние стороны рамы сиденья;
- Соединения с местах, обозначенных красным, выполняют скрытыми. Проще всего использовать стальные мебельные уголки и накладки в сочетании, чтобы щель со временем не разошлась, с расклиненными шкантами или глухими шипами в пазах на клею;
- Проемы подлокотников заполняют декоративными щитами, изготовленными наподобие мягкого изголовья кровати или деревянными цельными, с резьбой, инкрустацией и т.п. на ваш вкус и смотря по общему дизайну помещения;
- Ставят кресло на капроновые подпятники.
Чертежи кресла для дачи и дома
Примечание: подушки сиденья и спинки толщиной около 10 см шьют, как для описанного далее бескаркасного кресла.
А если без столярки?
Хотя стружки и опилки вовсе не грязь, обработка древесины дело довольно-таки мусорное. В то же время современные материалы и методы раскроя позволяют создавать набивные швейные изделия, держащие форму под нагрузкой без каркаса. Это, пожалуй, главная причина того, что бескаркасная мягкая мебель завоевывает все большую популярность у мастеров и мастериц любителей. Более всего распространены шитые кресла, т.к. вся суть домашнего кресла в мягкой упругости и функционально каркас ему в общем-то и не нужен.

Устройство бескаркасного кресла-мешка
Устройство шитого кресла показано на рис. О назначении двойного чехла, выборе ткани и наполнителя сказано выше; здесь заметим только, что ставить застежку-молнию (зиппер) на внутренний чехол совсем ни к чему. Оба чехла шьются навыворот и последний шов внутреннего после засыпки наполнителя зашивается рубцом наружу. Так проще, дешевле и надежнее, а рубец все равно не виден. Перед сшивкой последнего шва или установки застежки чехол выворачивается наизнанку.
Последний (разъемный) шов внешнего чехла должен быть длиной от 0,8-1 м, т.к. через него придется внешний чехол напяливать на обретший форму внутренний. Если наполнитель цельный (поролон, неопреновый блок), на разъемный шов ставят 2 зиппера половинной длины, застегивающихся навстречу, иначе в несимметричном разрезе внутренний мешок застрянет.

Самодельный люверс
В случае замены зиппера шнуровкой припуски по краям разъемного шва перед тем, как выворачивать чехол, подгибают, проглаживают, в отворот вкладывают плотную прочную тесьму и крылья отворота простегивают. Затем дыроколом пробивают отверстия для шнура с шагом 4-6 см и обрамляют люверсами. В крайнем случае места отверстий надрезают лепестками, накладывают кольцо из проволоки или прочного пластика, лепестки загибают через него и приклеивают ПВА; затем люверс плотно обметывают суровой ниткой (см. рис. слева) и снова проклеивают. В эту общую схему устройства и пошива укладываются несколько разновидностей кресел.
Примечание: припуски на обработку везде в пределах 15-30 мм.
Подушки
Кто, будучи ребенком, на валялся на поставленной торчком подушке? Простейшее шитое кресло и есть большая подушка. Но годится оно разве что для забавы, а для отдыха подходит плохо: или спинки нет, или торчит что-то между ног. А еще оно легко сминается и валится набок. Поэтому кресло-подушка шьется только с виду похожим на подушку под голову, а на деле вполне эргономичным и устойчивым.

Выкройки кресел-подушек
Проще всего выкройка кресла-подушки по поз. а слева на рис. В ней всего 2 детали с изгибом, да и то простым радиусным. Наполнитель – поролон. Но выглядит такая «подушка» угловатой и на взаправдашнюю не очень-то похожа. Чтобы получить кресло элегантнее и более похожее на настоящую смятую подушку, поз. б, нужно днище уменьшить, спинку заузить, а остальные детали обкорнать наискось на 5 см, как показано на рис. В этом случае наполнитель – пенопласт или неопрен.
Пуфик
Конструктивно и по расходу материала на кресло-подушку похоже кресло-пуф, на след. рис. Скроить его сложнее, но у кресел-пуфов есть немаловажное достоинство: они пригодны как игровое и для отдыха детское кресло «от нуля до школы». Но не рабочее, стул для кормления и др. функциональная детская мебель! Привыкнув разваливаться на мягоньком, ребенок сильно рискует испортить осанку!

Кресла-мешки для детей
Кресла-пуфы шьют чаще всего по выкройке из 3-х деталей: обечайка (кольцевая боковина), сиденье, днище. Но в эксплуатации оказывается, что единственный вертикальный шов (или зиппер) скоро расходится или рвется. Поэтому правильнее всего шить кресло-пуф из 5 деталей с вкладышем спереди, как показано на рис. Вкладыш работает аналогично прострочке носков рабочей или военной обуви. На выходных туфлях он не смотрится, но вкладыш кресла можно сделать декоративным, и лишних швов на обечайке не будет.
Мешок и груша
От кресла-пуфа недалеко до кресла-мешка с более высокой спинкой. Простейшее кресло-мешок можно шить из 3-х деталей, как слева на рис. Передний вертикальный шов за счет опоры седока на спинку менее нагружен и вполне надежен.

Выкройки кресла-мешка и кресла-груши
У простого кресла-мешка есть недостатки: наполнитель, особенно пенопластовый, так и норовит расползтись, а спинка не дает полной опоры. От души в таком кресле не развалишься, спинка пойдет на излом. Свободно от этих недугов кресло-груша, справа на рис. Вариант раскроя днища (низа) №2 позволяет сэкономить примерно 0,5 м ткани шириной 1,44 м, т.к. детали по варианту №2 при разметке отреза можно втиснуть между клиньями. Зиппер в любом случае располагается по диаметру днища.
Мяч
Отличный вариант для спортивного ребенка или взрослого – кресло-мяч, см. рис. Раскроить ткань для него не так уж сложно, если пользоваться не размерами из сети, чаще всего неверными и ни к чему не привязанными, а радиусом образующей окружности и центральным углом многоугольника. На рис. они приведены для кресла-мяча диаметром 80 см; для диаметра 60 см будет соответственно 165 и 128 мм при тех же углах.

Шаблоны элементов кресла-мяча
Пошив кресла-мяча имеет некоторые особенности:
- Т.к. разъемный шов короткий, чехол придется шить одинарным из антистатической ткани.
- Чтобы при пошиве не накапливалась погрешность, которая сведет на нет всю работу, шаблоны многоугольников тщательно сверяют, прикладывая сторонами друг к другу. Все стороны обеих шаблонов должны быть одной и той же длины с точностью до 0,5 мм; для 80-см мяча – 100 мм. Непривычно для раскроечных работ, верно? Но при пошиве погрешность-то накапливается. Для 20 6-угольников + 12 5-угольников расхождение может дойти до 0,5х32 = 16 мм и углы тогда никакой затяжкой не сведешь.
- Наполнитель насыпают в чехол через свернутую из картона трубу диаметром от 60 мм. Можно использовать отрезок пластиковой.
- Если мяч будет со шнуровкой, разъемный шов делают с клапаном, как в старых кожаных футбольных мячах, чтобы наполнитель не высыпался.
Примечание: объем наполнителя для описанных кресел-подушек и мяча 80 см около 250 л, а для мешка и груши около 350 л. Внутренний объем засыпают полностью, потом промнется.
Как настоящее
Здесь на рис. – бескаркасное кресло с поролоновым наполнителем, имитирующее корпусное. Подлокотники, если нужны, шьются, как спинка. Все изделие может служить модулем, из которых набирается диван, кресло-кровать и т.п. Основа – плиты поролона марки (плотности) 40-45 толщиной 10 см, склеенные ПВА попарно до толщины 20 см, поз. 1. Зипперы сиденья и подножья располагаются сзади, а спинки/подлокотников снизу. Они обязательно парные, поз. 2, т.к. затолкать поролон в любом чехле в глубокую полость через несимметричный разъемный шов очень трудно.

Бескаркасное кресло в квартиру
Примечание: таким же способом, но из поролона меньшей толщины, выполняются подушки сидений и спинок некоторых описанных выше и далее кресел.
Языки для сшивки элементов кресла шириной около 10 см (поз. 3) не дают полной гарантии от смещения вбок с перекосом, поэтому по углам с отступом от краев около 7 см пришиваются пары кнопок, поз. 4. Спинку/подлокотники пришивают заполненными перед заполнением сиденья, а сиденье с подложкой сшивают после него.
Чтобы нижняя (в сложенном виде) декоративная обшивка не пачкалась и не терлась об пол, кресло желательно уложить на фанерный или дощатый поддон с низкими (ок. 5 см) ножками. Раскладывается оно через низ, поз. 5. В этом случае получается хорошая временная, скажем, на даче, кроватка для ребенка. А если немного сэкономить на поролоне и за счет выгаданной высоты удлинить ножки, по получится неплохой шезлонг на веранду, поз. 6. Чтобы, опять-таки, нижнее (в разложенном виде) ребро подножки не изнашивалось, его обшивают, прихватив и уголок, техтканью. В сложенном виде обшивка окажется сзади между подушек и почти не будет видна.
Еще детям…
Дети очень любят чувствовать себя взрослыми. Если это ощущение дать им на время достаточно продолжительных кропотливых занятий (рукоделия, приготовления уроков), то разовьется усидчивость. Для этого на рис. – детское кресло, экономное, прочное и достаточно удобное. По причинам, указанным выше (скелет ребенка еще не вполне окостенел) мягкими в нем допустимы только подлокотники; в таком случае их делают из обшитого поролона толщиной до 30 мм. Толще не надо, как и расширять сиденье со спинкой или выполнять их изогнутыми, может развиться сколиоз. А затекло тело – пусть полчасика поваляется на пуфе, груше или мяче. Залог правильной осанки – подвижность и периодическая смена поз.

Чертежи детского кресла
Любопытна история детских качалок-лошадок. Судя по данным раскопок, они появились, как только некий первобытный новатор впервые оседлал лошадь. Первоначально их функция была сугубо утилитарной: начальная подготовка будущего конного воина. Однако почувствовать себя наездником ребенку полезно и в наши дни, вестибулярный аппарат и моторика баланса хорошо развиваются. При чем тут кресла? А вот посмотрите, как просто и без ощутимых затрат сделать детское кресло-качалку-лошадку, см. видео:
Видео: детское кресло-качалка-лошадка своими руками
Помимо развития вестибулярки и чувства равновесия, маленький конник будет получать удовольствие, покачиваясь в позе, исключающей деформации опорно-двигательного аппарата.
… и на дачу
Качалка, шезлонг и вообще дачное кресло хороши на веранде или мощеной площадке. На грунте в качалке толком не раскачаешься, а ножки потихоньку тонут и в хорошо ухоженном газоне, заодно портя его. Так что, если есть подходящее дерево, садовое кресло для отдыха имеет полный смысл подвесить. Это лишит его мобильности, зато даст полный покой, уют и единение с природой. Технически вариантов решения 3: кресло-качели, кресло-люлька и кресло-гамак.
Качели
Как устроено деревянное подвесное кресло-качели, показано на рис. Указанная ширина (130 см) – предельная, для парного кресла, для одинарного ее можно уменьшать. Для надежности и упрощения подвески начальные (коренные) концы троса подвеса лучше разделать петлями-коушами, набросить их на бобышки подлокотников (поз. 1), а ходовые концы провести сквозь задние кольца подвеса (поз. 2), перебросить через несущую балку подвеса (сук дерева напр.), ввести в передние кольца и уж тогда зафиксировать стопорными узлами, как показано на рис. На сиденье и спинку можно наложить мягкие подушки, сшитые, как описано выше.

Чертежи кресла-качелей
Люлька
Кресло-качели требует горизонтальной или почти горизонтальной несущей балки, т.к. подвешивается в 2-х точках. Если такой нет, практически на любое дерево можно подвесить кресло-люльку, см. рис. Его основа – обруч диаметром 1,1-1,5 м из стали или пропиленовой водопроводной трубы. Последняя в такой диаметр сгибается без нагрева; тогда стык нужно закрепить круглым вкладышем из твердого дерева, зафиксированным саморезами. Как – показано на рис., как и расположение тросов подвеса. Верхний узел подвеса такой же, как кресла-гамака, см. ниже. Сиденье лучше делать не текстильное, а плетеное, но это уже тема о плетении гамаков.

Подвесное кресло
Кресло-гамак
Кресло-гамак представляет собой гибрид из частей гамака, верхнего подвеса люльки, дополнительной балки и пары полужестких подушек, сшитых книжкой способом, описанным выше, см. рис. справа. Элементы, ведущие начало от гамака, плетутся/вяжутся аналогичными способами. Присущие именно этому креслу особенности – в сиденье со спинкой:
-

Устройство кресла-гамака
Декоративная обшивка прочная, напр. жаккардовая, т.к. несет значительную нагрузку.
- Толщина подушек – 5-10 см.
- Внутренние чехлы из ткани пожестче, напр. брезента.
- Подвеска сиденья обязательно на люверсах. Пропускать шнуры подвески по-парашютному в карманах-кулисах под сиденьем и спинкой нежелательно: под сиденьем они будут очень хорошо ощущаться пятой точкой, а под спинкой скоро протрут кулисы.
- Крылья под люверсы шириной 10-15 см со вкладышами из прочной толстой тесьмы.
Из обрезков
Дачное кресло, показанное на рис., примечательно не только довольно оригинальным внешним видом. Оно изготовлено из распущенных на брусья квадратного сечения обрезков мебельного массива толщиной 28 мм. Ну жалко же пускать дорогущий высококачественный материал на дрова или затычки-заплаты какие-то. Доски сиденья и спинки – фанерные, на них укладываются мягкие подушки (см. выше) 7-10 см толщиной.

Дачное кресло из обрезков массива дерева
Адирондаки
Адирондак – малолюдная довольно живописная гористо-лесистая местность на границе США и Канады. Его обитатели пользуются репутацией своенравных упрямцев и давно придумали свое собственное кресло для любования родным краем. У широкой публики интерес к Адирондаку и его креслам пробудился после написания в 1951 г. Рокуэллом Кентом картины «Адирондакская осень», см. рис; художник много работал в тех краях. По кончине Р. Кента в 1971 г. кто-то из наследников то ли продал, то ли подарил «Адирондакскую осень» Худфонду СССР. В центральные хранилища ее не поместили: не забыли, что Р. Кент когда-то выступал на войну во Вьетнаме, передали Одесскому музею западного и восточного искусства, где автору этих строк и довелось ее видеть в начале 80-х.

Рокуэлл Кент, “Адирондакская осень”
К сожалению, в репродукциях картины Кента непоправимо блекнут: никакая печать не в состоянии передать тонкого буйства красок, которые художник умел создавать на полотне. Ныне Рокуэлл Кент известен широким массам более по ч/б иллюстрациям к «Моби Дику»; «Адирондакская осень» в сети отыскивается разве что в виде дрянных сканов с муаром. Но адирондакским креслам повезло больше, они популярны до того, что название их стало нарицательным, вплоть до кресел-адирондаков или просто адирондаков.
Конструктивно кресла-адирондаки, надо сказать, весьма удачны: просты, дешевы, технологичны. Поддерживающая спинку поперечина придает им отменную прочность и жесткость, а большая опорная поверхность задних ножек, на которые приходится основная часть рабочей нагрузки, обеспечивает малое давление на грунт. По эстетике кресла-адирондаки отлично вписываются в дикую природу, а их широкие подлокотники могут служить столиками. Жители Адирондака, между прочим, пользуются и славой непревзойденных мастеров самогоноварения. Клиффорд Саймак признавался, что своего Алле-Опа в «Заповеднике гоблинов» списал с адиронакца. По перечисленным причинам кресла адирондакского типа делают в самых различных модификациях, см. рис.
Садовые кресла типа “Адирондак”

Чертежи кресла “Адирондак” из фанеры
Чертежей кресел-адирондаков в мировой сети гуляет достаточно. Здесь мы приводим относительно мало известный вариант из фанеры толщиной 20 мм. Его отличительная особенность – всего 2 криволинейные детали (подлокотники) с простыми радиусными изгибами. На сиденье и спинку по желанию укладываются поролоновые подушки толщиной 5-10 см.
Что нежелательно
Достаточно простых самодельных кресел, как видим, существует множество. Но есть конструкции, за которые лучше не браться при всем желании и умении. Это, во-первых, офисное кресло. Требования к его эргономике кардинально отличны от таковых к домашнему для отдыха: оно должно создавать комфорт не расслабляющий, а долгое время поддерживающий работоспособность. Технологически это достигается применением деталей сложной формы из высококачественных материалов. А их изготовление, в свою очередь требует промышленных условий с оборудованием прессо-штамповочным, для пластикового литья, TIG/MIG сварки и др. Кроме того, газлифт при покупке штучно в розницу может обойтись дороже готового кресла; делают же газлифты уже машиностроительные предприятия с оборудованием для прецизионной металообработки.
Примечание: компьютерное кресло отличается от офисного в сущности только названием, и все сказанное выше относится к нему в полной мере.
Во-вторых, кресла из картона. Упаковочный картон с внутренним гофром материал замечательный во многих отношениях и находит самое широкое применение. Но не для кресел. В принципе, соорудить кресло из картона не так уж сложно, см. рис., и его общая прочность будет весьма высокой. Но – увы! – даже упрочненный любым способом картон легко сминается с торца и сиденье кресла очень скоро просядет. А толчок чем угодно твердым, хоть пылесосом, оставит неустранимую вмятину.
Этапы изготовления кресла из картона
Напоследок о необычном
Тем не менее, картон в создании кресел весьма полезен. Напр., для моделирования уникальных кресел, поз. 1 на рис. Листы картона склеивают до толщины выбранной фанеры или доски, режут на заготовки и собирают из них модель, садиться на которую, конечно, нельзя. После подгонки модель разбирают и получают набор шаблонов для нарезки основного материала. Правда, хотя заполнить промежутки скелета пенопластом или пенопленом несложно, но, чтобы обтянуть такое кресло мягким и обшить декоративной тканью, нужно быть закройщицей и швеей-асом.
Необычные самодельные кресла
Кресла из войлока или шинельного сукна, поз. 2, обшитых поролоновых кубиков (сиденье поддерживается скрытым фанерным вкладышем), поз. 3, или водопроводных труб, поз. 4, уже требуют более выдумки, чем высокого мастерства. Войлочное и трубчатое, разумеется, влетят в копеечку. Но кресло из кубиков под силу даже далеко еще не взрослым мастерам и мастерицам. А собственноручно изготовленное кресло маме ко Дню Рождения – это же реально круче не бывает.
В целом кресла, даже не доходя до сложных представительных, дают простор творческому самовыражению как мало какой еще предмет мебели и вообще самоделки. Так что, раз уж пошли кресла – твори, выдумывай, пробуй!
shpuntel.ru
Кресло-качалка своими руками из металла (с чертежами и фото)

Одним из самых любимых и удобных мест домашнего отдыха является кресло-качалка. Эта конструкция может принимать самые разные формы, но ее механизм в любом случае помогает расслабиться и отвлечься от забот. Те, кто интересовался ценами в мебельных магазинах, знает, что кресло-качалка из металла стоит довольно дорого. Но если вам действительно хочется иметь такую конструкцию в своем доме или на даче, при наличии некоторых навыков, материалов и инструментов можно попробовать смастерить кресло-качалку своими руками.
Преимущества такого решения очевидны. Во-первых, вы сэкономите средства. Во-вторых, сможете изготовить кресло на свой вкус. В-третьих, металлический каркас прослужит долгое время. Также такое изделие выглядит поистине шикарно и элегантно. Итак, посмотрим, как изготовить этот предмет мебели в домашних условиях.
Кресло из стальной трубы
Прежде чем приниматься за изготовление металлической конструкции, необходимо сделать правильный расчет и чертежи на бумаге. Важно соблюсти точный масштаб. Самый простой вариант – сделать качалку из стального прута или трубы. Вот один из вариантов, для которого понадобятся прутья или трубы стальные диаметром 2 см.

Кресло-качалка из металлических дуг
В процессе пригодятся такие инструменты, как болгарка, сварочный аппарат, дрель.

Схема нашего кресла
Порядок работ
Наше кресло будет выглядеть, как простой стул, с разницей лишь в том, что к низу его ножек будет прикреплена дуга. Такой механизм называется маятниковым. Дуга должна быть достаточно широкой, чтобы сидеть в таком кресле было максимально безопасно. Порядок подготовительных работ следующий:
- Разрежьте заготовку на 4 части, 66 см каждая. Это будут поперечные перекладины для стенок кресла.
- Приготовьте 4 стержня длиной 30 см, которые будут служить вертикальными стойками передней стороны изделия.
- Отрежьте 2 прутка длиной 90 см для верхних соединительных балок обоих стенок.
- Сделайте 2 метровые дуги для опорных лыж.

Разрезаем пруток на заготовки
Здесь приведены примерные размеры, которые могут изменяться по желанию мастера. Чтобы сделать опорные лыжи, понадобится трубогиб. За неимением можно воспользоваться двумя рядом стоящими столбами или даже деревьями.

За неимением трубогиба дуги можно согнуть так
Изготавливая дугу таким образом, необходимо просто поместить трубу в имеющийся паз, а в противоположную сторону вставить стержень и произвести изгиб на нужный радиус.
Кривизна на обоих полозьях должна совпадать, иначе кресло не будет качаться равномерно и безопасно.
Начинать собирать каркас нужно с боковых сторон.

Свариваем боковушки
Вертикальные и продольная балки свариваются, таким же образом прикрепляется опорная лыжа.

Привариваем лыжи
Когда одна сторона готова, собирают другую. В конце обе стороны крепятся сваркой поперечными стержнями.

Привариваем поперечины
Когда сварочные работы завершены, места крепления зачищаются.

Зачищаем места сварки
Затем каркас необходимо вымыть, высушить и прогрунтовать в два слоя. Чтобы проводить работы было проще, кресло необходимо подвесить.

Грунтуем и красим кресло
Когда грунтовка полностью высохнет, кресло можно покрасить.

Осталось пошить сиденье и кресло готово
Кованое кресло-качалка

Кованое кресло-качалка
Первый вариант конструкции является довольно простым.
А как сделать кресло-качалку из кованых элементов? Такая конструкция выглядит более презентабельно и красиво, как это видно на фото. Конечно, в домашних условиях выполнить все работы невозможно. Но если у вас есть мастерская и вы обладаете некоторыми навыками, почему бы не попробовать? В конце концов, сделанные таким образом качалки из металла являются довольно дорогими и ценными.
Чтобы кресло-качалка металлическая, сделанная своими руками, была прочной и устойчивой, необходимо нарисовать схему в натуральную величину. На ней должны быть указаны все размеры деталей и элементы ковки.

Чертеж кресла
Выполняя работы, важно время от времени прикладывать конструкцию к эскизу, ведь совпадение должно быть точным.

Готовые боковушки
Когда кованые элементы готовы, их необходимо соединить сваркой.

Кованые элементы
Швы также зачищаются, после чего изделие красится. Теперь кресло важно отрегулировать. Сядьте на него. Если конструкция сильно наклоняется вперед, к спинке с задней стороны можно приделать дополнительные планки, которые будут выступать в роли противовеса. Если же качалка сильно наклоняется назад, сделайте подставку для ног, под которую закрепите груз.
Мастерим ложе

Материал для лежака
По правде сказать, сидеть на металле не очень приятно, ведь он твердый и холодный. По этой причине кресло-качалка, сделанная своими руками из металла, должна иметь дополнительную отделку. Есть несколько вариантов изготовления ложа:
- из деревянных брусков, каждый из которых крепится к каркасу болтами;
- из плотной хлопковой ткани, натянутой на верхнюю и нижнюю стойки;
- из подушек, закрепленных к спинке и сиденью и покрытых съемным чехлом;
- из ивовой лозы, которой оплетается металлический каркас.
В отношении последнего варианта предварительно было бы неплохо посмотреть видео, обучающее основам плетения. Смотрится такая конструкция очень элегантно и изящно.
Подвесное кресло

Подвесное кресло-гамак
Хотя маятниковое кресло-качалка из прочного металла является довольно комфортным, есть еще один вариант, который наверняка понравится детям. Речь идет о кресле, которое подвешивается к потолку.
Делается такая конструкция очень просто. Для этого понадобится один гимнастический обруч. Сечение трубы должно быть 20-30 мм. Рассмотрим вариант его изготовления:
- Расстелите на полу прочную ткань, способную выдержать вес тела (Можно взять подкладочный материал для курток на синтепоне).
- Положите на нее обруч, отмерьте по краям круг на 25 см больше его диаметра и вырежьте его в двух экземплярах.
- Расстилаем ткань, по центру укладываем обруч
- Отмечаем маркером окружность радиусом на 25 см больше, чем радиус обруча
- Вырезаем 2 таких круга
- Одну из деталей сложите вдвое и разрежьте. Пришейте по всей длине этого разреза молнию.
- Один из кругов складываем пополам и разрезаем
- По линии центрального разреза этого круга вшивается молния, длиной равная диаметру обруча
- Сшейте два круга по диаметру, выверните заготовку и разложите на столе.

Сшиваем две круглых половины чехла и выворачиваем его
- Наденьте чехол на обруч.
- Сделайте по краям разметку, согласно которой на равных расстояниях вырежьте небольшие отверстия. За них к металлическому кольцу вы прикрепите ремни, и оно будет подвешено к потолку.
- Делаем разметку по чертежу
- Делаем верызы для креплений
- Обшиваем края вырезов тесьмой
- Выньте обруч и оберните его синтепоном, а затем прошейте тканью.
- Оборачиваем обруч синтепоном
- Обшиваем его тканью
- Снова вставьте его в чехол, через отверстия, обшитые каймой, вдеваются шнуры или ремни.
- Вставляем обруч в чехол
- Вдеваем шнуры
- Конструкцию подвешивают к потолку, столбу или дереву.

Повешиваем наше кресло
Таким образом может быть изготовлено простое кресло, прикрепленное в удобном месте. Для него также можно пошить подушки, и тогда вам будет особенно комфортно. Такое сиденье напоминает гамак и может быть использовано как альтернатива кресла-качалки. Какое название вы бы ему ни дали, оно станет украшением как городской квартиры, так и загородного участка. Изготавливая мебель своими руками, вы получите удовольствие и обустроите жилище.
infomebli.ru
Кресло качалка из дерева своими руками

Петр Шипицин
23 февраля 2018
visibility 597 просмотров
Кресло-качалка у всех ассоциируется с комфортом и уютом, и сразу хочется расположиться в ней у камина в загородном доме с чашечкой горячего кофе. Это очень красивый и оригинальный элемент интерьера, который вписывается почти в любой стиль.
Кроме того, качаться на кресле полезно для здоровья. Не так полезно как заниматься на эллиптическом тренажере, купленном в интернет-магазин «Ellipsy.ru», но все же… Так можно расслабиться, снять стресс, набраться сил, спокойно почитать любимую книгу, послушать музыку или просто подремать. Кресло качалку можно сделать своими руками из дерева, рассмотрим примеры с фото, чертежи и ход работы по нескольким технологиям.
Особенности конструкций из дерева
Чаще всего мебель изготавливают из древесины, поэтому кресло-качалка не стала исключением. Почему же многие выбирают именно этот материал:
- Древесина экологична и не вредна для здоровья, материал не выделяет токсичных летучих веществ.
- Дерево является прочным материалом, подходящим для создания массивных конструкций.
- Долговечность.
- Можно воплотить любую идею и создать дизайнерские элементы интерьера.
- Дерево легко и быстро обрабатывается, в нем можно вырезать любые орнаменты и узоры, придавать любую форму, красить и покрывать лаком.
- Широкий ассортимент и большой выбор цветовых решений.
- Возможность выбора различных форм и размеров, а также изготовление на заказ.
- Привлекательный внешний вид в этической стороне вопроса.
- Устойчивость к повышенной влажности и лучам ультрафиолета.

Чем привлекательно такое кресло:
- Данный предмет мебели способен успокоить нервы и эффективно снять стресс за счет легких и ритмичных покачиваний. Иногда его используют для достижения полного расслабления и состояния транса.
- Активизируется парасимпатическая нервная система, а сам организм при этом приходит в состояние спокойствия и комфорта.
- Можно отвлечься от неприятных мыслей, воспоминаний и повседневной рутины. При этом все мышцы расслабляются, тело способно полноценно отдохнуть, набраться сил и восстановиться.

- Кресло может помочь устранить проблемы с засыпанием. Все эти манипуляции в виде легких раскачиваний способны вызвать глубокий сон.
- Помогает больным тахикардией при помощи темпа, успокаивающего сердечную мышцу. Также происходит тренировка вестибулярного аппарата.
- В кресле можно сразу сконцентрироваться и навести порядок в своих мыслях.
- Его можно разместить в офисе, также у себя дома или на дачном участке. Также можно подобрать кресло по габаритам конкретного человека.

Как сделать кресло качалку своими руками из дерева по чертежам показано на видео с инструкцией и ходом работы.
Разновидности кресел
Существует множество различных моделей кресел, все они могут отличаться по своей функциональности, габаритам, стилю исполнения, материалам и наличием дополнительных гаджетов. Мы всегда выбираем мебель, сходя из своих предпочтений и привычек, и кресло-качалка не стала исключением.
Рассмотрим несколько вариантов конструкций качалок:
- Кресло способно мягко и плавно раскачиваться благодаря радиусным полозьям. Однако при такой конструкции на радиусах приспособление необходимо сделать на низкой посадке. Иначе кресло может опрокинуться, что приведет к неприятным последствиям. Чтобы качалка была выше, на полозья устанавливают отбойники. Чтобы встать, необходимо немного напрячься и наклониться вперед.
- Если у вас кресло, имеющее полозья переменной кривизны, то случайное опрокидывание исключено. Такие изделия подойдут любителям отдохнуть с разным телосложением, в них комфортно, удобно и безопасно. Высаживание происходит мягко и плавно.

Кресло в переменной кривизной
- Качалки с колыбелью конструируют специально для мам с маленькими детьми. Здесь предусмотрены только полозья переменной кривизны, что делает кресло надежным и безопасным.
- Качалка-нирвана является конструкцией на эллипсных полозьях. Раскачивание мягкое, почти блаженное и успокаивающее. Однако сильно раскачиваться не стоит, может произойти опрокидывание. По этой причине необходимо снабжать кресло отбойниками, иногда передние совмещены с подножкой.

Качалка нирвана
- Есть разновидность качалок нирвана на рессорах, однако сделать такое кресло своими руками будет весьма сложно. Вам потребуются особые породы древесины, а, возможно, даже и обрезиненная конструкция.
- Садовые качалки-лежалки защищены от опрокидывания тентом на эллипсах.

Садовая лежалка
Технология работы
Чтобы разобраться, как сделать кресло качалку своими руками из дерева по чертежам и нужным размерам, нужно приобрести все необходимые материалы и инструменты:
- Шуруповерт.
- Малярная кисточка для заполнения отверстий крепежа.
- Молоток.
- Прямой уголок с линейкой.
- Дисковая машина для шлифовки.
- Саморезы.
- Электролобзик для вырезания заготовок.
- Струбцина.
1 способ
Для создания кресла-качалки можно использовать обыкновенный стул, укоротив ему ножки и прикрепив данную конструкцию на полозьях. Чтобы внешний вид был привлекательным, стул можно оплести лентами из кожи или пластика. При желании можно также сшить самостоятельно чехол для качалки.
Чтобы сделать конструкцию более интересной формы, из фанеры можно вырезать боковины по заранее рассчитанному лекалу. Края фанеры следует хорошо обработать.


Края фанеры
Затем две получившиеся детали соединяем друг с другом при помощи трех брусков (30*50*600 мм).
Чтобы выложить верхнюю часть, используем тонкие доски и планки из фанеры (10*50*600 мм).

В некоторых случаях длину можно увеличить, чтобы планки выступали за края боковин. После сборки кресла его можно покрыть лаком или покрасить.

2 способ
Начинаем процесс создания качалки с чертежа. Для качественного результата эскиз обязателен. Кроме того, мы сможем избавить себя от сильных погрешностей в расчетах количества материала.

Техника работы:
- Берем металлическую сетку, где каждая клетка-ячейка равна 1 сантиметру, чтобы создать шаблон для боковушки. Затем переносим этот шаблон на бумагу, чтобы было легче размечать контур на фанере. Главное, чтобы соблюдалась симметричность обеих боковин.
- Приступаем к вырезке деталей. Необходимо подготовить фанеру толщиной 3 сантиметра. Вырезаем из нее 3 рамы (120*800 мм). Боковые части выпиливаем при помощи электрического лобзика по лекалу.

- Из бруска (50*25 мм) выпиливаем 35 элементов, длина у каждого должна быть 120 сантиметров. Это заготовки для будущей спинки и сиденья.
- Приступаем к обработке всех заготовок. Поверхности обрабатываем шлифовальной машинкой, уделяя особенное внимание торцам.
- Не должно оставаться волокон, они выравниваются молотком и затем обрабатываются горячей олифой. Таким образом, торцы станут влагоустойчивыми, а само кресло прослужит дольше. Олифой необходимо обработать поверхность дважды.
- Приступаем к сборке кресла качалки своими руками из дерева по фото и чертежам. Скрепляем две боковины, нанеся предварительно отметки в местах их соединения. Фиксация должна происходить сверху в месте расположения головы, в середине и в ногах при помощи царгов.

- Чтобы монтировать стягивающие планки к боковине, необходимо использовать специальную стяжку из шурупов — конфирмат. Делаем в боковине отверстия 8 мм, а в торце – 5 мм.
- Приступаем к монтажу сидения. Чтобы прикрепить его к основанию, нам понадобится 35 брусов с 4 отверстиями в каждом из них (по 2 отверстия с обеих сторон). Фиксируем брусы к боковине саморезами. Важно всегда проверять, чтобы установка производилась строго горизонтально. Сборка закончена.
- Приступаем к обработке кресла. Финишная облицовка изделия должна быть выполнена качественно и правильно. Шпаклевкой обрабатываем отверстия над и около саморезов, затем покрываем кресло антисептиком, после чего наносим лак для создания влагоотталкивающего слоя. Лак наносится дважды, после высыхания первого слоя. Кресло готово!
3 способ
Соберем кресло качалку по чертежу, используя качественные сорта древесины. В качестве основы используем обычный деревянный стул. Все детали будут монтироваться под прямым углом, поэтому не нужно дополнительно вырезать много элементов.
- В качестве основы нам будет служить размер сидения стула и высота его ножек. Все соединяющие элементы должны вырезаться строго под данные размеры.

- Приступаем к нарезке деталей. Толщина сидушки должна быть от 1 до 1,5 сантиметров. Высота задних ножек должна быть от 105 до 110 сантиметров, а передних – от 55 до 60 сантиметров. В качестве поперечных соединительных деталей для конструкции будем использовать рейки 57*4*1,5 сантиметров (длина*высота*толщина).
- Приступаем к соединению всех деталей конструкции, используя метод крепления в шип. Для этого наносим на все деревянные детали разметку, затем вырезаем в ножках пазы (2*1,5 см), имеющие глубину в 2 сантиметра. Чтобы соединить пазы и рейки, их концы нужно обработать специальным клеем.

Крепление в шип
- Чтобы произвести окончательное крепление всех элементов, устанавливаем прокладку между качалкой и струбциной. Струбцину необходимо затянуть, после чего оставить изделие на 24 часа.
- Приступаем к установке полозьев. Чтобы выполнить ее быстро и грамотно, нам понадобиться фанерный лист толщиной до 1,5 сантиметра. По лекалу из листа вырезаем метровые одинаковые заготовки.

Вырезаем заготовки
- На ножках качалки прорезаем отверстия в ширину 1,5 см, чтобы подходили по толщине к полозьям. При этом глубина может быть от 7 до 10 сантиметров.
- Производим шлифовку краев всех полозьев, затем вставляем их в прорези. Там, где была произведена посадка полозьев, прорезаем отверстие насквозь с диаметром в 2 сантиметра. Затем наносим на отверстие строительный клей, после чего устанавливаем в него шип из древесины.

Шлифовка
- Теперь мы должны проверить равновесие. Чтобы качалка была хорошо сбалансирована, можно устанавливать на полозьях сзади дополнительные поперечные планочки. Также помните, чтобы увеличить вес, вы можете всегда применять несколько декоративных элементов для утяжеления.
Теперь вы можете самостоятельно создать кресло качалку и порадовать своих домочадцев. Главное помните, что изделие может поцарапаться, а материал быстро постареть и потерять свой вид. Поэтому всегда обрабатывайте кресло лаком, чтобы оно долго радовало вас своей красотой и создавало уют в доме.
rukikryki.ru
виды изделия и варианты изготовления
Изготовленное кресло-качалка своими руками многим умельцам обойдется дешевле, чем магазинное изделие. Изготовленная самостоятельно мебель будет качественней и экологичней, можно продумать свой дизайн и концепцию конструкции. Кресло-качалка станет удачным дополнением к дизайну интерьера помещения, приспособлением, которое успокоит, даст настрой в работе, расслабит. Такое изделие станет незаменимым и при укачивании ребенка. Для самого малыша такое кресло представляет собой настоящие качели.
Виды изделия
Если человек не имеет отношения к плотническому делу, то возникает естественный вопрос: как сделать кресло-качалку своими руками? Изначально стоит определиться с видом кресла-качалки, их существует несколько. Различают виды относительно особенностей конструкции:
- Кресло-качалка, которая имеет радиусные полозья. Эта модель является классической и наиболее популярной. Имеет низкую посадку, так как на округлых «радиусах» очень тяжело держать равновесие при раскачивании.

- Кресло с полозьями переменной кривизны. В этом случае «радиусы» не представляют часть округлости, а значит раскачивание может иметь большую амплитуду. В данном случае использование будет более безопасным и комфортным.

- Кресло-нирвана. Существует два подтипа: эллипсное и рессорное. Первый считается небезопасным, так как часто происходит опрокидывание, но качание является мягким и плавным. Рессорные модели более приспособлены к широкому использованию, но изготовление кресла-качалки своими руками такой модернизации требует умений и опыта.

- Качалки 3 в 1. Здесь представлено все три режима: кресло, качалка, лежак. В зависимости от степени откидывания на спинку конструкции и определяется положение корпуса. Многофункциональная мебель, но многогабаритная.

Представленные варианты конструкции могут быть сделаны практически из любого материала: дерева, метала, лозы, ротанга. Сидение может быть твердым, мягким или комбинированным. Материалы можно комбинировать, а в некоторых моделях даже нужно. Благодаря фото в интернете можно подобрать понравившуюся модель изделия.
Плетенная модель
Сделать своими руками мебель из лозы или ротанга достаточно сложно. Ротанг – это дорогостоящий материал, но изделие из него имеет большие сроки эксплуатации, а корпус выносливее к механическим воздействиям. То же сказать про лозу нельзя, но она более доступна и податлива в работе.
Чтобы создать оригинальную плетенную мебель, можно просмотреть мастер-класс. Такой инструкции будет вполне достаточно для воплощения проекта. Сначала производится подготовка материала:
1. Ротанг собрать самостоятельно не получится – это жесткая лиана, произрастающая в определенных районах Америки. Лозу заготавливают самостоятельно: ветки собирают в течении всего года. Длина, толщина может быть разной. Когда лоза будет собрана, ее устанавливают на улице вертикально, чтобы она просохла.
2. Обработка прутьев заключается в отпарке. Ветки укладываются в ванну с теплой водой, где материал должен провести около 12 часов. Ветки станут эластичными. Когда каждый прутик станет хорошо гнуться, то с них можно снять кору.
3. Чтобы продолжить работу, нужно придать каждому элементу соответствующей формы. Толстые ветки фиксируются в зажимах в соответствующем положении, а тонкие с помощью колунка разделяются на несколько частей, которые называются шинками.
4. Каждую шинку нужно пропустить через пресс, чтобы они стали плоскими и приспособленными для плетения.
5. Подготовленная лоза укладывается на трое суток в сушилку, где остаточно фиксируется форма каждого элемента будущего изделия. Только из такой лозы можно изготовить кресло-качалку.
Следующим этапом станет само изготовление:
1. Сначала изготовляется каркас из толстых веток или деревянных планок. Размеры определяются самостоятельно. Все части фиксируются гвоздями или проволокой. Предмет помещается в сушилку на несколько дней.
Изготавливается каркас2. Оплетка заключается в оклеивании спинки и сидения шинками. На корпус наноситься мебельный клей, который будет служить дополнительным соединением. Сами шинки оплетают прутья обрешетки в шахматном порядке.
Обплетаем спинку и сидение3. Когда корпус будет готов прикрепляются полозья и производится тестирование изделия. Кресло нужно слегка раскачать, если этот процесс протекает легко, а само оно не опрокидывается при раскачке, то центр тяжести определен правильно.
4. Последний шаг – вскрытие лозы лаком для мебели.
Сделанное кресло-качалку можно использовать на даче, веранде, балконе, саду, прихожей. Кроме положительных ощущений во время использования данного предмета мебели, этот элемент станет замечательным аутентичным дизайнерским оформлением.
На видео: изготовление полностью плетеного кресла-качалки
Кресло-качалка из дерева
Сделать кресло-качалку своими руками из дерева достаточно просто, главное произвести соответствующую подготовку. Если такая работа производится впервые, то поможет в этом мастер-класс. Сначала готовим инструменты:
- ножовки по дереву, лобзик;
- шлифмашинка или наждачная бумага;
- шуруповерт;
- набор сверл;
- измерительная лента;
- молоток;
- шпатель;
- уровень;
- строительный угол;
- кисти, карандаш.
Подготовка материала также важна. Деревянная кресло-качалка изготовляется частично из фанеры. Остальные деревянные части лучше подобрать из эластичного материала. Замечательно, если это будут фланели.

После сбора инструментов и материала можно приступать к работе. Изначально выполняется чертеж кресла-качалки, выполняемый в соответствии с параметрами будущего изделия. Схема является точной копией, но в уменьшенном масштабе:
1. Из фанеры своими руками нужно выпилить боковые элементы, которые представляют собой полукруглые основы с пазами под фланели. Здесь пригодится лобзик, пилки по дереву и шлифмашинка.
Делаем боковины2. Подготавливаются фланели, можно их изготовить из фанеры своими руками, но при условии, что фанера толщиной не меньше 30 миллиметров и гибкая по своей основе.
Изготавливаем фланели3. Боковые детали из фанеры соединяются между собой при помощи брусков 30х50х600 мм. Сверху к каркасу с помощью шуруповерта прикрепляются перекладины (фланели) на расстоянии между собой в 2-3 см.
Собираем конструкцию4. К каркасу прикрепляем фланели, для этого используем шуруповерт.
Прикручиваем фланели к каркасу5. Качалку из фанеры ждет финишная обработка. Шпатлевкой замазываются места, где есть присоединение фланелей к боковинам. Когда шпатлевка высохнет, можно покрыть изделие лаком по дереву.
Финишная обработкаКресло качалка из фанеры может дополнительно обустраиваться и другими элементами. Например, можно сделать сидение мягким. Для этого на деревянную основу укладывается поролоновая основа, поверх которой укладывается ткань.
Наиболее опытные умельцы часто упрощают процесс изготовления с помощью использования старого кресла, к которому крепятся изогнутые «лыжи». Это один из самых простых вариантов.

На видео: как сделать кресло-качалку из дерева.
Металлическое кресло
Существует еще один класс изделия – это металлические кресла-качалки. Не всякий мастер сможет изготовить такую конструкцию, так как для этого необходимо более серьезное оборудование и мастерство. Хотя, стоит попробовать изготовить кресло-качалку из металла своими руками. Это можно сделать, ориентируясь по фоткам, или просмотрев мастер-класс.
Для работы нам понадобятся следующие составляющие:
- стальные прутья;
- оцинковка;
- стальные уголки;
- аппарат для сварки;
- дрель со специальными сверлами;
- болгарка.
Зачастую дуги для полозьев изготовляют из профильной трубы, а из самого профиля вырезаются уголки, которые будут служить креплениями. Из профилированного металлического листа можно изготовить все необходимые элементы для создания такой конструкции:
1. Сначала делаются чертежи в соответствии с дизайном изделия. Для этого можно взять готовый стул и перенести этот эскиз, но кроме этого продумать способ крепления закругленных полозьев.
2. Стальные прутья нарезаются длиной в 1 метр. После этого сваривается каркас, к которому и будут привариваться прутья. Расстояние между ними около 1 сантиметра. Металл скручивается в овал.
3. После этого мастер, должен прикрепить сидение к овальной основе. Само сидение изготавливается из оцинковки. Крепление осуществляется с помощью болтов, а отверстия для них делают с помощью дрели.
4. Конечным этапом будет покраска и шлифовка острых деталей.

Часто сидение делают из дерева или плетут из лозы. В любом случае такой класс мебели является очень износостойким и крепким. Основа металлического стула-качалки долговечна, а сидение при необходимости можно менять.
Часто каркас делают кованным. Такой элемент мебели смотрится богато и эстетически привлекательно.

Если сравнивать условия эксплуатации плетенной, металлической и деревянной мебели, то наиболее универсальным вариантом является именно плетенная. Она не портит напольную поверхность, легко перемещается, может использоваться в любом помещении и на улице.
Украсить такой элемент мебели можно текстилем, в частности декоративными подушками, стеганными покрывалами, теплыми пледами. Таким образом вноситься нота комфорта и уюта в общую задумку.
Интересные идеи (1 видео)
Разные модели кресел (35 фото)
Вам также будут полезны эти статьи:
russianstartuprating.ru
Простое кресло качалка своими руками
Простое кресло качалка своими руками


Кресло в переменной кривизной
Качалка нирвана
Садовая лежалка


Крепление в шип
Вырезаем заготовки
Шлифовка












