как сделать навес из профнастила над воротами, фото, видео
Сделать и установить козырек над калиткой своими руками можно без особых усилий. Он украсит внешний вид наружной части заграждения и защитит входную створку от негативных факторов окружающей среды. Процесс монтажа козырька предусматривает следование определенным правилам. Планировка создания навесного элемента над калиткой включает подбор оптимально подходящего материала и необходимых инструментов. Далее обо всем подробнее.

Арочный тип
Вернуться к оглавлениюСодержание материала
Для чего над входной калиткой и воротами нужен козырек
Специалисты выделяют следующие предназначения калиточных и воротных навесов:
- Продление эксплуатационных качеств калитки и ворот. Козырек защищает петли, замки и фундамент от деструктивного воздействия атмосферных осадков. Если при входном проеме в заборе расположена видеокамера или домофон, установка навесного элемента обязательна.
- Уменьшение снежной шапки зимой. В зимний период навес не позволит собраться большому количеству снега на входе.
- Декоративность. Козырек, декорированный коваными элементами, добавит общему виду большей визуальной привлекательности.

Идея обустройства навеса над створкой
Учитывая перечисленные факторы, стоит задуматься о создании козырька еще на стадии продумывания конструкции забора. Важно, чтобы навесной элемент аккуратно дополнял ограждение и не выглядел как отдельная его часть.
Обустройство навеса начинается с создания прочного каркаса. Для его выполнения используется дерево или металл. Деревянная конструкция имеет короткий срок эксплуатации. Поэтому используемые пиломатериалы дополнительно обрабатывают антигрибковыми средствами.

Макет изделия из металла над калиткой
Подбирать материал для козырька следует, ориентируясь на само ограждение, калиточную дверь и ворота. Опорная часть навеса бывает различных конструкций. Для покрытия крыши используются следующие материалы:
- поликарбонат;
- профнастил;
- металлочерепица;
- оргстекло;
- листы ПВХ;
- оцинковка;
- шифер.

Разнообразие форм навесов
Козырек над калиткой из профнастила – один из самых популярных вариантов навеса. Профилированные листы легко крепятся к каркасу навесной конструкции и стоят недорого.
При покупке лучше выбрать материал толщиной от 0,5 мм из алюминия, меди или хромоникелевой стали с дополнительным защитно-декоративным покрытием.

Схема каркаса с основными размерами
Поликарбонат – наиболее легкий материал в плане самостоятельного монтажа. Помимо простоты в использовании, он выделяется красотой и низкой ценой. Учитывая большой спрос на него, производители расширили ассортимент, включив разнообразие цветовой гаммы. Следовательно, встречающиеся в продаже листы поликарбоната имеют разную фактуру и цвет.

Эскиз двускатной конструкции для калитки
Вернуться к оглавлениюКакая форма козырька предпочтительней
Выбрав материал для навеса, далее определяем его конструкцию. Форма козырька должна быть подобрана так, чтобы навес вписывался в общую картину как ограждения, так и расположенного на участке дома.

Схема размеров козырька из поликарбоната
Навесы бывают следующих видов:
- односкатные – вид простой в монтаже конструкции, но с учетом особенностей региона. Если случаются обильные снегопады, выдерживается угол наклона;
- двускатные – такой навес защищает калитку и створки ворот от разрушающих воздействий атмосферных осадков под любым углом;
- арочные – отличаются высоким спросом благодаря привлекательному внешнему виду и легкости в установке, не требующей опыта;
- куполообразные – козырек в форме купола сделать сложнее, поскольку он состоит из нескольких элементов, собирающихся в единое целое. Зато такой навес обладает максимальными защитными свойствами;
- плоские – наименее практичный вариант, не целесообразен к установке в северных регионах с сильными снегопадами. Если создавать такой навес, придется тщательно продумать каркас и подобрать высокопрочный материал для крыши.

Идея обустройства покрытия над калиткой
Из перечисленных выше вариантов наиболее популярен арочный тип навеса с металлическим каркасом из алюминиевых профильных труб, который декорируют элементами ковки.
Фото арочного козырька, перекрытого поликарбонатом.

Образец изделия над калиткой
Металлический остов, как правило, кроется полимерными материалами, неприхотливыми в эксплуатации. Теперь рассмотрим, как сделать козырек над калиткой и воротами.
Вернуться к оглавлениюКак сделать навес над калиткой и створками ворот
Монтаж козырька своими руками труда не составит. Главное – это запас терпения, наличие необходимых материалов и инструментов. Создание красивого козырька вполне осуществимо без привлечения мастера.

Схема монтажа покрытия над калиткой
Что нужно для монтажа арочного козырька с металлическим каркасом
Монтажные работы производятся посредством следующих материалов и инструментов:
- сварочного аппарата с защитной маской и электродов;
- болгарки с отрезными и абразивными кругами;
- металлической щетки;
- шуруповерта;
- самонарезающих шурупов;
- профильной алюминиевой трубы квадратного либо прямоугольного сечения размером 15х15 или 20х20 мм и декоративных кованых элементов;
- уголка и уровня;
- кисточки, грунта и краски;
- кровельного материала.

Схема модульного изделия
Стадия подготовки монтажных работ
Данный этап заключается в определении конкретного изделия, которое мы хотим получить, а также необходимых материалов.
Планирование козырька начинается с подготовки следующего:
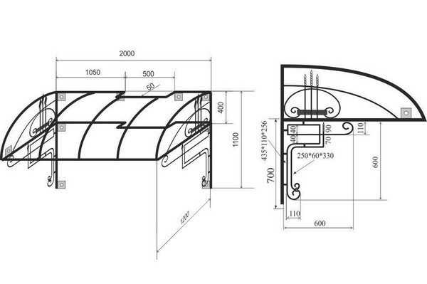
- Эскиза. Перед началом работ нужно четкое понимание, как будет выглядеть изделие. Для этого следует на бумаге начертить форму и примерные размеры будущего навеса. Приблизительная ширина арочного козырька калитки составляет 1200–1500 мм (ворот –3000–4000 мм), высота арки равна 200–300 мм.
- Прочной основы. Нужно убедиться в прочности воротных столбов, на которые будет опираться навесная конструкция.
- Выбора перекрытия. При подборе материала для крыши козырька учитываются индивидуальные предпочтения и финансовые возможности.
- Проведения замеров.
Это необходимо для определения нужного количества материалов.

Схема кованого каркаса конструкции
Монтаж козырька: пошаговая инструкция
Сделать привлекательным простой по конструкции козырек можно за счет применения кованых элементов. Их приваривают с двух сторон. Также на П-образную раму приваривается полукруглый навес.

Макеты популярных видов
Арочный навес для ворот ставится по той же схеме, что и над калиткой. Каркас в виде буквы «П» крепится к опорам створок. Наиболее приемлемые материалы для кровли – поликарбонат или профнастил.

Монтажная схема
Пошаговый процесс монтажа навесной конструкции:
- Сваривают П-образную раму, а затем крепят ее к опорным столбам. Если стойки кирпичные, кладка продлевается на 30–40 сантиметров с дополнительным монтированием в кладку металлического профиля. К металлическим опорам каркас крепится посредством анкерных болтов или сварки.
- На каркас приваривается карниз из отрезков профиля, к которому будет крепиться крыша козырька. Карниз рекомендуется делать двусторонний. Тогда козырек будет защищать входные створки с обеих сторон.
- Между каркасными стойками и карнизом привариваются кованые угловые элементы, которые придадут декоративность козырьку и укрепят его.
- Чтобы изготовить арку, размечается металлопрофиль, затем от него отрезают 2 куска трубы нужного размера. Зажав один край тисками, а другой – газовым ключом, трубу сгибают в дугу. Для этого целесообразнее использовать алюминий, поскольку стальные изделия затруднительно гнуть без специального оборудования.
- К пролетам приваривают трубчатые дуги в виде арки. Дугообразные металлические элементы дополнительно соединяют несколькими поперечными трубами. Эта конструкция будет служить каркасом для крыши.
- С помощью болгарки с абразивным кругом изделие зачищают от сварочных швов.
- На каркас путем приваривания или прикручивания самонарезающими шурупами (в зависимости от материала перекрытия) крепится кровельный материал.

Дизайнерский подход
Видео самостоятельного монтажа навеса над калиткой забора представлено ниже.
Чтобы перекрыть козырек поликарбонатом, рекомендуют использовать листы продукции толщиной до 8 миллиметров. При помощи шуруповерта материал фиксируется к арке навеса самонарезающими шурупами с термогайками.
Так как продукция подвержена царапинам, защитную пленку целесообразно снимать после фиксации изделия.

Верхушка с ажурными элементами ковки
Навес над калиткой из профнастила своими руками выполняется по схожей схеме. Материал прикручивают к каркасу козырька саморезами в комплексе с пресс-шайбами и резиновыми уплотнительными прокладками.

Изделие с удлиненной защитной частью над калиткой
Используя для перекрытия листы металла, следует закреплять их путем приваривания с внутренней стороны козырька. Учитывая малую толщину используемой листовой стали, приваривать требуется осторожно, дабы не прожечь продукцию насквозь. После завершения работ по монтажу все металлические элементы навеса грунтуют и покрывают краской.
zaborsebe.ru
видео-инструкция по монтажу своими руками, особенности изделий для калиток, как приварить, цена, фото
Понравилась статья? Следите за новыми идеями из мира дизайна интерьеров, а так же полезных советов в нашем канале. Подписывайтесь на нас в Яндекс.Дзене. Подписаться.
Навесы для ворот и калиток представляют сбой достаточно компактные сооружения, которые можно изготовить самостоятельно буквально за несколько часов. При этом даже самый простой козырек обеспечит существенное продление срока службы ворот, так что стоит потратить время и силы, и соорудить такую конструкцию.
Как это сделать – расскажем ниже.

Козырек над калиткой защитит и полотно, замок и петли от дождя
Характеристики навеса
Зачем нужна эта деталь?
Перед тем как приварить навесы на ворота или установить сооружение другим способом, необходимо разобраться, а зачем оно вообще нужно. Поняв это, мы сможем более эффективно спроектировать его конфигурацию и размеры.
Воротный навес выполняет целый ряд функций:
- Во-первых, небольшая крыша защищает и сами ворота, и петли, и запорный механизм от коррозии в результате намокания под дождем.
- Во-вторых, под навесом не скапливаются осадки, что предотвращает размытие грунта возле опорных столбов.
Обратите внимание!
Это особенно актуально в северных регионах, где в зимние месяцы снегопад может быть весьма интенсивным.
И только козырек в этом случае обеспечивает сохранение свободного пространства, достаточного, чтобы хотя бы приоткрыть ворота и выйти наружу для расчистки.

Был бы козырек – меньше пришлось бы копать!
- Наконец, наличие небольшой кровли перед калиткой обеспечивает комфорт для визитеров: если у вас не установлен домофон или магнитный замок с дистанционным открыванием, то лучше ждать под козырьком, чем под проливным дождем или ярким солнцем.
Как видите, аргументов в пользу установки такой конструкции вполне достаточно. И в следующих разделах мы расскажем, как изготовить и установить ее своими руками.
Собираем основу
Конструкция воротного навеса не отличается сложностью. В большинстве случаев он представляет собой двускатную или дуговую кровлю, установленную на опорных столбах.
Инструкция по монтажу предполагает такой порядок работ:
- Для начала выполняем замеры. Для этого измеряем ширину между опорными столбами – именно к ним мы будем крепить элементы каркаса.
- Далее выполняем чертеж. При этом в конструкцию закладываем размеры, достаточные для защиты от осадков. Оптимальная ширина кровли составит около 1,2 — 1,5 м, а угол уклона (при двускатной конструкции) – от 15 до 300.

Двускатная кровля на стальном каркасе
- Далее монтируем опоры. Проще всего использовать несущие столбы, на которых закреплены ворота. Если для этой цели используются кирпичные тумбы, то просто наращиваем их примерно на 30-40 см, закладывая внутрь профильную или круглую трубу для навеса.
Обратите внимание!
Установленные сверху защитные накладки из пластика или металла нужно, естественно, снять.
- Если же ворота были установлены на стальных опорах или деревянных столбах, то поступаем еще проще. Добавляем к конструкции подходящие по высоте отрезки, прикрепляя их к уже существующим стойкам. Для монтажа используем либо сварку, либо стальные кронштейны.

Опоры из кирпича можно нарастить
- В результате у нас должно получиться две или три опоры. На них укладываем нижнюю обвязку нашего козырька, закрепляя прямоугольную раму раскосами.
- На обвязке возводим стропила (для двускатной или полукруглой кровли), которые в верхней части соединяем коньковым брусом.
- На стропила набиваем обрешетку: под крупногабаритные кровельные изделия – разреженную из брусьев и реек, под штучный материал – сплошную из ДСП или аналогичного материала.
Угловой каркас для кровли над гаражным въездом
Наш каркас готов. Остается только защитить его от воздействия влаги, пропитав антисептиком (деревянные изделия) или обработав краской с антикоррозионными свойствами.
Кровля козырька
Поскольку основной задачей нашего сооружения будет защита от дождя, именно кровельный материал стоит считать наиболее важной деталью всей конструкции.
Здесь выбирать можно из огромного количества вариантов, и ниже мы рассмотрим плюсы и минусы наиболее популярных решений:

Конструкция, крытая гонтом
- Для полностью деревянной конструкции наилучшим выбором будет гонт – пластинки из колотой (не пиленой!) древесины, пропитанные влагозащитным составом. Единственный существенный минус этого варианта – высокая цена: и сам материал, и его монтаж стоят довольно дорого.
- Универсальными решениями можно назвать использование еврошифера, металлочерепицы и битумной черепицы. Эти современные материалы отличаются долговечностью, относительно несложно монтируются, да и найти в продаже можно вполне бюджетные модели.
- Для металлической конструкции с полудуговыми стропилами лучше всего подойдут панели из сотового поликарбоната. Они хорошо защищают от влаги, при этом не создают избыточного затенения. Монтаж следует проводить с использованием специальных саморезов.

Изделие из поликарбоната
- Если же вы планируете изготовить самое простое сооружение (к таким, например, относятся навесы для гаражных ворот), то для кровли лучше всего брать профнастил из оцинкованного окрашенного металла. Да, выглядит он не очень привлекательно, но от осадков защищает неплохо.
Совет!
Для любого кровельного материала, исключая, пожалуй, поликарбонат, необходима укладка дополнительной гидроизоляционной мембраны.
Навес – это не только крыша

Схема монтажа навесов
Очень часто под «навесом» понимают не козырек над входом, а петли, на которых держатся створки.
Чтобы не оставлять без ответа вопрос «Как правильно приварить навесы на ворота?», весьма актуальный для новичков, ниже приведем несколько рекомендаций:
- Для начала к каждой петле привариваем прочную стальную пластинку прямоугольной формы (так называемый платик). Это приспособление облегчит позиционирование навесной части по горизонтали, вертикали и плоскости.

Фото приваренной петлевой части
- Затем привариваем изделия к опорным столбам, используя сплошной шов.
- Далее тщательно выравниваем ту часть петель, которая будет монтироваться на створке, и привариваем (либо прикрепляем болтами) ее.
- Дело остается за малым: навесить створки ворот на опорные столбы и отрегулировать их положение.
Вроде бы ничего сложного, но попрактиковаться нужно обязательно!
Заключение
Сделать навес над воротами, руководствуясь приведенным выше алгоритмом, может практически каждый. Да и материалов для такой конструкции нужно не очень много, так что расходы будут вполне приемлемыми. И все же, несмотря на кажущуюся простоту задачи, перед началом работы стоит изучить видео в этой статье и тщательно все продумать: тогда и ошибок не будет, и
krovlyakryshi.ru
Козырек над калиткой из поликарбоната своими руками любой формы
Неотъемлемым атрибутом любого загородного дома является забор. Его особая функция — ограждать и защищать жилище.
Козырек над калиткой великолепно дополнит конструкцию. Он не только придаст ей более эстетичный вид, но и защитит от дождя, яркого солнца и прочих природных катаклизмов, значительно продлив ее срок службы.
Виды материалов
Современный рынок в большом количестве предлагает всевозможные устройства, которые подчеркнут стиль и дизайн ограды. Однако практически каждый сможет сделать навес над калиткой своими руками. Такое изделие будет выглядеть не хуже покупного.
Украсьте свою калитку козырькомКроме внешней красоты, оно несет несколько полезных функций, а именно:
- при непогоде под ним всегда можно спрятаться, спокойно достать ключи и открыть калитку;
- убережет замок от ржавчины и замерзания, а значит, он прослужит гораздо дольше и его не придется менять каждый год;
- создаст тень, где всегда можно скрыться от палящего солнца.
При планировании козырька нужно учитывать и материал, из которого сделаны забор и калитка. Например, деревянным оградам подходят навесы из дерева, кирпичным и бетонным конструкциям лучше выбрать металлические козырьки. А вот кованые изделия будут прекрасно смотреться с любыми ограждениями. Навесную крышу можно изготовить из:
- поликарбоната;
- профилированного листа;
- металлочерепицы;
- оргстекла;
- шифера;
- ПВХ панелей.
Самым часто используемым материалом для изготовления навеса над калиткой и воротами является поликарбонат. Он надежен, обладает хорошей упругостью, прочностью и долговечностью. К тому же он удобен в работе, поэтому создать эффектный козырек сможет любой человек, даже не имеющий опыта.
В данном видео рассмотрим как сделать козырек из поликарбоната своими руками:
Выбор формы
Изделия из поликарбоната могут иметь любую форму, поэтому каким будет козырек, полностью зависит от пожеланий мастера. Но если опыта недостаточно, то лучше устанавливать простые конструкции.
Можно выделить самые популярные варианты:
- Односкатные. Очень простой, легкий и практичный козырек. Но в северных регионах с сильными морозами и снегопадами рекомендовано устанавливать его под уклоном 20°.
- Двускатные. Преимущества таких укрытий в простоте установки и надежности. Навес отлично защищает от снега и дождя.
- Арочные. Очень популярный вариант, который привлекает многих красивым видом и простой сборкой.
- Прямые с подзором. Для таких навесов подойдут только монолитные или толстые сотовые виды поликарбоната, которые стоят гораздо дороже простых.
Если же хочется сделать необычную форму козырька, то можно обратить внимание на куполообразные формы или же так называемые «маркизы». Но их сборка довольно сложная и требует определенных навыков и знаний.
Изготовление навеса
Собрать самостоятельно козырек над калиткой из поликарбоната несложно. Достаточно подготовить и изучить чертеж, припасти необходимый материал и инструмент. Если конструкция собирается впервые, то можно посмотреть несколько мастер-классов. Они помогут избежать ошибок, которые могут возникать во время рабочего процесса.
Перед тем как приступить к монтажу, нужно подготовить:
- сварочный аппарат;
- шлифовальную машинку;
- электрическую дрель;
- перфоратор и сверла;
- уровень;
- стальные уголки;
- щетки из металла;
- металлический профиль.
Для отделочных работ понадобится краска, грунтовка и набор кистей. Когда все заготовлено, схема и чертежи припасены, можно приступать к изготовлению рамы для навеса.
Подготовительный этап
В самом начале стоит определиться с конструкцией навеса, подготовить рисунок и эскиз. Затем нужно осмотреть основу, на которую будет крепиться козырек, и убедиться, что опорные сваи выдержат самодельную крышу. Следует выбрать правильную форму, так как не все навесы можно изготовить самостоятельно, некоторые виды требуют обработки на специальном оборудовании.
На следующем этапе приступают к измерительным работам. От них будет зависеть количество материала, который необходимо приобрести. Вначале измеряют расстояние между опорными сваями, которые будут держать конструкцию. После этого на бумаге прорисовывают чертеж и на нём прописывают точные размеры.
Чтобы козырек выполнял защитную функцию, его ширина должна быть не меньше 150 сантиметров, а сам он должен располагаться под углом 20-30°. После этого можно приступать к монтажу.
Монтажные работы
Для начала нужно собрать раму П-образной формы. Когда каркас будет готов, к нему приваривают полукруглый козырек.
Вариативность материала поможет вам подобрать наиболее качественныйВсе действия выполняются по следующей схеме:
- В самом начале занимаются основной конструкцией — рамой. Для этого при помощи сварочного аппарата свариваются три металлических профиля в виде буквы П, они будут крепиться к опорным столбам.
- К готовой раме приваривают вылет козырька, на котором будет закрепляться крыша. Он должен располагаться перпендикулярно верхнему профилю. Такая конструкция может быть односторонней, но тогда будет защищена только одна сторона. Поэтому специалисты рекомендуют устанавливать вылет, который выходит на обе стороны.
- На этом этапе устанавливаются декоративные элементы: красивые кованые детали, узорчатые решетки. В промежутке между вылетом и стойкой приваривают уголки, чтобы обеспечить раме дополнительную жесткость.
- После того как собрали раму, приступают к изготовлению двух полукруглых деталей. Для этого можно взять очень тонкий металлопрокат и согнуть его при помощи трубогиба. Если такой аппарат отсутствует, то можно воспользоваться обычными тисками и газовым ключом, придав трубе форму полукруга собственноручно.
- Настало время приступить к сборке козырька. Для этого берутся подготовленные дуги, которые нужно приварить к вылетам каркаса. При этом их дополнительно соединяют по всей длине трубами. По окончании https://zaborprofi.com/vorota/so-vstroennoj-vnutri-kalitkoj.htmlработы следует зачистить места сварки.
- Подготавливают к обшивке листы поликарбоната, их отмеряют и нарезают на необходимую длину и ширину. Чтобы нарезать материал толщиной до 8 мм, понадобится обычный острый нож, а более толстые изделия обрабатываются циркулярной пилой.
- Подготовленные листы поликарбоната крепятся к каркасу саморезами с термошайбой. Снимать защитную пленку с материала стоит только после того, как конструкция будет полностью готова, поскольку материал легко поцарапать.
На заключительном этапе грунтуются металлические элементы навеса, а затем производят покраску. На этом сборка и установка козырька окончена.
‘; blockSettingArray[3][«setting_type»] = 5; blockSettingArray[4] = []; blockSettingArray[4][«minSymbols»] = 0; blockSettingArray[4][«minHeaders»] = 0; blockSettingArray[4][«text»] = ‘
‘; blockSettingArray[4][«setting_type»] = 1; blockSettingArray[4][«element»] = «h3»; blockSettingArray[4][«elementPosition»] = 1; blockSettingArray[4][«elementPlace»] = 4; blockSettingArray[5] = []; blockSettingArray[5][«minSymbols»] = 0; blockSettingArray[5][«minHeaders»] = 0; blockSettingArray[5][«text»] = ‘
‘; blockSettingArray[5][«setting_type»] = 6; blockSettingArray[5][«elementPlace»] = 90; var jsInputerLaunch = 15;
zaborprofi.com
Изготовление навесов над воротами
Для защиты входных конструкций от воздействия атмосферных осадков обычно устанавливают навес над воротами. Со вкусом выполненный козырек не только прикроет вход на территорию, но и будет прекрасным дополнением к обустройству забора.
Гораздо приятнее отворять калитку в ненастную погоду под защитным козырьком, чем стоять под струями дождя и пытаться открыть замок.
Еще наши предки широко использовали эти конструкции для защиты деревянных ворот и стогов сена, целых внутренних подворий и запасов дров.
И сегодня в сибирских деревнях мало какой хозяин не обустраивает козырек над въездом во двор.
Виды навесов
Козырьки могут устанавливаться не только над входными, но и над гаражными воротами, над дверями подъездов и частных домов. Независимо от места установки они зачастую имеют одинаковую форму при разных размерах. Объединяет их одно — характер выполняемых функций.

Вид навеса зависит от цели конструкции и фантазии мастера
В зависимости от формы навесы бывают:
- односкатные;
- двускатные;
- куполообразные;
- арочные;
- маркиза;
- вогнутые.
В качестве козырька на ворота чаще всего изготавливают арочные и двускатные конструкции. Остальные используются как защитные над входом в здание, над гаражными воротами, и для затенения — над окнами кафе и магазинов.
Забор наряду с фасадом дома является визитной карточкой домовладения.
Навес, как элемент ограды, должен вписываться в ансамбль строений, гармонировать с ними, а не выделяться.
Очень нелепо и вызывающе будет выглядеть кованый навес над деревянными воротами дома, покрытого шифером. Поэтому немаловажную роль играет материал кровли и ее конструкция.
Каркас навеса как правило изготавливается металлическим, реже — деревянным.

В наши дни деревянные навесы делают редко, отдавая предпочтение металлу
В качестве кровельного покрытия используется:
- металл;
- поликарбонат;
- стекло;
- металлочерепица;
- дерево;
- профлист.
На сегодняшний день самым популярным кровельным материалом является сотовый поликарбонат. Благодаря удачному сочетанию механических и оптических качеств он нашел широкое применение в строительстве в качестве светопрозрачного материала. Разнообразность его применения связана с уникальным комплексом свойств: прозрачность, прочность, гибкость, легкость, долговечность (при наличии ультрафиолетового слоя).
Навесы для ворот чаще покрывают цветным сотовым материалом.
Изготовление козырька не составляет большой сложности и может быть выполнено самостоятельно при наличии слесарных инструментов и сварочного аппарата.
Изготовление навесов
Решение о сооружении козырька должно приниматься на этапе строительства забора (ворот), так как в дальнейшем возникнет необходимость в креплении конструкции. Чтобы не ломать готовые опоры, необходимо уже в момент их постройки позаботиться об установке дополнительных закладных деталей в необходимых местах.

20-миллиметровые металлопрофильные трубы соединяют при помощи сварки
Навес для ворот состоит из набора арочных конструкций, выполненных из профильной трубы сечением 20 мм. Ширина козырька обычно составляет 1,5 — 1,8 м. При больших размерах на изделие повышается ветровая нагрузка из-за увеличения парусности конструкции.
Арки между собой крепятся продольными ребрами жесткости, сваркой. Шаг их установки составляет 80 — 100 см и зависит от длины навеса.
Изгибаются элементы с помощью трубогибочного станка, при его отсутствии можно воспользоваться следующим методом:
- Трубу, служащую основанием арки, независимо от длины делят на 6 равных частей. В центре основания приваривают отрезок, равный 250 мм.
- Высоту следующих 2 столбиков определяют как произведение величины центральной опоры и коэффициента 0,8888. При расчете размера 2 последних коэффициент равен 0.5556. Опоры устанавливают точно по разметке и приваривают.
- Профильную трубу, предварительно наполнив песком и заглушив торцы, устанавливают на опоры, фиксируют один конец и сгибают. Место соприкосновения арки и основания фиксируют сваркой.
- После этого в таком же порядке изгибают другую сторону. В готовой арке оставляют центральную опору, а остальные извлекают.
К продольным ребрам жесткости полученные элементы крепятся электросваркой, с полной проваркой швов. Полученная конструкция посредством опор крепится к закладным на столбах.
После установки и окончательного закрепления навеса на нем саморезами укладывается поликарбонат.
Соты должны проходить поперек конструкции. Благодаря такому расположению влага будет самотеком удаляться из внутренних полостей покрытия. Будет идеально, если конструкцию оборудовать водостоками и отвести дождевую воду.Подробнее о том, как сделать ворота и навес смотрите в этом видео:
Двускатный навес более прост в изготовлении и не отличается от сборки арочной конструкции. Здесь арки заменены А-образными элементами, на которые будет крепиться кровельный материал.
В качестве него обычно используется металлочерепица либо профнастил.
Крепится навес аналогично арочной конструкции. Единственным недостатком такого сооружения является шум, возникающий от ударов капель по кровле.
Козырьки для гаражей
Чтобы защитить ворота от воздействия осадков и попадания воды внутрь помещения, над въездом в сооружение устанавливают навес.
Самой простой и недорогой в исполнении является односкатная конструкция.
Выполняется она из профильной трубы или уголка, ширина полки которого будет зависеть от величины конструкции. При этом надо учитывать не только нагрузку от ветра, но и от снега.

Чаще всего в гаражах применяют односкатные козырьки
Как правило, гараж — сооружение небольшое и расстояние от горизонтальной балки ворот до крыши невелико. Поэтому угол наклона будет небольшой, что приводит к увеличению общей нагрузки на конструкцию. Каркас козырька состоит из наклонных кронштейнов, усиленных раскосами. Они помогут перераспределить усилия и передать часть нагрузки на стену постройки.
Для облегчения работы готовые элементы крепят отдельно, не собирая их в общую конструкцию. Для этого используют сварку либо анкерные болты.
Закрепленные детали соединяются между собой продольными ребрами жесткости. На наклонные полки консоли укладывается обрешетка, которая может быть выполнена из металлических полос или деревянных реек. К ней саморезами крепится кровельный материал. Неплотности между стеной и кровлей устраняются с применением герметиков или других материалов, имеющих подобные свойства. Подробнее о том, как сделать козырек над гаражом, смотрите в этом видео:
При изготовлении навеса необходимо учесть, что его вылет должен быть не менее 0,6 м и превышать ширину отмостки для предотвращения ее разрушения. Нижний срез кровли не должен мешать открытию створок. Поэтому при проведении замеров ворота должны быть приоткрыты.
Навес можно оборудовать водостоком, чтобы собирать жидкость в емкость. В любом случае будет лучше, если вода отводится от гаража.
Аккуратно изготовленные и красиво оформленные навесы над воротами будут не только выполнять свои непосредственные функции, но и придадут изюминку внешнему виду ограждения.
Похожие статьи
landshaftt.ru
История ворот — Мастерок.жж.рф

Прототипом современных ворот можно считать камень, которым древний человек загораживал вход в своё жилище, спасаясь от холода, диких зверей и набегов вражеских племен. Тогда человек начал строить ограждения, неотъемлемой частью которых и стали ворота. Они не отличались изысканным внешним видом, а носили чисто практический характер. Сначала ворота делали из наиболее доступного и недорогого материала — дерева. Позже ворота стали оббивать железом в декоративных целях. В то время такую роскошь могли позволить себе немногие — ведь железо было достаточно дорогим материалом. Потом железо стало дешевле, появились более лёгкие сплавы.
И на смену простым деревянным воротам пришли надежные стальные ворота.

Очень отличались от современных ворота, созданные в далёкой античности. Скорее это были просто «большие входы» в каменных сооружениях того времени. Позже, уже в XI веке нашей эры, на территории Древней Руси обрели популярность арочные ворота, состоявшие из двух каменных вертикальных колонн и соединявшей их арки. Такие ворота назывались популярным словом «портал». В средневековье практически все замки были окружены рвом с водой, и ворота, опускаясь вниз, выполняли роль моста, ведущего в город. Такие ворота отличались уже относительной технической сложностью. Как раз их можно рассматриваться как первые, пусть не автоматические, а полуавтоматические ворота.

Городские ворота в России служили не только для того, чтобы впускать и выпускать в город и из города людей и грузы, но были ориентированы по сторонам Света и использовались для проведения религиозных обрядов. Например, у Красных ворот в Москве встречали и провожали Масленицу, всенародно ели блины. А в русских деревнях ворота имели свою крышу и запирались на засов изнутри. Через них ввозили различные продукты, всевозможные товары, необходимые для поддержания жизни крестьянского дома. Как правило, в крестьянских владениях было двое ворот: фасадные, украшенные резьбой, и задние, которые обыкновенно выходили в огород.

Воро́та — проезд в стене или ограде, запираемый створами. Ворота могут использоваться для ограничения доступа на определённую территорию, а могут быть чисто декоративным элементом. Декоративные ворота, как правило, не имеют створов и представляют собой отдельно стоящую арку.
Укреплённые ворота являются неотъемлемой частью фортификационного с крепости, нередко перед воротами устраивался барбакан — оборонительное сооружение, охранявшее подступ к воротам. Сверху над воротами часто надстраивалась башня. Проход в воротах нередко перекрывался решеткой-катарактой.

Нам сейчас кажется, что ворота были всегда. Как солнце, воздух или колесо… Но если с солнцем и воздухом всё ясно, то ворота – как и колесо – кто-то придумал первым. Вот только история ворот началась много раньше истории колеса – еще на заре каменного века. Именно тогда самый изобретательный из наших далеких предков придумал загородить вход в свою пещеру большим камнем, обломками деревьев и пучками прутьев.
Ворота заслонили человека от холодных ветров и воинственных соседей. Ворота можно было приветливо распахнуть перед дорогими гостями, а можно – захлопнуть перед тяжеловооруженными недоброжелателями. Всегда и везде – в городе, крепости или доме – ворота служили надежной границей между общественным и личным, защитой от всего враждебного, что отныне навсегда осталось снаружи.

Внешний мир десятки столетий был холодным и враждебным, и человек, строя первые свои поселения, возводил вокруг них ограды и стены – и, конечно, стены эти были с воротами. Крайне интересна мистическо-религиозная символика ворот. С глубокой древности в самых разных культурах и религиях ворота, арки и двери являлись символами перехода в Иное – через сон, смерть или обретение высшей истины. Например, в римской мифологии двуликий Янус был богом ворот и дверей – и хозяином ключей от Главных Врат, символа начала и конца. Еще в седьмом столетии до нашей эры в Риме зародился интересный обычай: когда объявлялась война, правитель города отпирал двойные дубовые врата храма Януса, изукрашенные золотом и слоновой костью, и сквозь них проходили легионы солдат, отправлявшиеся на войну… Не случайно сквозь врата человеческие души пропускают в рай – но есть и ворота, ведущие в ад… И даже на страницах старозаветных сонников наши прабабушки могли прочитать, что увидеть во сне распахнутые ворота – означало стоять на пороге важного события, за которым откроется новое качество существования.

Врата Древнего Рима и Вавилона
Конечно, и в Древнем Риме, и в Византии, и в средневековой Европе были декоративные врата торжеств и военных триумфов – триумфальные арки, но были и настоящие ворота, которые должны были устоять при самом свирепом натиске вражеского войска. Например, необычайной красоты арочные Врата Иштар в легендарном Вавилоне предназначались не для защиты от неприятеля, а для торжественных процессий жрецов в честь этой богини плодородия и плотской любви – но, по свидетельству Геродота, стометровой высоты оборонительные стены Вавилона закрывались на 100 громадных, окованных медью ворот, и сквозь них не смог бы прорваться ни один враг. Главные ворота были важнейшим местом древних городов – в мирное время там кипела рыночная торговля и заключались сделки, там провозглашались пророчества и вершился суд.

И все-таки главной задачей ворот всегда была именно оборона города, крепости или замка. Ведь если врагам удавалось захватить ворота – город был обречен. Никакие жрецы и пророки не взялись бы предсказать, когда и с какой стороны подойдет вражеское войско, поэтому ворота городов и крепостей сооружали из самых прочных пород дерева, укрепляли бронзовыми и железными накладками и решетками. И даже чудовищные осадные тараны были не в состоянии проломить их – особенно когда сверху на осаждающих лилась горящая смола и летели тучи стрел. Часто ворота так и оставались неприступными, а врагам удавалось ворваться в город, только проломив участок стены.

Яркий пример таких несокрушимых средневековых укреплений – знаменитые Золотые ворота Киева, воздвигнутые в XI веке, при Ярославе Мудром… Они были эффективнейшим военно-инженерным сооружением и одновременно – со своей явно избыточной высотой в 14 метров – служили роскошной триумфальной аркой, открывая вход в княжеско-аристократическую часть Киева, крупнейшего города Древней Руси. Это белокаменное крепостное сооружение представляло собой настолько непреодолимую преграду для завоевателей, что в 1240 году войско монгольского хана Батыя предпочли не штурмовать Золотые ворота, а разрушить стены неподалеку…
В России, как и в других странах, мощные ворота издавна были обязательной принадлежностью городских кремлей, монастырей и крепостей – но не менее важную роль они играли в архитектуре аристократических дворцов, особняков и загородных поместий. Да и обычные люди – не только жители городов, но и крестьяне – старались украсить дома воротами сообразно своему чину и доходам. Ведь именно по богатству ворот судили о богатстве домовладельца! Обычно устанавливались ворота в один щит, в домах побогаче – в два щита с калиткой, ну а самые богатые хозяева расщедривались на тройные ворота с двумя калитками. Крыша над воротами украшалась резными башенками и гребнями, на нее помещали крест или икону. Например, в нише над воротами Спасской башни Московского Кремля сейчас, как и до 1934 года, находится образ Спаса Смоленского.

От дерева – к металлу и автоматике
Первые ворота Древнего мира делали из дерева – а поскольку на заре истории даже металлические петли еще не изобрели, то ворота поднимались и опускались на канатах, выдвигались из стен или попросту приставлялись к стенам. Затем человечество освоило выплавку металлов и изобрело дверные петли – и деревянные ворота начали открываться и закрываться вполне по-современному. Очень скоро ворота взялись укреплять металлом, а впоследствии и целиком делать из железа и бронзы. Частью ворот стали подъемные мосты – после того как их поднимали, осажденный замок оказывался под защитой еще и рва с водой. Еще ворота усиливали выдвигающимися из стен поперечными балками, подстраховывали дополнительными опускающимися решетками, а мост перед воротами снабжали остроумными ловушками – часть моста просто переворачивалась под весомы нападающих, и те проваливались в «волчью яму» с острыми кольями на дне. Интересно, что уже во времена раннего Средневековья появились различные технические приспособления для более удобного открывания-закрывания ворот – так что можно смело сказать, что первые «предки» современных автоматических ворот появились именно тогда! Затем ушли в прошлое стенобитные машины и штурмовые тараны, под призрачной поступью Времени пали несокрушимые врата древних городов и цивилизаций, а уцелевшие крепости и замки постепенно потеряли свое военное значение… И уже к концу XIX столетия ворота играли в основном декоративную роль, а над их дизайном работали лучшие архитекторы и художники.

Но вот начался беспокойный XX век. Вслед за сменой архитектурных стилей менялась и стилистика оформления ворот – классицизм, модерн, ар-деко, конструктивизм… Вот только сама суть устройства ворот оставалась неизменной. И действительно – что еще можно придумать в этом, казалось бы, несложном устройстве! Наверное, конструкция ворот попросту достигла своего совершенства?!

К счастью, так только казалось. Но для того чтобы всерьез заняться изобретением чего-то новенького в такой «скучной» области, как ворота, требовалось время – а его как раз и не хватало. Над миром прогремела Первая и Вторая мировые войны – и только в середине 1950-х, оправившись от военных ран и отстроив разбомбленные города, человечество вновь вошло во вкус спокойной и сытой мирной жизни. Да-да, обычной мирной жизни – с мягким диваном перед телевизором и новеньким автомобилем в гараже. Кстати, и в Америке, и в Европе телевизоры и личные автомобили появились в массовых количествах именно тогда, в 1950-х годах. Вот только для полноты счастья людям, как всегда, чего-то не хватало…

Телепрограммы надо было переключать тумблером на самом телевизоре, пропутешествовав до него через всю гостиную, а ворота гаража с новеньким авто также требовалось открывать вручную, и ворота эти были тяжелыми и не всегда чистыми…

Так что совершенно не удивительно, что два величайших изобретения, наконец-то позволивших человеку наслаждаться жизнью, были сделаны именно тогда – причем практически одновременно! В 1956 году в США запатентовали дистанционный пульт управления для телевизора, а в 1958-м одновременно в Германии и США изобрели автоматические секционные гаражные ворота. Сбылась мечта лентяев – теперь переключать каналы и управиться с гаражными воротами можно было одним нажатием кнопки!

Автоматические ворота – «умные» ворота!
Разумеется, автоматические ворота – это в первую очередь ворота с электроприводом для открывания-закрывания и современной интеллектуальной автоматикой. Причем если для вашего особняка или загородного коттеджа установка автоматических ворот означает в первую очередь комфорт и безопасность, то при промышленном применении использование автоматических ворот, как правило, обеспечивает еще и повышение производительности труда.

Автоматические гаражные ворота по способу движения при открывании и заполнению полотна принято разделять на секционные и рулонные. Ну а уличные ворота делятся на распашные и откатные. Собственно говоря, способов открывания у ворот всего два – они либо сдвигаются, либо распахиваются. Сдвижные автоматические ворота используют пространство под потолком или справа-слева от проема, тогда как для распашных ворот необходимо свободное пространство перед проёмом. Таким образом, сдвижные автоматические ворота более эффективны, поскольку благодаря такой конструкции экономится большая площадь перед въездом в гараж.

Секционные ворота, пожалуй, самые распространенные и в России, и в Европе – в том числе благодаря отличным потребительским свойствам и привлекательному дизайну, который подходит к любой архитектуре. Их полотно состоит из горизонтально расположенных секций. Обычно секции изготавливаются из заполненных пенополиуретаном сэндвич-панелей и могут быть задекорированы под дерево. В секционных воротах могут быть смонтированы калитка и обзорные окна – или даже все их секции можно изготовить из прозрачного акрила с окантовкой алюминиевым профилем (доля прозрачной части может составить до 90%). При открывании полотно ворот поднимается по направляющим под потолок и не занимает полезное место.

Рулонные ворота (рольворота) похожи на громадные рольставни – когда их открывают, они сворачиваются в рулон внутри короба над проемом. Обычно их устанавливают в неотапливаемых помещениях. Полотно ворот может быть выполнено из стальных или алюминиевых ламелей с пенополиуретановым наполнителем или без него.

Откатные ворота лучше использовать, когда пространство около ворот ограниченно, так как их створки не сужают проем – откатным воротам не требуется дополнительное пространство при открывании. Конструкция ворот может быть самой различной: подвесной консольного типа (без верхнего направляющего рельса – самый удобный тип), подвесной с верхним расположением рельса, а также с нижним расположением рельса.

Ворота консольного типа представляют собой раму (полотно), которая перемещается вдоль забора по установленным на фундаменте консольным блокам-тележкам. Ролики тележек расположены внутри несущей балки, фундамент – на внутренней территории слева или справа от проезда, а внизу рамы ворот по всей длине приваривается направляющий рельс. При этом проем ворот полностью свободен, а механизм обеспечивает надежную работу привода даже в холодное время и позволяет легко открывать ворота вручную.

Но при этом необходимо учесть, что иногда для отката ворот попросту не хватает места. Так, при ширине проезда 4 метра потребуется 6 метров свободного пространства справа или слева.
Распашные ворота – самый традиционный и популярный тип уличных ворот, который без проблем впишется в любую готовую ограду (разве что надо предусмотреть место для их открывания либо наружу, либо внутрь проема). Полотно ворот состоит из двух створок. Опорную конструкцию и раму распашных ворот изготавливают из металлопроката, обшивая ее сэндвич-панелями, профильными листами с полимерным покрытием или используя художественную ковку. Классические распашные ворота обычно устанавливают на въезде на территорию, они могут быть частью забора или элементом конструкции здания.
Ну а теперь снова вернемся в конец 1950-х годов, когда автоматические секционные ворота только разрабатывались. Тогда, более полувека назад, перед немецкими и американскими инженерами стояли две главные задачи: ворота должны были открываться без использования физической силы человека – и быть пригодными для использования в отапливаемых помещениях. И обе задачи были решены! Во-первых, секции ворот сдвигаются по направляющим под потолок, и вес ворот сбалансирован пружинами – это позволило устанавливать электродвигатели невысокой мощности и с легкостью всё автоматизировать. Во-вторых – применение секций из сэндвич-панелей с резиновым уплотнителем по периметру дало возможность использовать ворота для теплых помещений. Конструкция таких ворот предельно эффективна и проста, что и сделало автоматические секционные ворота самыми популярными во всех странах мира – в том числе и в России!

Обычные гаражные ворота никогда не сравнятся по простоте и удобству использования с автоматическими, которые легко открываются при нажатии на кнопку дистанционного пульта-брелка или при срабатывании фотоэлементов! Тем более что с помощью радиопульта, не выходя из машины, можно не только управлять воротами, но и включать дополнительную подсветку в гараже или во всем дворе. При этом гараж легко оборудовать дополнительным электронным кодовым выключателем, установить электромагнитные замки, проблесковые маячки, фотоэлементы, светофоры и системы доступа… Можно выбрать и самый традиционный и популярный в Европе вариант – установить на въезде классические распашные ворота, а в гараже поставить самые современные секционные. Всё здесь зависит только от Вашего желания!
Вам больше не потребуется выходить из автомобиля в проливной дождь или мороз, чтобы открыть ворота, – надежная автоматика исправно сработает и в зной, и в лютую стужу. Ну а внутри гаража Вы будете надежно защищены от любой непогоды благодаря утеплителю и контурному уплотнению ворот.
Армированные конструкции хорошо защищают ворота от взлома и любых физических повреждений – а стильный внешний вид и богатейший выбор расцветок помогут вам подобрать вариант ворот, на 100% подходящий к вашему дому, гаражу и двору! Ну и наконец – что греха таить! – нам зачастую совсем не безразлично мнение соседей, особенно если вы живете в коттеджном поселке. И как Вы себя почувствуете, если соседские дома уже щеголяют стильными автоматическими воротами, а ваш гараж «украшен» всего лишь «дедушкиными» двустворчатыми воротами из крашеного металлического листа? Так пусть лицом Вашего загородного дома станут надежные, современные, высокотехнологичные ворота, не только представляющие собой непреодолимое препятствие для холода, жары и взломщиков, но и делающие въезд и выезд из гаража легким и комфортным!
[источники]Источники:
http://tayni.info/91781/
https://ru.wikipedia.org/wiki/%D0%92%D0%BE%D1%80%D0%BE%D1%82%D0%B0
masterok.livejournal.com
Резной навес над калиткой своими руками — фото и чертеж | Своими руками
Долговечные стойки
Рядом со столбиками имеющейся калитки установил по 1 квадратному деревянному бруску сечением 60×60 мм и высотой 2000 мм. Для долговечности деревянных стоек не вкапывал их в землю, а поставил на трубы. Для этого в нижнем торце стоек перьевым сверлом d 20-21 мм с удлиненным хвостовиком просверлил отверстие глубиной 200-250 мм и забил в него кусок металлической трубы соответствующего диаметра и длиной 700-800 мм. Именно эту часть стойки и опустил в выкопанное в земле самодельным буром отверстие d 100 мм, залил бетоном. При этом деревянную часть заготовки недовел до земли на 80-100 мм. Такой способ установки намного продлевает срок службы стоек — сарай на даче, построенный подобным способом, служит 15 лет.
Важно!
Перед установкой стойки на дно ямы кладу плоский камень, что-бы исключить возможность самопроизвольного опускания заготовки.
Углубления для навеса над калиткой
Мой самодельный бур (см. рис. 1 на стр. 18) представляет собой закрепленный на деревянном диске (3), согнутый из толстой жести кусок металлической трубы (1) d 100 мм, длиной 300-400 мм. Диск с трубой прикрепил к черенку (4) длиной 1,6-1,8 м с поперечной рукояткой (5), а на рабочей части трубы нарезал зубья (2). При работе бур ставил вертикально и, вращая за рукоятку, вдавливал в землю. Через несколько витков доставал инструмент и вытряхивал из него почву, опускал приспособление в яму и повторял операцию. Так за несколько проходов выкопал в земле нужные углубления.
Кстати
Если при работе буром натыкался на камень, извлекал тот ломом или лопатой.
Сборка каркаса навеса
Собрал его из сосновых досок толщиной 18-20 мм и шириной 100 мм. Нижнюю часть каркаса фигурно выпилил электролобзиком и просверлил в ней декоративные отверстия (рис. 2). Готовые детали покрасил в коричневый цвет. Из длинных досок (2) собрал две арки, соединяя заготовки друг с другом металлическими накладками (7). Справа и слева к аркам прикрепил пластинами (6) детали (3), а при помощи торцовых частей (1) и перемычек (4, 5) окончательно собрал каркас. Затем зафиксировал на нем дополнительные декоративные элементы (8, 9, 10) и серьги (11), предварительно выпиленные электролобзиком и окрашенные в синий цвет.
Пластиковая крыша
Смастерил ее из коричневого сайдинга (рис. 2, п. 14) Окантовал его L-образным финишным профилем (15). а в качестве конька применил наружный угол для сайдинга (16). На конек и горизонтальные участки крыши установил шпили (17) из древесины. В одном из них выпилил продольный вырез (18) для крепежа на коньке. А внутри навеса подвесил фонарик-маячок, источником света в котором является светодиод, подключенный к понижающему трансформатору.
Читайте также: Металлическая калитка своими руками – фото и чертеж
Навес над калиткой своими руками – чертеж

Рис. 1. Бур. Устройство и спецификация
1. Труба 2. Зубья 3. Диск крепления трубы бура 4. Черенок 5. Рукоятка
Рис. 2 Навес над калиткой Схема сборки и деталировка
1. Поперечные доски каркаса 2. Доски для арок каркаса 3. Доски горизонтальной части каркаса 4. 5. Перемычки 6, 7. Крепежные детали 8. Задняя декоративная накладка 9. Декоративная накладка на арку 10. Декоративная накладка на горизонталь 11. Серьга 12. Стойка навеса 13. Саморезы 14. Сайдинг крыши 15. Окантовка сайдинга 16. Конек 17. Шпиль 18. Продольный вырез для установки шпиля на коньке
© Автор: Игорь Лашук, г. Гродно. Фото автора
ИНСТРУМЕНТ ДЛЯ МАСТЕРОВ И МАСТЕРИЦ, И ТОВАРЫ ДЛЯ ДОМА ОЧЕНЬ ДЕШЕВО. БЕСПЛАТНАЯ ДОСТАВКА. РЕКОМЕНДУЕМ — ПРОВЕРЕНО 100% ЕСТЬ ОТЗЫВЫ.

Реклама
Ниже другие записи по теме «Как сделать своими руками — домохозяину!»
Подпишитесь на обновления в наших группах.
Будем друзьями!
kak-svoimi-rukami.com
Навес над калиткой: фото, изготовление, инструменты
Содержание статьи:
Забор, ворота или изгородь является неотъемлемой частью частного дома. Каждый владелец такого жилья хочет, чтобы его ограждение было не только привлекательным, но и практичным. Лучшим решением станет навес над калиткой, особенно если сделать его своими руками. Он позволит не только украсить забор, но будет полезным (фото 1).
Преимущества козырька над калиткой
Главное преимущество навеса над калиткой — это защита от непогоды. Навес позволит в дождливую или снежную погоду спокойно достать из сумки ключи и открыть замок.
Кроме того, навес позволит защитить замок от быстрого выхода из строя. Дождевая вода, которая попадает в замочную скважину, подвергает металл коррозии и замок ржавеет. А если учесть, что для наших широт зима характерна частыми оттепелями, то замок от попавшей в него воды может замерзнуть.
На фотографии 1 изображена калитка с навесомНе менее важен внешний вид. Козырек над калиткой значительно изменит и украсит общий вид всего забора.
Монтаж навеса над калиткой
В магазинах продаются уже готовые навесы, но нет ничего сложного в том, чтобы сделать его своими руками. Кроме того, делая его самостоятельно, можно быть уверенным в эксклюзивности конструкции. Зачастую сделанные козырьки над калиткой своими руками выглядят намного привлекательнее тех, что продаются в строительных магазинах.
Для конструирования понадобятся такие инструменты:
- Металлопрофиль или лист металла
- Декоративные кованые элементы
- Сварочный аппарат
- Электроды
- Строительный уровень
- Болгарка
- Отрезные и зачистные диски
- Щетка по металлу
- Дрель и сверла
- Перфоратор
- Кисточки и краска.
Подготовительные работы
На начальном этапе нужно определиться с выбором формы планируемой конструкции. На листе бумаги делается эскиз желаемого навеса. Если вы не умеете рисовать, то можно подсмотреть дизайн козырька над калиткой. Фото навесов всевозможных конструкций и размеров можно найти в сети. Но нужно учитывать, что не все понравившееся можно сделать самостоятельно без специализированного оборудования, поэтому трезво оценивайте свои возможности (фото 2).
На фотографии 2 вы видите изображение навеса из поликарбонатаСледующий этап — проверка на прочность несущих элементов будущей конструкции. Нужно убедиться, что столбы калитки выдержат груз. При желании сделать навес полукруглой формы лучше использовать тонкий металлопрокат, так как его легче изгибать.
И последним пунктом в подготовке нужно рассчитать необходимое количество строительного материала для козырька. Для этого делают замеры и выбирают покрытие, из которого планируется делать навес. Это может быть: мягкая черепица, дерево, поликарбонат или металл.
Конструирование козырька
Для примера возьмем несложную конструкцию, которую можно сделать своими руками, не обладая особыми навыками. Это будет крыша округлой формы.
Изготовление козырька начинается с его рамы, которая будет опираться на столбы калитки. Рама делается из металлопрофиля в форме буквы «П». К полученному каркасу приваривается вылет будущей крыши козырька. Для удобства делать его лучше по обе стороны, чтобы обеспечить укрытие как при входе, так и при выходе со двора.
Для придания красивого вида навесу, между вылетом и стойкой каркаса приваривают кованые декоративные элементы.
Когда каркас готов, можно приступать к изгибанию металла, что придаст округлую форму конструкции.
В идеальном варианте металл лучше гнуть предварительно разогрев в горне, но поскольку навес делается своими руками, то мало у кого дома может оказаться все необходимое. Поэтому один край листа металла зажимаем в тиски и начинаем изгибать при помощи рычага, которым вполне может стать газовый ключ. Поскольку скат крыши будет по обе стороны, необходимо изогнуть 2 заготовки.
Изогнутые элементы привариваются к конструкции. Это и будет основа для кровельного материала.
Если сварочным аппаратом вы пользуетесь не профессионально, то сначала стоит потренироваться на отходах. Металл для каркаса кровли берется тонкий, поэтому его легко прожечь. Чтобы не испортить крышу, сделайте несколько пробных сварочных швов на отходах. Так можно будет рассчитать время, которое требуется на приваривание металла.
Более подробней о навесе над калиткой вы сможете узнать просмотрев это видео:
Болгаркой с зачистным диском обрабатывают все неровности и погрешности полученного изделия. Основа готова. Теперь останется только закрепить на ней выбранный ранее кровельный материал. Монтирование покрытия производят сварными швами или болтами, в зависимости от вида кровли.
Раму и другие декоративные элементы стоит покрасить, чтобы придать красивый внешний вид и защитить от коррозии.
Также своими руками можно изготовить навес над погребом или подвалом.
vashibesedki.ru
Долговечные стойки