Навес для машины своими руками из дерева, металла, поликарбоната, к дому, во дворе, чертежи
Сразу после постройки дома, а иногда и «до» возникает вопрос с парковкой. Строить капитальный гараж не всегда есть возможность, а вот поставить крышу на столбах — навес — это уже проще и дешевле. Навес для машины может быть отдельно стоящим сооружением. Тогда его располагают во дворе, как правило, недалеко от въездных ворот или гаража. Второй вариант — пристроенный к дому, когда одна или несколько сторон крыши опирается на стену здания. С точки зрения функционала оба варианта равноценны, просто каждый выбирает исходя из личных требований и предпочтений.
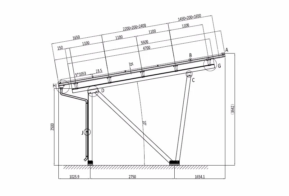
Один из вариантов навеса для автомобиляСодержание статьи
- 1 Размеры
- 2 Материалы для каркаса
- 3 Виды кровли (с чертежами и размерами)
- 4 Кровельный материал
- 5 Чем выложить площадку
- 6 Пристроенный к дому навес своими руками (фотоотчет)
- 7 Как сделали навес для поликарбоната (фотоотчет)
- 8 Видео по теме
Размеры
Так как габариты автомобилей могут серьезно отличаться, в каждом случае оптимальные размеры определяются в зависимости от имеющегося авто.
Высота обычно в районе 2,5 метров. Этого более чем достаточно даже для внедорожника с загруженным багажником. А для определения длины и ширины навеса, к внешним размерам размерам машины добавляют, как минимум, метр. Согласитесь, вполне достаточно, если до столбов будет расстояние в полметра.
Пример навеса для одной машиныВот только для защиты от осадков свесы крыши лучше сделать подлиннее: они закроют и от косого дождя и снега.
При определении размеров навеса для двух машин, принимают расстояние между зеркалами заднего вида равными 50 см. Столько же считают до столбов. А длину навеса определяют по наиболее длинному авто.
При расчете ширины навеса для двух машин принимают расстояние между зеркалами заднего вида равное 50 см. До столбов считается тоже по полметраМатериалы для каркаса
В основном для опор используют древесину — брус или бревно, металлическую трубу круглого или прямоугольного сечения. Иногда опорные колонны складывают из кирпича или камня. Они более массивные, привлекают больше внимания, потому должны вписываться в стиль постройки, которая находится рядом.
Есть еще варианты, когда низ опорной колонны делают из кирпича, а верх — из древесины или металла. И в этом случае все определяется стилистикой дома и участка. Не стоит делать кирпичные опоры, если есть ограничения по размерам участка: они довольно массивные и отнимают приличное количество места.
Все материалы (кроме кирпича) перед использованием обрабатываются. Древесина в обязательном порядке покрывается антипиренами (снижающими горючесть материала). Затем пропитывается составами, которые будут защищать ее от поражения насекомыми-древоточцами, а также от всех погодных условий.
Интересный проект автонавеса из поликарбонатаЕго реализацияОсобое внимание стоит уделить обработке древесины, которую будут закапывать в грунт. Ее можно пропитать специальными составами для древесины, контактирующей с грунтом (например, Сенеж Ультра и его аналоги). Хорошо себя показала пропитка в отработке. Концы столбов, которые будут закапывать, погружаются в емкость с отработкой на пару дней.
После просушки их можно использовать без дополнительных мер. Лет на 10 хватит.
Второй вариант — залить бетонный столб в землю, а в него вмонтировать закладную пластину, башмак или шпильку, к которым потом крепить деревянный брус.
Металлические столбы зачищается от ржавчины, покрывается грунтовкой. После сварки, дополнительно обрабатывают швы и все покрывают краской в два слоя. Второй наносят после того, как первый слой краски высохнет до состояния «на отлип».
Виды кровли (с чертежами и размерами)
Самой экономной и простой получается односкатная крыша. Обычно ее используют если навес для машины пристроен к дому: так проще всего организовать нормальное примыкание к стене.
Чертеж навеса с односкатной крышей, пристроенной к домуДелают односкатную крышу и для отдельно стоящих навесов. В регионах с малоснежными зимами, можно сделать крышу без ската, в тех, где снега выпадает много, необходим уклон не менее 8-10°. В этом случае более низкую сторону делают с юга или востока: чтобы было больше тени.
Также в этом случае с южной стороны можно навес зашить и сбоку (или посадить там высокие растения).
Если делают навес из поликарбоната, то крышу делают сводчатую. Она оптимальна и с точки зрения схода осадков и легко реализуется благодаря гибкости этого материала.
Чертеж навеса со сводчатой крышейБолее сложная в исполнении двускатная крыша. Если делать ее из металла, она имеет относительно несложное строение.
Чертеж двускатной крыши навеса для машины из металлаВ случае с деревянным навесом под двускатной крышей система получается многокомпонентная.
Пример устройства двускатной крыши из дереваКровельный материал
Если навес для машины пристраивается к дому, имеет смысл его крышу сделать из того же материала. Под мягкие типы кровли (гибкая черепица, ондулин и т.п.) требуется сплошная обрешетка, под жесткие — разреженная, а шаг выбирают в зависимости от ветровых и снеговых нагрузок в региона, ориентируясь также на рекомендации производителей кровельного материала.
Если полного затенения не требуется, можно использовать поликарбонат. Он, кстати, самый популярный в последнее время материал. Только выбирать его необходимо правильно: брать многокамерный, имеющий как минимум, три слоя пластика и два ряда ячеек. Под таким навесом из поликарбоната даже в солнечный день нежарко.
Также степень нагрева зависит от цвета. Смотрите технические характеристики и выбирайте тот, у которого поглощение солнечного света больше. Прозрачные нужны для теплиц, чтобы греть растения. Для навесов, наоборот, нужен поликарбонат с низкой светопропускной способностью.
Чем выложить площадку
Самый простой и недорогой способ сделать площадку под автонавесом — засыпать ее гравием. Для этого надо будет снять дерн, вкопать бордюр, насыпать щебень и хорошо его утрамбовать с использованием трамбовочных платформ. Тогда площадка будет жесткой и колеи не образуются.
Утрамбованный щебень — хорошее покрытие для машинной стоянкиБолее популярны в последнее время площадки, вымощенные тротуарной плиткой или брусчаткой.
Они имеют более привлекательный вид, но их устройство обходится дороже. Подготовка начинается также: сначала снимается грунт. Но котлован делают глубиной порядка 20-25 см. На дно насыпают щебень, который тоже хорошо трамбуют. Затем на щебень желательно расстелить слой геотекстиля. Это нетканый материал, который не даст просыпаться песку, который будет насыпан сверху, и смешаться с гравием. Также геотекстиль равномернее перераспределяет нагрузку, не давая основанию просесть под колесами авто (его применяют при строительстве дорог). На него уже насыпают слой песка, который тоже утрамбовывают. В песок укладывают тротуарную плитку, клинкерный кирпич, булыжник и другие подобные материалы.
В середине по затратам находится площадка из бетона. Основание подготавливают тоже из утрамбованного щебня. На него на расстоянии в 1 м укладывают деревянные планки, которые выставляют в уровень или с небольшим уклоном для стока воды. Эти планки служат маяками при заливке, а затем играют роль демпферных швов, компенсируя температурное расширение бетона.
При таком строении трещины появляются реже.
Между планками укладывают металлическую сетку из оцинкованной проволоки. Можно, конечно, нержавеющую, но она дорогая. Толщина проволоки 3-4 мм, ячейка 10*10 см. Сверху заливают бетоном не ниже М 250. Толщина слоя бетона — 7-10 см.
Бетонная площадка под навесом для автоПристроенный к дому навес своими руками (фотоотчет)
Было решено пристроить к дому навес, под которым прятать любимую технику — автомобиль и лодку. Сначала при помощи мотобура выкопали ямы глубиной 1,5 м — ниже глубины промерзания.
С мотобуром копать проще))Вставили гильзы из гидроизоляции, каркас из прутка 10 мм с приваренными закладными, залили бетоном.
Основа под столбыШаг установки столбов — 2 метра.
Так выглядит залитый ряд опор под автомобильный навесКогда бетон схватился, установили столбы и верхнюю обвязку.
Они отшлифованы и обработаны защитной пропиткой. Чтобы каркас не повело, закрепляли чем было — алюминиевыми уголками. Стык стоек и обвязки усилили металлическими пластинами.
К стене дома прибили опорную доску. К ней крепили балки крыши (доска 50-200 см). Скат получился небольшой, порядка 9°, но его достаточно. В балках под размер бруса сделаны небольшие запилы — для упора, края срезаны, чтобы получился ровный свес.
Запилы на балкахК обвязке балки крепили гвоздями наискосок, по 2 шт с каждой стороны.
К стене прибита доска, к ней крепили балкиБалки на стене закреплены на U-образные металлические пластины.
Пластины, которыми крепятся к стене балкиСтропильная система собрана — балки установили с небольшим шагом — 40 см, их сделали из доски 50*200 мм.
Стропильная система односкатного навеса снизуСверху на стропила прикрепили ОСБ. Кровельный материал — мягкая черепица. Под него нужна сплошная обрешетка.
Уложено ОСБ на крышуСбоку между стойками прибили доску: для большей жесткости и чтобы дождь меньше мочил площадку.
Уложили мягкую черепицу. Получилось — хоть танцуй.
На навесе танцевать можноТеперь на стоянке конкуренция.
Готовый навес для машиныКак сделали навес для поликарбоната (фотоотчет)
Использованные материалы:
- профтруба
- для стоек 80*80 14,6 м;
- для арок 50*25 — 4 шт. по 6 м + 50*25 — 10 шт. по 6 м. на распорки;
- пескобетон — 3 мешка по 40 кг.
- щебень — 4 мешка по 25 кг.
- сурик — 3 банки по 1 л.
Навес делали над готовой уже дорожкой. Столбы закапывали в промежуток между бордюром и забором. Получилось, что опоры навеса ставили возле столбов забора. Было решено их использовать при выставлении уровня: анкерами прикрепили, чтобы не мучиться при заливке.
Так крепили столбыСтолбы ровняемМеталлические столбы стоек закопали в грунт на 1,2 м, засыпали щебнем, залили бетоном. Когда бетон схватился, приварили верхнюю обвязку.
Привариваем верхнюю обвязкуПосле началось изготовление ферм.
Сначала на трубогибе выгнули профили с требуемым радиусом (подъем в высшейточке 1,2 м). После началась сборка «конструктора».
Полезными были струбцины, ими скрепляли детали, чтобы они не сдвинулись при работе. Фиксировали к первой ферме, чтобы все было сделано точно. Струбцин было много)))
Нарезаем, складываем, варимКогда все фермы готовы, их очистили, зашкурили до белого металла, потом прогрунтовали и дважды покрасили. После началась акробатика. Надо установить тяжеленные фермы на столбы, выставить по вертикали, не сбив при этом диагонали.
Исполнение акробатического этюдаКак только удалось выставить верно, быстро прихватывали сваркой, оставив тщательное проваривание швов «на потом», на после финишной провеки: все должно оказаться на одном уровне.
Прихватываем фермы сразуПроизошло чудо, все оказалось почти на одном уровне. Небольшой перепад в несколько миллиметров в расчет не берем.
Все фермы выставлены на одном уровнеТеперь привариваем обрешетку из профильной трубы 50*25 мм под поликарбонат.
Осталось прикрепить поликарбонат. Крепится он на саморезы через специальные термошайбы (продаются там же где и поликарбонат). Два листа соединяются при помощи специальных профилей. Они бывают разъемные и неразъемные. Неразъемные дешевле, но потом вы из этого поликарбоната ничего больше не сможете сделать. Так что использовали разъемные.
Первый лист закрепленТакже надо закрывать края всех листов, иначе внутрь будет набиваться пыль, мошкара, потом из-за испарений появится влага, а следом — плесень. И вид у покрытия будет плачевный. Потому устанавливаем специальные заглушки на края.
Видео по теме
Навес для авто своими руками чертежи, проекты, план как сделать.

Содержание:
- 1 Поэтапное строительство навеса для автомобиля своими руками
- 1.0.1 Материалы:
- 1.0.2 Инструменты:
- 1.0.3 Советы:
- 1.0.4 Время:
- 1.1 Как сделать навес для двух машин размером 6х6
- 1.2 Каркас
- 1.3 Крыша
- 1.3.0.1 Вывод
- 1.3.1 Навесы для авто фото
В этой пошаговой инструкции мы поговорим о том, как построить открытый деревянный навес своими руками для автомобиля во дворе частного дома, или в саду на даче. Строительство большого укрытия для автомобилей от солнца и дождя — отличное дополнение, так как ваши машины будут в сухом месте защищены от непогоды. Работы по возведению навеса для 2х машины возле дома стоит проводить с вниманием и здравым смыслом, так как вам нужно планировать каждый аспект строительства с самого начала. Обратите внимание на все, что может пойти не так, чтобы предотвратить дорогостоящие ошибки. Смотрите все фото пошагового проекта открытого гаража для авто в этой статье.
Принимая во внимание, что вам, скорее всего, необходимо будет получить разрешение на строительство, мы рекомендуем изучить местные законы перед началом разработки реального проекта строительства. Существует много полезных аспектов, которые вы могли бы узнать из строительных норм, такие как глубина фундамента или материалы, которые вам нужно использовать. Обратитесь к инженеру, поскольку вам нужно построить большую двускатную крышу если это для двух авто и односкатную для одного, который должен поддерживать значительный вес.
Кроме того, мы рекомендуем вам нанять инженера при проектировании навеса. Конструкция для двух автомобилей требует жесткой структуры, иначе она может разрушиться в долгосрочной перспективе. Эти планы и чертежи имеют информационное назначение, поэтому перед началом строительства вам необходимо нанять специализированного строителя. Правильно устанавливайте столбы, используя металлические анкеры или устанавливая их в бетон.
Навес для авто чертежМатериалы:
- A — 6 штук 10×10 столбов – 215 см длиной;
- B — 4 штук 5×15 балок – 6 м;
- C — 8 штук 10×10 — 80 ½ брусков;
- D — 11 штук 5×10 – 6м, 22 штуки 5×10 стропил – 3м, 10 штук 5×10 балок – 55 см;
- E – 90 кв.
м. фанеры, осб плит; - F — 8 штук 5×10 балок – 4 м, 30 штук 5×10– 20 см;
- G — 18 штук 3/4 «фанеры, или осб плит — 10×20;
- H — 180 кв. м. гидроизоляционной подстилки, рубероида;
- I — 180 кв. м. асфальтовой черепицы для кровли.
Инструменты:
- Защитные перчатки, очки.
- Пила торцевая.
- Линейка, мел, рулетка, уровень, столярный карандаш, молоток.
- Дрель и сверла.
Советы:
- Наймите инженера, прежде чем заливать основу и ставить основания.
- Временно закрепите стене скобами.
Время:
- Одну неделю.
Как сделать навес для двух машин размером 6х6
Проводим замерыПервым шагом проекта является, профессиональная разметка места возведения навеса. Как вы можете видеть на картинке, вам нужно использовать доски и бруски, иначе вы не сможете получить профессиональный результат. Примените уровень до каждого из углов, чтобы убедиться, что они имеют 90 градусов.
Кроме того, отрегулируйте столбцы до тех пор, пока диагонали не станут абсолютно равными.
Каркас
Есть много способов, которыми вы можете установить столбики для каркаса навеса автомобилей рядом с домом. Прежде всего, вам нужно выкопать глубокие отверстия (не ниже 10 см линии промерзания почвы) и высыпать слой гравия. Установите формы труб и в них вставьте стойки, чтобы убедиться, что они абсолютно прямые. Закрепите столбы скобами перед заливанием основания бетоном.
Установка столбовСовет: в качестве альтернативы вы можете использовать металлические трубы, вместо деревянных брусков. Как вы можете видеть на фотографиях, вам необходимо закрепить металлические анкеры в бетоне, чтобы правильно зафиксировать деревянные столбы. Сопоставляйте все с вниманием и с большой осторожностью.
Позвольте бетону застыть в течение нескольких дней, прежде чем продолжить проект. Более того, как вы можете заметить на изображении, вам нужно отвесить столбы по уровню.
Поместите балку поверх столбов, чтобы проверить, есть ли они одинаковой высоты.
Продолжайте проект по строительству недорогого оригинального навеса для автомобилей, прикрепив опорные балки к верхней части столбов. Как вы можете видеть на картинке, вам нужно просверлить пилотные отверстия как через балки 5×15, так и через столбы. Закрепите балки с помощью болтов. Используйте шайбы и убедитесь, что вы не затягиваете болты слишком сильно, чтобы предотвратить расщепление дерева.
Установка подпорокПринимая во внимание размер навеса, вам необходимо укрепить раму с помощью скобок. Так как показано на рисунке, постройте фигурные скобки с использованием 10×10 брусков обрезанных на концах под углом 45. Прикрепите бруски к месту с помощью оцинкованных винтов.
Крыша
Строительство фермПостроение навеса под авто с двускатной крышей — сложный процесс, так как рама очень широкая. Как вы можете заметить в чертежах, вам нужно собрать несколько строп крыши на ровной поверхности.
Вырежьте компоненты в правильном размере и плотно закрепите их винтами. Нижние стропила из брусков размером 5×15 и общие стропила 5× 10.
Установка стропилСовет: добавьте несколько промежуточных стропил до торцевых ферм, так как они должны поддерживать концы фронтона. Прикрепите стропила на месте гвоздями. Отрежьте верхнюю часть вертикальных опор под углом 60 градусов.
Принимая во внимание размер и вес ферм лучше выполнять работу вдвоем при подгонке их к каркасу навеса. Прикрепите фермы к верхней части рамы и закрепите их на опорных балках длинными оцинкованными винтами. Перед тем, как вставлять винты, сверлите экспериментальные отверстия под углом, чтобы предотвратить расщепление древесины.
Монтаж торцовых концовСовет: поместите фермы равномерно, на расстоянии примерно 60 см между ними. Закрепите их, прежде чем стелить настил. Установите ребра жесткости между фермами, чтобы повысить жесткость конструкции.
Продолжайте, присоединив доски или осб плиты к торцевым фермам.
Закрепите их гвоздями.
Если вы хотите, чтобы ваш открытый гараж имел красивый вид, вам нужно прикрепить навесы к передней и задней части конструкции. Используйте стропила 18 сантиметров и длинные стропила, чтобы получить жесткую конструкцию. Прикрепите их к конструкции крыши с помощью винтов.
Установка кровельных листовТеперь нужно обдумать, чем накрыть навес под автомобиль. Вы можете использовать поликарбонат, или оцинкованные листы. В этом примере мы будем покрывать асфальтовой черепицей, вы можете использовать металлочерепицу, принцип похож. Присоедините фанерные листы или осв плиты до крыши, как на картинке. Необходимо придерживаться определенной схемы, иначе двускатная крыша не будет достаточно жесткой. Сопоставьте листы с обоих концов и зафиксируйте их на стропилах гвоздями, каждые 15-20 см. Крайне важно, чтобы не было промежутков между листами.
Установка софитаПрикрепите фанеру, вагонку, или другой материал с внутренней стороны стропил, как на изображении, если вы хотите улучшить внешний вид проекта.
Накройте крышу навеса для машины с помощью кровельного войлока, убедившись, что полоски перекрываются не менее чем на 5 см. Закрепите смоляну бумагу (рубероид) на фанере при помощи кровельных скоб. Кроме того, отрежьте также для верхнего гребня. Установку асфальтовой черепицы начинайте в нижней части крыши. Перед началом установки всегда читайте инструкции на упаковке, так как есть виды, которые отличаются. Закрепите желоба по бокам крыши.
Автомобильный навес показано на фото спереди. Конструкция простая, поэтому она может быть изготовлена, как из дерева, так и из металла (профтрубы).
Вывод
И последнее, но не менее важное: мы рекомендуем вам позаботиться о последних штрихах. Чтобы получить профессиональный результат, заполните отверстия и зазоры деревянной шпаклевкой или герметиком и дайте ему высохнуть в течение нескольких часов. Проверьте, есть ли выступающие винты и при необходимости устраните проблему.
Совет: нанесите несколько слоев краски или лака на деревянные элементы, чтобы защитить их от разложения и повреждения водой.
Не забывайте, что вам нужно освежать краску каждые два-три года.
Спасибо вам за то, что вы прочитали наш проект навеса для автомобилей, и мы рекомендуем вам ознакомиться с другими проектами на сайте. Также вы можете просмотреть фото, на которых изображены навесы пристроенные к дому с односкатной крышей из профнастила и на кирпичных столбах, или с хозблок.
Навесы для авто фото
конструкций деревянных навесов | MyOutdoorPlans
Этот пошаговый проект включает в себя деревянных навеса для машины . Мы покажем вам идеи дизайна навесов, как для пристроенных, так и для отдельно стоящих конструкций, для одного или нескольких автомобилей. Существует множество вариантов строительства навеса в зависимости от вашего бюджета, материалов, которые вы хотите использовать, или стиля других построек на вашей территории. Кроме того, для навеса обычно требуется разрешение на строительство, поэтому вам следует выбирать планы, соответствующие требованиям законодательства.
Строительство навеса — это не только функциональность, но и возможность улучшить дизайн вашей собственности.
В этой статье мы покажем вам несколько конструкций деревянных навесов, способных защитить один или несколько автомобилей. Как вы заметите, разница между проектами значительна, как и стоимость работ и материалов, поэтому вам следует выбрать тот, который соответствует вашим потребностям. Не забудьте взглянуть на остальные наши статьи, чтобы лучше понять, что на самом деле означает строительство деревянного навеса. Большинство этих идей дизайна навеса идут с пошаговыми планами, поэтому обязательно ознакомьтесь с ними.
Подпишитесь на нас в Facebook, чтобы первыми узнавать о наших последних планах и других эксклюзивных материалах. Кроме того, подпишитесь на нас в Pinterest и получите много идей для своего двора со всего Интернета!
Деревянные конструкции навесов
Пристроенные конструкции навесов
Пристроенные навесы — отличный выбор, если у вас небольшой задний двор или если вы хотите иметь быстрый доступ к дому после выхода из машины.
Вы можете выбрать простую конструкцию навеса и выполнить работу всего за несколько дней. Это также очевидный выбор, если у вас небольшой двор, так что вы можете сэкономить место.
Чтобы построить пристроенный навес, вы можете использовать деревянные или металлические детали, в зависимости от стиля вашего дома и вашего бюджета. Смотрите пошаговый проект здесь .
Конструкции навеса для машины
Если вы хотите построить навес для машины, вы можете выбрать один из нескольких вариантов. Прежде всего, вы должны оценить альтернативы и выбрать наиболее удобный для ваших нужд и вашего бюджета.
Навес для машины легко построить, и он идеально подходит для размещения вдоль границы участка. Недостатком является то, что одна сторона конструкции подвергается воздействию дождя или снега. Тем не менее, вы можете установить решетку между столбами и решить вопрос. Смотри здесь пошаговые планы навеса .
Простой дизайн навеса
Следующий дизайн является вариацией предыдущего.
Поэтому на изображении вы видите простой отдельно стоящий навес, который защитит ваш автомобиль от непогоды и сохранит его сухим. Вы можете легко отрегулировать наклон крыши, чтобы она могла быстро сливать снег или воду, если в вашем районе много осадков.
Подсказка: Основным отличием от предыдущего примера является меньший угол крыши, а также ее высота. Этот простой дизайн идеально подходит для небольших семейных автомобилей, которые не слишком широкие или высокие, но вы можете настроить его так, чтобы он подходил для любого типа автомобиля. Смотри здесь пошаговые планы навеса .
Схемы навеса с плоской крышей
Навес с плоской крышей добавит вашему двору неповторимый вид. Если вам нравится стильный и современный дизайн, эта идея навеса должна быть в вашем списке. К счастью, я предоставил вам бесплатных плана , так что построить навес для одной машины не должно быть так сложно. Помните, что если вы живете в районе с большим количеством снега, этот навес не подходит для ваших нужд.
Вы должны выбрать навес с более крутым уклоном для крыши.
Идеи дизайна навеса
Идеи дизайна навеса
Если вы хотите построить уникальный отдельно стоящий навес и деньги не проблема, вам следует рассмотреть этот красивый дизайн. Навес с двускатной крышей — отличный выбор, так как он сочетает в себе удобство отдельно стоящего навеса с внешним видом конструкции в стиле гаража.
Вы можете прикрепить решетку или рейки к сторонам фронтона навеса и превратить его в гараж. Вы даже можете добавить несколько полок для хранения к задней части навеса и использовать его в качестве экрана для уединения. См. пошаговый проект здесь .
Конструкции двойного навеса
Если вы хотите построить большой навес, способный защитить как минимум две машины, у вас есть несколько вариантов на выбор. Первый проект представляет собой деревянную конструкцию с двускатной крышей, способной защитить два автомобиля.
Свободностоящая конструкция имеет открытые все стороны, но вы можете легко прикрепить решетку между деревянными стойками, если хотите большей конфиденциальности.
Смотрите проект здесь .
Двойной навес
Если вы хотите построить навес для более чем трех автомобилей, вы можете выбрать традиционный дизайн сарая. Как вы можете видеть на изображении, вы должны сочетать натуральные материалы, такие как камень, кирпич и дерево, чтобы создать красивый навес для машины.
Размер навеса можно отрегулировать в соответствии с вашими потребностями, но вам следует сохранить простой дизайн, если вы хотите построить неподвластную времени конструкцию.
Чертежи навеса для 2 автомобилей
Постройте навес для 2 автомобилей с плоской крышей , если вы хотите, чтобы дизайн был простым и современным. Мои планы имеют прямые линии и 5-градусный уклон крыши. Если вам важна функциональность и вы хотите, чтобы дизайн гармонировал с остальными вашими конструкциями, обязательно ознакомьтесь с проектом. Планы содержат все, что вам нужно знать, от списка вырезов до подробных схем и советов.
Планы навеса для автофургона
И последнее, но не менее важное: у меня также есть планы для навеса для автофургона .
Если вы хотите защитить свой дом на колесах или даже лодку от непогоды, вам следует ознакомиться с пошаговой инструкцией. Прелесть моих планов в том, что вы можете настроить их так, чтобы они соответствовали вашим потребностям. Как только вы поймете методы, вы сможете построить навес своей мечты за считанные дни.
Бесплатный план гаража
Если вы серьезно относитесь к поддержанию своего автомобиля в идеальном состоянии, единственный способ — построить гараж. Хотя есть много способов построить гараж, я создал бесплатные планы для этого отдельного гаража с двумя окнами и боковой дверью. Планы снабжены подробными схемами и очень простыми в использовании инструкциями. смотри мой гараж в планах здесь .
Этот проект по деревообработке включал около конструкций деревянных навесов . Если вы хотите увидеть больше планов на открытом воздухе, мы рекомендуем вам ознакомиться с остальными нашими пошаговыми проектами.
Я хотел бы видеть ваши акции, пины и Google Pluss.
Чертежи деревянных навесов | HowToSpecialist
Эта пошаговая статья о планах деревянного навеса . В этом проекте мы покажем вам, как построить навес для машины, используя простые методы деревообработки и дешевые материалы. Кроме того, большое преимущество планов заключается в том, что вы можете настроить их внешний вид в соответствии с дизайном вашего дома и остальной части вашего двора, используя те же основные методы столярного дела. Если вы ищете простую конструкцию для защиты своего автомобиля от непогоды, но не хотите вкладывать деньги в модный гараж, тогда вам следует обратить внимание на наше руководство по сборке своими руками.
После того, как вы построили основную конструкцию навеса, вам нужно установить кровельное покрытие. Поэтому вам следует выбирать между несколькими альтернативами: с одной стороны, вы можете установить 3/4-дюймовые фанерные листы, битумную бумагу и битумную черепицу, а с другой стороны, вы можете выбрать более простое и дешевое решение – ПВХ или металлические кровельные листы.
Как мы уже отмечали, у каждого из этих методов есть свои плюсы и минусы, поэтому принимайте решение, исходя из вашего бюджета и потребностей.
Прежде чем строить навес, вы должны тщательно спланировать каждый аспект вашего проекта. Таким образом, вы должны принять во внимание высоту готовой бетонной плиты перед установкой столбов в бетон или перед установкой металлических анкеров на место. Внимательно измерьте столбы, убедившись, что их вершины находятся на одном уровне, иначе вы не сможете построить крышу навеса. Если земля не ровная, вы должны учитывать различия при планировании строительства. Посмотреть все мои Премиум планы в магазине .
Сделано из этого плана
Планы деревянного автомобиля
Планы деревянного автомобиля
Материалы
- A — 6 Tube Form
- B – 6 регулируемых анкеров для стоек АНКЕРЫ ДЛЯ СТОЛБ
- C – 3 куска бруса 4×4 длиной 84 дюйма КОРОТКИЕ СТОЛБЫ
- D – 3 шт.
пиломатериала 4×4 116 дюймов ДЛИННЫЕ СТОЛБЫ - E – 2 бруска 2×6 или 2×8 длиной 20 футов БАЛКИ
- F – 2 отрезка бруса 2×6 или 2×8 длиной 127 1/8 дюйма (15º надрезы на обоих концах) КОНЦЕВЫЕ СТРОИЛА
- G – 9 кусков бруса 2×4 длиной 124 1/4 дюйма (срезы по 15º на обоих концах) СТРОИЛА
- H — 10 кусков бруса 2×4 длиной 22 1/2 дюйма БЛОКИРОВКА
- I – 8 брусков 2×4 длиной 15 дюймов (под углом 45º с обеих сторон) ПОДТЯЖКИ
- J — 220 кв. футов фанеры 3/4 КРОВЕЛЬНЫЕ ЛИСТЫ
- K – 220 кв. футов толя ПОДКЛАДКА КРЫШИ
- L – 220 кв. футов битумной черепицы АСФАЛЬТНАЯ ЧЕРЕПКА
- M – брус 2×2 РЕШЕТКА
- N – 4-дюймовые шурупы ВИНТЫ
Инструменты
- Защитные перчатки, очки, торцовочная пила, электролобзик
- Меловая линия, рулетка, уровень, столярный карандаш
- Буровое оборудование и сверла, фрезерный станок, круглое сверло 1/4 дюйма — опционально
- Миксер, лестница, тачка, лопата, экскаватор
Наконечники
- Правильно разметьте навес, используя доски и веревки
- Предварительно просверлите отверстия в деревянных компонентах, прежде чем вкручивать шурупы
- Выровняйте компоненты перед их фиксацией винтами
- Не используйте пиломатериалы, которые могут треснуть или дать усадку
Время
- Один выходной
Похожие
- Как построить навес для машины
- Чертежи пристроенного навеса
Убедитесь, что вы следите за мной на YOUTUBE и Facebook чтобы быть первым, кто получит наши последние планы и другой эксклюзивный контент.
Кроме того, подпишитесь на меня в Pinterest , чтобы получить много идей для вашего двора со всего Интернета! Посмотрите, как вы можете ПОДДЕРЖИТЕ МЕНЯ без дополнительных затрат с вашей стороны.
Как построить навес для машины
Планировка навеса для машины
Во-первых, вы должны профессионально уложить деревянный навес для машины, используя обрешеточные доски и шпагат. После того, как вы установили доски для теста, вы должны проверить углы на прямоугольность. Поэтому убедитесь, что диагонали равны, и примените правило 3-4-5 к каждому углу.
Анкеровка стойки в бетон
После того, как вы вырыли ямы (2-3 фута глубиной, 12 дюймов в диаметре), вы должны выбрать систему анкеровки. Если вы хотите установить столб в бетон, вся конструкция приобретет большую жесткость по сравнению с использованием регулируемых анкеров.
Уплотните 2-дюймовый слой гравия на дне отверстий, установите трубчатые формы и залейте 4-дюймовый слой бетона. Установите стойки на место, выровняйте их с помощью спиртового уровня и зафиксируйте двумя скобами 2×4.
Установка стоек
Если вы предпочитаете устанавливать стойки 4 × 4 с помощью регулируемых анкеров, процедура проста. После того, как вы заполнили формы бетоном, вы должны установить металлические анкеры, убедившись, что они идеально выровнены друг с другом (используйте веревку в качестве направляющих линий).
Дайте бетону высохнуть в течение 72 часов, выровняйте стойки по уровню и закрепите их распорками, прежде чем вставлять шурупы.
Создание каркаса навеса
Далее вам нужно прикрепить балки 2×6 (вы также можете использовать доски 2×8) к стойкам, как показано на рисунке. Если вы правильно установили стойки, балки должны быть идеально горизонтальными (используйте спиртовой уровень, чтобы проверить его уровень).
Изготовление стропил для навеса
Соберите стропила для навеса из бруса 2×4, используя информацию на схеме.
Планы крыши с наклоном к навесу
После этого вы должны построить концевые стропила и установить их на место с помощью 4-дюймовых винтов. В наших планах навес для машины с уклоном крыши 15 градусов, чтобы правильно сливать воду. Поэтому приходится подрезать концы стропил под 15º.
Стропила 2×4 должны быть расположены на одинаковом расстоянии друг от друга, поэтому убедитесь, что вы размещаете их через каждые 24” OC. Поместите доску 22 1/2 дюйма между стропилами, чтобы получить одинаковые зазоры с обоих концов.
Крепление стропил угловыми скобами
Правильная установка стропил важна для жесткости конструкции, поэтому необходимо использовать правильные методы.
Кроме того, используйте угловые кронштейны или подвески для балок, чтобы закрепить стропила обеими руками. Вверните соответствующие винты и убедитесь, что вы не перетянули их.
Строительство крыши навеса
Перед установкой кровельных листов необходимо установить блоки 2×4 между стропилами. Как вы можете видеть на изображении, вы должны расположить их посередине стропил и закрепить 3-дюймовыми винтами, вставленными в стропила.
Установите 3/4 листа фанеры (прибейте их гвоздями через каждые 10 дюймов вдоль стропил), рубероид и установите дренажные заглушки по краям крыши. Установите битумную черепицу, убедившись, что она выступает на 1/2 дюйма со всех сторон.
Чертежи деревянного навеса

Строительство навеса для одной машины
Навес для машины, вид спереди, имеет приятный внешний вид и аккуратный дизайн. Обязательно позаботьтесь о последних штрихах. Кроме того, взгляните на остальные планы навеса, чтобы найти больше идей для строительства.
Чертежи деревянного навеса Бесплатно
Если вы хотите уединения или уникального дизайна, вам следует установить решетки с обеих сторон деревянного навеса, прямо между деревянными стойками. Кроме того, вы должны установить решетку на задней стороне навеса. Если вы использовали анкеры для столбов, вам также следует установить скобы 2 × 4, чтобы прикрепить столбы к балкам. Обрежьте концы раскосов под углом 45º и зафиксируйте их оцинкованными винтами.
Умный совет: Вы можете добавить решетчатые панели между деревянными стойками в соответствии с вашими потребностями и вкусами. Вы можете установить диагональные шпалеры разных размеров только на несколько сегментов или с обеих сторон и на задний конец.
м. фанеры, осб плит;
Не забывайте, что вам нужно освежать краску каждые два-три года.
пиломатериала 4×4 116 дюймов ДЛИННЫЕ СТОЛБЫ