Шкаф-купе своими руками. Мастер-классы: 370 фото + Чертежи
Шкаф купе, это удобно, красиво, практично и функционально. Как сделать шкаф-купе своими руками? Не простая задача, но реальная. Посмотрите 20 примеров различных конструкций, с чертежами, схемами и пошаговыми фото. Шкаф с раздвижными дверями — это абсолютная необходимость в современных интерьерах, позволяет эффективно использовать свободное пространство и создавать удобную зону хранения.
В статье вы найдете:
- Как собрать шкаф-купе своими руками
- Монтаж корпуса и дверей шкафа купе
- Шкаф-купе наполнение внутри
- Корпусной шкаф-купе своими руками
- Встроенный шкаф-купе своими руками
- Угловой шкаф-купе своими руками
- Радиусный шкаф-купе своими руками
- Как сделать двери шкафа-купе своими руками
Из этой статьи вы узнаете:
Пошаговые фото изготовления 4 видов шкаф-купе
Корпусный
(пошаговые фото) 
Угловой
(с пошаговыми фото)
Встроенный
(с пошаговыми фото)
Радусный шкаф-купе (радиальный)
80 схем размещения
(вещей и полок в шкафу)
53 чертежа эскиза и макета с размерами Корпусных шкаф-купе
54 чертежа эскиза и макетов с размерами Угловых шкаф-купе
105 чертежей эскизов с размерами и макетов Радиусных шкаф-купе
55 чертежей эскизов и макетов с размерами Встроенных беседок
В конце статьи 4 фото подборки самых лучших вариантов различных моделей шкаф-купе (более 150 отборных моделей) 
Корпусные шкаф-купе
Корпусными шкафами купе называют обычные шкафы, но с раздвижными дверями. В отличие от встроенных у корпусных есть задняя стенка, и в отличие от угловых и радиальных корпусные имеют прямоугольную форму.
Как сделать шкаф-купе своими руками от А до Я
(пошаговые инструкции и мастер классы)
Здесь представлена обзорная инструкция, из которой вы узнаете, как сделать шкаф-купе своими руками, что такое шкаф купе и какие бывают виды этой конструкции. Полностью статью можно прочитать на сайте автора, ссылки найдете под галереями с пошаговыми фото. Эксплуатационная функциональность современной мебели должна сочетаться с эстетически привлекательным внешним видом. Таким требованиям полностью отвечают современные системы купе с раздвижными дверями.
Если вы решили сделать шкаф-купе своими руками, следует решить вопрос оформления фасада. Нельзя допускать диссонанса внутреннего наполнения шкафа с его внешним оформлением. Следует выбирать самый приемлемый вариант. Оформить можно
- зеркалом
- просто стеклом
- ДСП/МДФ . (Преимуществом ДСП является возможность фотопечати, хотя выбор цветов и так огромен)
- Натуральное дерево — вообще идеальный, долговечный вариант, но дорогой, поэтому применяется не слишком часто.
Фото мастер класс (из 3-х частей)
Ниже в галерее представлены пошаговые фото, на которых отображен процесс сборки шкафа купе своими руками, правда, не полностью. Пригодятся при изготовлении шкафа купе любой!!! конфигурации. Показано даже руководство по маскировке шляпок конфирматов.
1-я часть: как наклеить кромочную ленту на торцы заготовок
2-я часть: сборка каркаса
3-я часть: изготовление дверей и сборка раздвижной системы
Источник фото: http://stroysvoimirukami.ru/kak-sdelat-shkaf-kupe-svoimi-rukami/
40 чертежей: корпусный шкаф-купе
Смотрите всю коллекцию чертежей (+ пошаговые фото изготовления) в этой статье https://novamett.ru/shkaf/korpusnye-shkaf-kupe
Обязательно посмотрите видео:
Советы по шкаф-купе (кратко, ёмко, по делу)
Много полезного и нужного в компактном изложении по проектированию шкафов купе. Больше просто не найти !!!
240 фото: корпусный шкаф-купе
Внимание!!! Данная фото галерея находится на самой странице о корпусных шкаф-купе, здесь же мы её решили не размещать по причине риска перегрузки страницы огромным массивом фото, поэтому переходите по ссылке под этим коллажем. 
Смотрите всю коллекцию чертежей (+ пошаговые фото изготовления) в этой статье https://novamett.ru/shkaf/korpusnye-shkaf-kupe
Встроенный шкаф-купе
Встроенным шкаф купе называют шкаф с раздвижными дверями, у которого отсутствуют днище, крыша и задняя стенка.
Встраиваемый шкаф купе своими руками


Обо всем этом, включая список инструментов, сборку, установку оборудования и раздвижных дверей вы можете прочитать в инструкции на сайте.
Источник фото: строительство-отделка-ремонт.рф/dizajn/khend-mejd/478-shkaf-kupe-svoimi-rukami-poshagovye-foto-instruktsiya-i-chertezh
Видео: Шкаф купе (Встроенный) своими руками. Очень подробно!!!
40 чертежей: встроенный шкаф-купе
Смотрите всю коллекцию чертежей (+ пошаговые фото изготовления) в этой статье https://novamett.ru/shkaf/vstroennyj-shkaf-kupe
240 фото: встроенный шкаф-купе
Внимание!!! Данная фото галерея находится на самой странице о встроенных шкаф-купе, здесь же мы её решили не размещать по причине риска перегрузки страницы огромным массивом фото, поэтому переходите по ссылке под этим коллажем.

Смотрите всю коллекцию чертежей (+ пошаговые фото изготовления) в этой статье https://novamett.ru/shkaf/vstroennyj-shkaf-kupe
Угловой шкаф купе
Ниже представлена самая простая модель такой разновидности шкафа.
Как сделать угловой шкаф-купе
Угловой шкаф купе, это очень популярная модель мебели, особенно для малогабаритных квартир. Существует тысячи вариантов, в чем вы наверно уже убедились, просматривая фотографии в интернете.
Здесь представлен относительно простой пример, как сделать угловой шкаф купе своими руками.
По сути это обычные полки треугольной формы в углу комнаты, закрытые раздвижными дверцами.
Универсальная конструкция для любого помещения, можно использовать в качестве шкафчика для инструментов, как в данном случае, так и для других целей. Все зависит от размеров и внутреннего оборудования. Если сделать объем побольше, получится отличный шкаф купе для белья, обуви, одежды, да чего угодно.
Как сделать этот шкафчик, можно прочитать в подробной инструкции на сайте автора.

Пошаговые фото собраны в небольшом коллаже.

Автор: Олег Щербаков.
Источник фото: www.umeltsi.ru/kvartira/4431-uglovoy-shkaf-kupe-svoimi-rukami.html
40 чертежей: угловой шкаф-купе
Смотрите всю коллекцию чертежей (+ пошаговые фото изготовления) в этой статье https://novamett.ru/shkaf/uglovoj-shkaf-kupe
Видео: угловой шкаф своими руками
240 фото: угловой шкаф-купе
Внимание!!! Данная фото галерея находится на самой странице об угловых шкаф-купе, здесь же мы её решили не размещать по причине риска перегрузки страницы огромным массивом фото, поэтому переходите по ссылке под этим коллажем.

Смотрите всю коллекцию чертежей (+ пошаговые фото изготовления) в этой статье https://novamett.ru/shkaf/uglovoj-shkaf-kupe
Радиусный шкаф-купе
К сожалению пошаговых мастер классов по изотовлению радиальных шкафов купе в домашних условиях практически нет в интернете. В основном, все представленные в сети модели являются заводскими изделиями. Дело в том, что радиусные двери изготовить самостоятельно без специального оборудования практически не возможно.
Видео: Радиусный шкаф купе своими руками
40 чертежей: радиальный шкаф-купе
Шкаф купе своими руками, проектирование, деталировка, а также этапы работ

Наличие ниши и желание грамотно задействовать имеющееся пространство многих подвигает к мысли сделать шкаф купе своими руками, изготовить которые вполне возможно самостоятельно. Есть умельцы, которые переоборудуют под шкаф щиты от старой мебели. Предлагаем подробнее узнать, что же необходимо, чтобы в доме появился добротный шкаф купе и можно ли действительно все сделать самому без привлечения специалистов мебельщиков.
Проектирование и деталировка
Практика показывает, что для тех, кто не занимается столярными работами на постоянной основе, может быть выгодно обратиться к специалистам для распила деталей, составления точного чертежа, так как некачественное выполнение работы на этих этапах может повлечь за собой существенные дополнительные расходы, которые сведут на нет все попытки экономии.
Прежде чем приступить к изготовлению шкафов купе для приглянувшихся частей вашего дома, необходимо определиться, каким будет выбранный тип конструкции:
- корпусная, которая может располагаться как в углу, так и во всю стену;
- встроенная, для которой самое место в нише, или части узкой комнаты, например, угла.
Для того, кто самостоятельно уже занимался изготовлением шкафа, имеет опыт работы с инструментами, либо построил своими руками дом, изготовление шкафа не составит труда. При выборе простой конструкции главное — правильно определиться с размерами изделия.
Идеально, если вы владеете программами, позволяющими создавать чертежи и схемы, но чаще всего энтузиасты, чтобы правильно сделать планировку шкафа купе своими руками чертежи выполняют на бумаге «миллиметровке», той самой, что используется на уроках черчения. Это помогает качественно выполнить масштабирование в домашних условиях без специальных приспособлений, программного обеспечения.
Чтобы выбрать наиболее удачный вариант конструкции, можно предварительно сделать фото места, где планируется установка корпусного или монтаж встроенного шкафа, и поэкспериментировать с дорисовыванием предмета мебели с учетом перспективы пространства. Если вы планируете изготовить самодельный встроенный шкаф на даче, помните, что деревянное строение в течение года претерпевает сезонную деформацию, которая связана с повышением или понижением влажности и температуры воздуха. Материал встроенного шкафа будет деформироваться вслед за стенами, на которых закреплен, что может вызвать сложности при открывании и закрывании шкафа поэтому в загородных домах предпочтительна корпусная мебель.
Проектируя внутреннее наполнение, учитываются фактические и рабочие габариты:
- толщина полок, панелей корпуса;
- пространство, которое займет система направляющих купе;
- рабочая глубина полок шкафа;
- высота крепления вешала;
- статичные, выдвижные секции.
В зависимости от расположения в комнате, конфигурации (прямой, угловой) в шкафу могут образовываться «мертвые зоны» — труднодоступные, неудобные для использования места. При проектировании учтите эту особенность и либо обустройте в такой зоне отсек для редко используемых вещей, либо модифицируйте за счет грамотного внутреннего наполнения, чтобы пространство стало максимально функциональным – стойка, встроенный комод, система вешал.
Сделав предварительный чертеж шкафа, лучше отдать его проектировщику, который сделает в программе тщательную проработку. При проверке могут быть выявлены, скорректированы всплывшие огрехи, неучтенные параметры. Не делайте шкаф излишне глубоким, в противном случае вам будет очень сложно доставать вещи из-под стенки. Ширина полок не должна превышать длину вытянутой руки. Кроме того, при планировании размещения вешал в шкафу, нельзя допустить, чтобы одежда терлась при движении дверей.





Материалы и инструменты
Чтобы изготовить самостоятельно шкаф купе требуется приобрести материал и убедиться, что в наличии имеются необходимые инструменты:
- электродрель, шуруповерт;
- отвертка, сверла для работы по дереву, фанере, МДФ или ДСП;
- ножи – косяк и канцелярский;
- фиксатор для деталей, струбцины, резиновую киянку;
- для конфирмата – шестигранный ключ, биту;
- рулетку, шило, карандаш, угольник;
- утюг, мелкозернистую наждачную бумагу для кромкования.
Этого набора вам вполне хватит, чтобы произвести сборку конструкции. Для работы с утюгом также позаботьтесь о защите рук, запаситесь перчатками. На контролирующую руку лучше надеть сразу 2, чтобы избежать ожога.
При сборке корпуса рекомендуют использовать направляющее устройство и струбцины, чтобы добиться соединения с углом 90о. Как правильно использовать направляющие можно посмотреть в обучающих видео, где наглядно демонстрируется последовательность сборки.
Теперь переходим к материалам. Часто велик соблазн сделать новый шкаф из старого. Вы можете позаимствовать от старого шкафа отдельные детали – например, ящики или полки для внутреннего устройства. Переделать шкаф полностью, без покупки новых материалов может стать проблемой в плане сопоставления деталей и материалов. Кроме того, материал старого шкафа мог деформироваться за время эксплуатации и в дальнейшем дать перекос уже новому изделию.
Лучший вариант приобрести новые материалы для изготовления деталей. Деревянный шкаф может быть выполнен из ДСП, МДФ, массива дерева.
| Материал | Преимущества | Особенности |
| ДСП, ЛДСП | Относительно низкая стоимость, большой выбор фактур и расцветок. Высокая прочность, отлично подходит для фасадов. | Пригодна для простых конструкций, плохо поддается тонкой обработке. |
| МДФ | Практичный, доступный материал, легко обрабатывается. Большой выбор решений по оттенкам и фактуре. | Стоимость дороже, чем у ЛДСП и ДСП. |
| Массив дерева | Экологичный, натуральный материал, гарантирующий длительный срок эксплуатации. | Высокая стоимость материала, сложности в обработке, если материал имеет дефекты на поверхности. Древесина чувствительна к перепадам влажности, может разбухать и без должного ухода рассыхаться. |
Купе из дерева станет по-настоящему украшением дома, в случае если вы обладаете столярными навыками. Делать мебель из дерева своими руками отваживаются не все, так как материал требует понимания. Чаще всего шкафы изготавливают из мебельного щита – специально изготовленной древесной плиты, прошедшей необходимую обработку еще на производстве. Делать шкаф купе из фанеры не рекомендуется. Материал дешевый, но не обладает достаточной прочностью и весьма тонкий. Если же у вас есть куски из фанеры своими руками можете выпилить заднюю стенку или днища для внутренних ящиков.

Инструменты

Крепежи

ДСП
Подготовка деталей
Если ранее вы уже смотрели фото по подготовке деталей, то понимаете, что в случае таких масштабных конструкций очень важно четко следовать чертежу. В обязательном порядке делаем предварительную разметку деталей. При распиле не забудьте принять во внимание тот факт, что пропил может отнять требуемые миллиметры и тогда полка или другая деталь окажется меньше чем нужно, немного отступайте от края.
При идеальном развитие событий раскрой делают на высокоточных станках в мебельной мастерской. Заказать раскрой полотна – лучшее решение, которое позволит сберечь время и деньги, ведь в случае ошибки, то придется дополнительно докупать материал. Забрав детали, пронумеруйте их в соответствии с чертежом, чтобы сборка шкафа купе своими руками была организована так, как требует описание алгоритма – горизонтального или вертикального.
Изготавливаем весь набор деталей. Кроме того, некоторые мастера рекомендуют для сборки сделать направляющую с углом строго 90о. Далее с помощью нее можно куда быстрее соединить детали корпуса так, чтобы не было перекоса, что особенно важно, если вы выбрали горизонтальный тип сборки шкафа, то есть собрать на полу, а после поднять и установить.
Направляющая и струбцины станут незаменимыми помощниками на дачном участке, так как в загородных деревянных домах бывает сложно найти идеально ровную поверхность для работы.


Нанесение кромки
Если вы никогда не занимались кромкованием, то для начала посмотрите урок. Благодаря специальной ленте кромку, то есть место распила, легко обработать самому. К материалу прилагается подробная пошаговая инструкция. Есть мастера, которые рекомендуют проводить кромкование на деталях, задействованных в видимой зоне. Но с другой стороны, кромка предохраняет место распила от попадания влаги и пыли.
Ленту просто наклеить самостоятельно, закрепив клейкую сторону и прогрев для прилегания горячим утюгом. Обратите внимание, речь не о профессиональном инструменте – обычный бытовой утюг. Материал рекомендуется разогревать на режиме «2». Обязательно оденьте перчатки, чтобы не обжечь руки. После остывания, излишки ленты подрезаются и зачищаются мелкозернистой наждачной бумагой или специальным бруском, у которого есть мягкая сторона и малоабразивная. Кромкуйте по периметру все детали конструкции.

Кромка ПВХ

Сборка корпуса
Для тех, кто не оставил идеи собрать шкаф купе своими руками видео с участием профессиональных сборщиков мебели станет очень полезным пособием. Мастера подробно и простым языком рассказывают, с чего следует начинать и в какой последовательности продвигаться.
Встроенные шкафы купе монтируются чаще всего вертикально, начиная с цокольной части, далее идет крепление фальшпанелей, установка внутренних секций и полок. Последними монтируются направляющие на которые и устанавливается фасад в виде раздвижных дверей. В отличие от кухонных шкафчиков здесь не будет задней стенки и корпуса, ведь встроенная конструкция монтируется непосредственно к стене, полу и потолку ниши.
Для корпусного шкафа сборка будет осуществляться, начиная с короба корпуса, потом крепление задней стенки, полок. Далее конструкцию поднимают, устанавливая вертикально, и уже в таком положении монтируют фасад. Иногда габариты комнаты не позволяют собрать шкаф горизонтально, тогда приходится работать в вертикальном направлении.

Разметка деталей

Подготовка отверстий

Крепление деталей корпуса


Крепление перегородки

Крепление фурнитуры
Когда собираете шкаф купе своими руками, не забывайте, что качественная фурнитура способна серьезно продлить эксплуатационный срок любому предмету мебели. Современные крепежи гарантируют удержание большого веса и отсутствие острых углов, которые могли бы в дальнейшем повредить вещи или одежду.
Крепление фурнитуры осуществляется при помощи саморезов, выступающие части закрываются заглушками, которые скрывают дефекты поверхности и сглаживают поверхность, подвергшуюся сверлению. Фурнитуру приобретайте в проверенных мебельных магазинах. Это очень важно, так как за счет направляющих и крепежей осуществляется эксплуатация внутреннего пространства шкафа купе.

mblx.ru
Шкаф купе проект, этапы разработки с описанием важных моментов

Современная мебель, созданная из качественных и экологически чистых материалов, обладает высокой стоимостью, поэтому не у всех есть возможность ее приобрести. Нередко формируется неповторимый и оригинальный интерьер, для которого требуются эксклюзивные предметы обстановки. В этих случаях владелец помещения может самостоятельно создать шкаф купе как проект, по которому в дальнейшем будет изготовлена мебель. Проект может создаваться самостоятельно с использованием специализированных компьютерных программ или при соответствующей проектной организацией.
Замеры помещения
Если разобраться, как надо проектировать шкаф купе, то создать проект, в который входят чертежи, схемы, смета и деталировка, не составит труда. Первоначально надо самому произвести замеры помещения, в котором планируется устанавливать будущий шкаф.
Часто людям приходится сталкиваться с тем, что полы и стены комнаты неровны а вот мебель создается стандартно ровной, поэтому во время замеров учитываются все имеющиеся перекосы и иные недостатки на поверхностях.
Чтобы правильно произвести замеры, выполняются простые действия:
- с помощью стандартной рулетки или лазерного уровня определяются высота и ширина стен, причем выполнять этот процесс надо из разных участков комнаты;
- высота измеряется минимум в трех точках;
- ширина измеряется относительно потолка и пола, причем на той глубине, где планируется устанавливать шкаф купе своими руками;
- определяется, где на разных поверхностях имеются выступы, углубления, радиаторы отопления, проемы окон или дверей, а также розетки и иные объекты, которые располагаются рядом с предполагаемым местом монтажа мебели;
- важно убедиться, что установке предмета не будут мешать посторонние предметы, а также он не будет перекрывать розетки или иные важные элементы.
Если во время замеров обнаруживаются значительные перекосы или неровности стены или пола, то желательно выполнить их выравнивание, так как иначе грамотно сделанный шкаф будет стоять неустойчиво. На основании полученных сведений от измерения можно создавать проекты будущей мебели с учетом предполагаемых мест установки. Желательно сделать фото комнаты и начертить ее схему на листе или в компьютерной программе.

Правильные замеры помещения
Создание проекта
Спроектировать шкаф достаточно просто, особенно с помощью современных компьютерных программ, в которых все расчеты делаются автоматически. Обладая необходимыми навыками, вы сможете сделать чертежи и схемы своими руками. Также можно воспользоваться примерами с фото, на основании которых изготавливаются детали, после чего соединяются друг с другом в единую конструкцию.
Желательно одновременно с формированием проекта продумать дизайн будущей мебели.
Сам проект состоит из частей:
- общий вид будущего шкафа, представленный фото или обычным рисунком, причем его можно нарисовать от руки или с помощью компьютера;
- чертежи, причем на одном из них должно иметься полностью все изделие, а также создаются отдельные чертежи для важных частей шкафа, являющихся наиболее значимыми и сложными в создании;
- карта раскроя материалов, представленных в виде листов;
- если сама раздвижная система будет делаться своими руками, то обязательно формируется деталировка профиля;
- список необходимых крепежных элементов и фурнитуры.
Все эти документы обладают своим назначением, а совместно представлены соответствующим проектом. Они должны создаваться с учетом многочисленных требований, так как ошибки в них приводят к тому, что у полученного шкафа будут перекосы или иные дефекты.

Выполняйте чертежи очень внимательно аккуратно, ведь потом вам придётся собирать шкаф-купе именно по ним

Решите, для каких конкретных вещей вы планируете сделать шкаф купе. Сделайте их замеры и запланируйте для них место в шкафу

Составляется проект, в котором расчерчиваются все элементы шкафа купе
Корпус
Проект шкафа купе непременно включает чертеж корпуса, являющегося наиболее значимым элементом этой мебели. Фото примерных чертежей можно просмотреть ниже. Во время создания схемы учитываются основные параметры, которыми должен обладать шкаф:
- ширина — она рассчитывается в зависимости от того, какое место выделено для установки конструкции. Если она монтируется в специальную нишу, то при проведении измерений надо получить информацию о том, какова ее ширина, причем шкаф должен иметь немного меньший показатель, чтобы не возникало препятствий при его установке в эту выемку. Обычно для этого отнимается 5 см от ширины ниши. Это позволяет получить специальный технологический зазор, упрощающий монтаж или демонтаж мебели;
- глубина — этот показатель корпуса также зависит от замеров, сделанных на первых этапах работы. Оптимальным значением считается глубина в пределах от 60 до 70 мм, но если имеется слишком узкая комната, то показатель может снизиться до 35 см. Такое значение оптимально для детских шкафов. Если пользователем будет взрослый человек, то для рационального применения внутреннего пространства желательно делать шкафы купе с глубиной от 55 см;
- высота — для ее расчета используется теорема Пифагора, так как шкафы являются громоздкими конструкциями, поэтому обычно собираются на полу, после чего поднимаются в готовом виде, поэтому чтобы во время данного процесса мебель не упиралась в потолок, надо рассчитать правильно диагональ боковой стенки. Также при выборе высоты учитывается рост пользователя и его предпочтения в отношении этого показателя. Он может варьироваться от 1,5 до 2,4 м.
Вышеуказанные параметры являются основными для корпуса шкафа. При этом надо решить, какой будет создаваться дизайн, а также какие материалы будут применяться во время работы.

Как правильно замерить нишу для шкафа купе

Правильные замеры для углового шкафа купе

Обычно списка деталей с размерами достаточно для того, чтобы вам сделали распил

Раздвижная система
Для получения правильно спроектированного шкафа уделяется много внимания расчетам и выбору раздвижной системы. Существует несколько таких систем, отличающихся стоимостью, правилами создания, нюансами использования и другими параметрами.
При проектировании такой системы учитываются основные ее характеристики:
- прочность профиля, которая зависит от используемого материала, так как может применяться для этого древесина или железо, а также алюминий, причем дополнительно на прочность влияет толщина стенок, поэтому этот параметр рассчитывается в зависимости от планируемых нагрузок на систему;
- покрытие, имеющееся на профиле, на котором не допускается иметь никаких разводов, вздутий или иных дефектов, дизайн его может быть разным, но он должен хорошо подходить под цветовую гамму комнаты и выбранному дизайнерскому направлению в помещении;
- надежность ролика, являющегося наиболее слабым местом во всей системе, считается важным параметром, поэтому надо покупать только качественные элементы, а также грамотно рассчитывать места их установки вместе с направляющими, так как перекосы приводят к их уменьшению срока службы.
Большинство раздвижных систем состоит из двух направляющих, по которым двигаются ролики. Самыми востребованными считаются системы:
- роликовые — к верхней части дверок прикрепляется специальная подвеска, дополнительно фиксирующаяся с роликовым бегунком. Этот механизм может быть подвесным или опорным. За счет такого устройства системы обеспечивается ее тихое использование;
- безрамочные — на их создание не приходится тратить много средств. Представлены плитой ЛДСП, не обрамляемой профилями из стали. Внизу и вверху к дверкам прикрепляются ролики. За счет постоянного воздействия лист ДСП быстро деформируется, поэтому система считается недолговечной;
- рамочные — создаются из стали или алюминия, причем последний вариант обладает высокой стоимостью. Алюминиевые конструкции легко выдерживают высокие нагрузки или иные воздействия;
- системы, специально предназначенные для радиусного шкафа купе. Представлены изогнутым профилем, актуальным для интерьеров, в которых используются нестандартные и криволинейные формы и предметы интерьера.
Фото разных раздвижных систем можно просмотреть ниже, а выбор этой конструкции зависит от финансовых возможностей и желаний пользователей.

Сборка двери шкафа-купе

Варианты дверей

Расчет дверных полотен
Наполнение
Как спроектировать шкаф купе, учитывая все нюансы? Важно разобраться не только в корпусе с раздвижной системой, но и с наполнением конструкции. Существует много разных систем хранения, которые могут применяться для этой мебели, причем во время проектирования учитываются следующие нюансы:
- между полками оставляется расстояние не меньше 30 см, но при самостоятельном создании шкафа сами пользователи определяют этот параметр, который зависит от того, что именно будет располагаться на той или иной полке;
- если будет иметься отсек для плечиков, то глубина его не должна быть меньше 55 см;
- решается, какое нужно количество выдвижных ящиков, на схеме отмечается место их расположения, а также размер и глубина;
- выбираются разные дополнительные элементы для наполнения шкафа, к которым относятся разные выдвижные сетки, корзины, вешалки, предназначенные для галстуков, пантограф или узкие отсеки для обуви, а также встроенные гладильные доски или иные схожие предметы.
Наполнение считается важным этапом проектирования будущего шкафа, хотя при необходимости его всегда можно будет немного изменить.




Создание сборочного чертежа
Когда готовы схемы относительно основных частей будущего шкафа, формируется непосредственный сборочный чертеж, из которого можно получить информацию:
- габариты, внешний вид и параметры самого каркаса;
- разновидность и особенности устройства раздвижной системы;
- количество полок и других предметов наполнения шкафа;
- материалы, используемые для производства конструкции;
- примерная смета расходов на процесс.
Желательно разрабатывать такой проект с помощью соответствующей компьютерной программы, для чего вносятся только основные параметры будущей конструкции и автоматически производятся расчеты, делается чертеж. При наличии опыта и умений можно сделать чертеж или схему на бумаге своими руками, для чего используется карандаш и другие канцелярские принадлежности.



Подбор фурнитуры
Разные элементы, относящиеся к фурнитуре, должны быть привлекательными и качественными. Их дизайн и расцветка должны подходить к стилистике шкафа. К фурнитуре относится:
- направляющие, стопоры и ролики для создания раздвижной системы, дающей возможность комфортно открывать или закрывать шкаф;
- профиль, который может быть стальным или алюминиевым;
- крепления для полок или других систем хранения, причем желательно покупать вместо устаревших полкодержателей стяжечную систему, состоящую из флиппера и штока;
- крепежи для соединения частей шкафа, к которым относятся шурупы, саморезы, конфирматы, гвозди для мебели и крепления для штанг.
Проектирование шкафов купе считается достаточно специфическим процессом. Во время его осуществления надо учесть размеры будущей конструкции, ее дизайн и место, где планируется ее устанавливать. От правильности формирования проекта зависит надежность, долговечность и стойкость полученной мебели. Первоначально делаются чертежи основных частей конструкции, после чего формируется сборочный проект.

Ролики

Направляющие

Профиль

Фурнитура
Видео
mblx.ru
пошаговая инструкция со схемой, чертежами и размерами, которая позволяет сделать каркас и установить двери
Угловой шкаф купе представляет собой конструкцию, устанавливающуюся между двумя стенками.
С его помощью можно выгодно обыграть свободное пространство, и заполнить пустующие углы.
Отличительной чертой такой мебели являются раздвижные двери, которые позволяют сэкономить свободное место и добавляют шарма помещению.
Пошаговая инструкция
Подготовка
Форма и размер
По форме угловой шкаф купе бывает:
-
треугольным. Такой вариант устанавливается в угол. Даная конструкция не имеет боковых стенок, и все наполнение крепится к стенам.Такая мебель гармонично смотрится в квадратных комнатах. Она сглаживает и выгодно скрывает углы;
- трапециевидным. У такой конструкции с одной из сторон, предусматривается боковая стена небольших размеров, которая создает форму неправильной трапеции.
Если установить дополнительные конструкции, внутреннее пространство можно организовать довольно рационально;
- Г – образным. Самый распространенный вариант. Такая универсальная форма подходит для любых помещений. Г- образный шкаф представляет собой комбинацию из двух прямых мебельных изделий, соединенных в одно целое. Данный вариант позволяет максимально использовать внутреннее пространство, наполняя его различными составляющими;
- пятистенным. Данная форма имеет небольшие боковые стенки, делающие внутреннее наполнение функциональным. Снаружи мебель можно дополнить консолями и модулями.
Существуют стандартные схемы и размеры при изготовлении угловых шкафов и нестандартные. Стандартными схемами и размерами считаются:
-
если комната больших размеров и правильной формы, идеальным выбором станет треугольная модель. Длина сторон у такого изделия может достигать 1,2 метра.Если длину сделать около 1 метра, мебель получится мало функциональной и не вместительной. А длина около 1,5 м сделает мебельный предмет слишком громоздким. Что касается минимальной глубины, то она должна составлять 40 см, а максимальная – 60 см.
Внутреннее пространство углового изделия может быть любым. Для маленьких моделей стоит выбрать Г-образное расположение полок;
- трапециевидные модели идеально вписываются в детские, гостиные, спальни. Они подходят даже для маленьких помещений, где каждый свободный метр на счету. Модель отличается хорошей вместительностью. Стандартными размерами шкафа трапециевидной формы являются: длина стенок – 1,2 и 0,8 м, глубина 45 см;
- пятистенные изделия могут иметь высоту от 1,8 и до 2,4 м, ширину – 1,2-2,1 м, глубину – 85-100 см. Такой мебельный предмет не подходит для тесных помещений. Его лучше установить в просторной гостиной или спальне.
Совет. Специалисты рекомендуют сделать предварительный чертеж мебели на бумаге перед его изготовлением. Это позволит просчитать площадь оставшегося свободного пространства.
Что касается нестандартных изделий, то их целесообразно устанавливать в маленьких, узких и тесных помещениях. При проектировании чертежа нестандартного размера углового шкафа купе своими руками стоит учитывать, что:
- минимальная глубина шкафа должна составлять не менее 35 см. А вот максимально допустимая глубина не должна быть более 0,9 м;
- минимальная ширина нестандартного мебельного предмета должна быть не менее 0,1 м. Тогда двери будут иметь ширину – 45 см. Более узкие двери будут неудобными и эксплуатации и неустойчивыми;
- высота нестандартных изделий не имеет никаких ограничений. В зависимости от пожеланий и требований людей можно делать шкафы высотой под потолок. Но оптимально удобной высотой является 2,1 – 2,4 м.
Внутреннее обустройство
При проектировании мебели стоит продумать грамотное зонирование пространства. А именно, вам понадобятся:
- полки для вещей. Они являются основным элементом наполнения. Их можно сделать стационарными или выдвижными, сплошными, вентилируемыми, половинными или на всю глубину;
- штанги для рубашек и других коротких вещей. Чаще всего они изготавливаются из металла;
- крючки для сумок и халатов;
- полки для обуви. В верхней части на антресолях удобно хранить обувь в коробках;
- выдвижные ящики для нижнего белья и носков;
- брючницы. На них брюки всегда будут наглажены и готовы для одевания;
- штанга для галстуков. С ней удобно будет выбирать изделия. Они не будут мяться и терять форму;
- крючки для ремней;
- выдвижные корзины для мелких вещей. В них будут видны все вещи. В них удобно будет хранить браслеты, очки, часы. Внутри корзины можно поделить на отдельные ячейки.
Схема и чертеж

После того, как определились с размерами, формой, материалами изготовления и дизайном шкафа, следует начертить схему с обозначением всех внутренних отделений, ящиков, полок.
Совет. Если вы владеете ПК, можно сделать эскиз с помощью специальной программы. С ее помощью создаются как простые элементы мебели, так и довольно сложные.
При создании проекта будущей мебели важно учитывать:
- габариты изделия;
- размеры двери, цоколя и крышки шкафа;
- материалы и размеры задней части;
- внутреннее пространство – вертикальные и горизонтальные секции, ящики, полки;
- наличие антресолей;
- расстановку фурнитуры.

Материалы и инструменты
Важным критерием при изготовлении мебели является выбор расходных материалов. Для изготовления каркаса используется:
- натуральное дерево. Деревянные изделия являются самыми долговечными и экологически чистыми. Такая мебель порадует владельцев естественной красотой, интересной текстурой и фактурой. Но ее стоимость будет довольно высокой;
- МДФ. Этот материал отличается хорошими эксплуатационными характеристиками, долговечностью и доступной стоимостью. Отличительными особенностями МДФ считаются его легкость в работе, экологичность и безопасность, прекрасные декоративные качества;
- ЛДСП. Отличается практичностью, прочностью, приемлемой стоимостью, влагостойкостью и эстетичностью. Современные производители предоставляют широкую цветовую палитру ламинированного ДСП. Благодаря этому получаются стильные и оригинальные мебельные предметы.
Двери можно сделать из:
- дерева;
- пластика;
- МДФ или ЛДСП;
- каленого стекла.
Важно. Долговечность конструкций напрямую зависит от движущих механизмов. Поэтому, особое внимание стоит уделить выбору фурнитуры и направляющих. Экономить на этих материалах не стоит. Рекомендуется приобретать продукцию только хорошо себя зарекомендовавших производителей.
Для сборки шкафа по готовому проекту понадобятся следующие инструменты:
- молоток;
- шуруповерт;
- дрель;
- угольник;
- карандаш.
Также перед установкой проверьте наличие:
- готового чертежа;
- мебельного щита;
- направляющих и фурнитуры;
- ящиков, полочек, вешалок, ручек;
- дюбелей и шурупов;
- верхних и нижних фальш-панелей.
Изготовление
Как сделать элементы?
Имея на руках проект углового шкафа со всеми расчетами, можно отправляться в фирму, где вам произведут раскрой материалов.
Если же вы приняли решение сделать все детали самостоятельно необходимо:
- Из листового материала выпилить все элементы изделия: стенки, двери, полки, элементы ящиков. Сделать детали можно с помощью циркулярной пилы. Осуществить распил возможно и ножовкой, но в таком случае на деталях могут появиться сколы.
- После этого обрабатываем кромки, с помощью подходящей по цвету кромочной ленты из ПВХ. Торцевание элементов шкафа можно выполнять с помощью утюга или строительного фена.
- Прикладываем торцовку клеевой поверхностью к детали и проглаживаем утюгом или греем феном.
- Проводим по кромке мягкой тканью, плотно прижимая ее к изделию.
- Обрезаем остатки ленты ножом.
Сборка конструкции
Угловой шкаф может быть встроенным или корпусным. Процесс сборки разных конструкций несколько отличается между собой.
Для сборки встраиваемого изделия нет необходимости устанавливать заднюю стенку и угловые торцы. Процесс сборки изделия будет состоять из следующих этапов:
- При необходимости обрабатываем и выравниваем стены в комнате. Красим их или оклеиваем обоями.
- В местах будущих креплений сверлим отверстия.
- Соединяем все детали корпуса.
- Проверяем проделанную работу с помощью уровня.
- Далее переходим к внутреннему обустройству. Отмечаем расположение внутренних полок ящиков, секционных перегородок.
- Устанавливаем двери.
Каркас корпусного изделия собирается по следующему принципу:
- Делаем разметку по месту установки мебельного предмета.
- Собираем специальное устройство из металлической полоски и двух отрезков доски, соединенных углом. Также понадобятся 2 быстрозажимные струбцины. С помощью данных инструментов удобно соединять заготовки под прямым углом.
- Проверяем детали угольником и отмеряем от верхнего края 7 см.
- На верхних и нижних деталях делаем отметки для сверления и сверлим детали.
- С помощью шуруповерта закручиваем конфирмат.
- После закрепления боковин размещаем место расположения полок и делаем под них отверстия. Устанавливаем поперечину и прикручиваем все полочки.
- Далее собираем нижнюю часть мебельного предмета.
- После сборки корпуса на тыльную часть шкафа крепится лист ДВП мебельными гвоздиками.
- Устанавливаем дверь.
Установка дверей
Последним этапом сборки углового шкафа своими руками является установка дверей. Их стоит заказать отдельно в компании, которая занимается подобными системами.
Раздвижные системы состоят из следующих элементов:
- верхних направляющих;
- нижних направляющих;
- верхней части двери;
- нижней части двери;
- вертикальной стойки для боковых частей;
- уплотнительной резинки. Она не только смягчает открывание и закрывание конструкции, но и предотвращает попадание пыли;
- комплектов верхних и нижних роликов;
- скоб для закрепления дверей.
- вертикальных боковых профилей. Они бывают симметричными или ассиметричными.
- дверной наполнитель (зеркало, дерево, стекло). Выполняет чисто декоративную функцию, придавая оригинальности общему интерьеру помещения.
Важно. Все комплектующие для дверей должны покрываться защитной пленкой, которая предотвратит их порчу и появление царапин во время доставки.
Инструкция по сборке дверей выглядит следующим образом:
- Располагаем дверь в горизонтальном положении, чтобы к ней был доступ со всех сторон.
- В верхней части вертикальной стойки делаем два отверстия для крепежа – у нижнего отверстия диаметр будет – 6,5 мм, у верхнего – 10 мм.
- В нижней части крепим ролик.
- В верхнюю часть вставляем в зеркало резиновый уплотнитель и фиксируем его профилем. Укладываем уплотнитель по всему периметру.
- Далее устанавливаем вертикальный профиль с ручкой.
- Стыкуем верхний профиль с поперечиной и закручиваем винт шестигранным ключом. Винт вкручивается не до конца, так как далее в него будут установлены верхние ролики. Только после этого, винт затягивается до упора.
- Далее устанавливаем нижний профиль и затягиваем его шестигранным ключом.
- Одеваем заключительный вертикальный профиль и закручиваем шуруп с верхним роликом.
- Подготавливаем все для установки нижнего ролика, поджимаем пружину и аккуратно вставляем ролик в просверленное отверстие. Закрепляем все винтом.
- Фиксируем верхнюю направляющую. Нижнюю направляющую не прикручиваем.
- Вставляем фиксатор для двери и выставляем все по уровню. Только после проверки, что с наружной стороны при закрытых дверях образуется зазор одинаковой ширины, фиксируем нижнюю направляющую винтами.
Совет. На раздвижные системы рекомендуется устанавливать зажимы.
Фото
Если стоит выбор декорирования полученного результата, то следующие фото могут его облегчить:




Полезное видео
Весь процесс можно посмотреть на следующем видео:
Заключение
Приняв решение соорудить мебель в своей квартире, необходимо все тщательно просчитать, продумать, подобрать расходные материалы, фурнитуру. Если учесть все нюансы и детали, у вас получится создать красивый, функциональный и удобный в эксплуатации угловой шкаф по самой доступной цене.
Вконтакте
Одноклассники
samodel.guru
Варианты и чертежи угловых шкафов-купе для дома
Шкафы-купе на сегодняшний день — одни из самых популярных элементов современного интерьера. И это неудивительно, ведь с помощью них можно максимально сэкономить пространство, украсить помещение и упорядочить вещи. Ну, а для владельцев небольших квартир это просто находка!
У меня в доме продолжается ремонт, и сейчас пришло время подобрать новый шкаф для спальной. Я всегда хотела иметь большую гардеробную комнату, в которой бы поместилось всё, что нужно активной девушке. Чтобы и платья, и обувь, и куртки, и постельное белье, а если еще и места для спальника и лыж найти — то это вообще мечта!
Однако в современных квартирах жилплощадь совсем не предназначена для такого женского раздолья. Тем не менее, оптимальное решение есть, и это — угловой шкаф-купе.
Угловой шкаф-купе в спальню
Шкаф в спальной. Сколько пикантных историй о горе-ухажерах и недальновидных молоденьких хозяйках хранится в его вместительных внутренностях! И если взглянуть на предметы подобных историй с другого ракурса, то такой шкаф должен действительно обладать достаточно вместительными размерами, даже если спальная комната не «блещет» своими габаритами.
- Спальная комната — это зона отдыха, спокойствия и неги, где излишек вещей способен внести дисгармонию. Обустройство спальной комнаты шкафом-купе разгрузит пространство и даст возможность наведения порядка, способствующему идеальному отдыху.

- Угловой радиусный шкаф-купе — просто потрясающее решение для небольшой, но очень уютной спальни.

- А такой шкаф станет хорошим вариантом как для спальни родителей, так и для комнаты подростка.

- Этот белый красавец занял свое почетное место в гостиной. Тем не менее, переместив его в спальню — он достойно может заменить все места хранения в спальне.

- Просто и со вкусом!

- Вот он — практически идеальный вариант для меня.

- Оригинальное размещение подсветки играет определенную роль и считается основным аспектом при создании эффекта визуального расширения пространства.

- А это уже практически полноценная гардеробная комната. Даже люстра есть!

- В дизайнерском оформлении самую важную роль играют не финансовые возможности, а правильность пропорций и расставленных акцентов для получения живого и гармоничного интерьера.

- Ну, а это решение применимо в любую из комнат. Занимает такой шкаф немало места, зато и выглядит очень эффектно!

- Предлагаю тебе ознакомиться с чертежом небольшого углового шкафа.

- А такой шкаф может украсить спальню маленькой принцессы или юного рыцаря.

- Просто шикарный чертеж радиусного углового шкафа-купе.

- А это чертеж большого и просторного гардеробного уголка.

- Думаю показать мужу эту схему. Это именно то, что нужно для нашей спальни!

- Еще один хороший чертеж шкафа.

- Просторно и светло!

- Совсем не большой, но достаточно вместительный.

- Увеличению пространства и лучшей освещенности способствуют зеркала, установленные в створках шкафа-купе.Это могут быть, как цельные зеркальные панели, так и инкрустированные при помощи пескоструйной печати с различными изображениями.

- А такой шкаф — просто рай для любой женщины.

- Отличное решение для любителей скругленных и волнообразных форм.

- Этот вариант придется по душе всем влюбленным в восточную культуру и их искусство.

- Я просто в восторге от этого решения. Вместится всё по-максимуму!

- Стильная идея. Пожалуй возьму на вооружение!

- Трапециевидная конструкция углового шкафа-купе имеет различные конфигурации и самый эффектный внешний вид. Как правило, такие устанавливают в больших просторных спальнях.

- Очень мило, не правда ли?

- А как тебе такой вариант. Интересно и очень функционально!
С помощью углового шкафа-купе можно использовать пространство помещения максимально полезно и рационально. Ведь этот элемент интерьера занимает минимальную площадь, довольно вместительный, имеет красивый внешний вид, а его раздвижные створки не создают физических неудобств.
И если ты, как и я, ищешь подходящее решение для своей спальни — непременно закажи или сделай такой шкафчик.
Также предлагаю тебе ознакомиться с интересными идеями применения гипсокартона в интерьере.
Красивого тебе ремонта, удачных интерьерных находок и вдохновения. Поделись этими полезными и интересными идеями со своими друзьями — они будут благодарны тебе за это.
Сергей
remont.boltai.com
как нарисовать чертеж шкафа в программе Компас 3Д
Итак, в прошлом уроке мы сделали дизайн проект, а теперь на его основании нам нужно создать сборочный чертеж шкафа купе, по которому мы будем делать деталировку и, собственно, выполнять сборку.

Нарисовать чертеж можно и от руки, но это не совсем удобно в плане измерения деталей, да и по вычислению разных расстояний и отступов тут вам будет тяжелее.
Делать чертеж я буду в программе Компас 3D. Это продукт русских разработчиков, программа очень легка в освоении и не потребует от вас много сил и времени.
Рисуем чертеж шкафа в программе Компас 3D
Мы не будет полностью изучать ее возможности, а разберем лишь те инструменты, которые нам понадобятся непосредственно для создания схемы шкафа. Сейчас вы сами удивитесь на сколько это просто.
Итак, запускаем программу, и нажимаем кнопку «Создать», далее «Чертеж». В открывшемся окне появился новый документ, на котором мы и будем рисовать. Так как чертить мы будем в измененном масштабе, то начинать необходимо не на самом листе, а в любом пустом месте, а потом мы его просто перенесем на лист и распечатаем.

Сначала нам нужно отобразить вид шкафа не сбоку или сверху, а спереди.
Отрисовка габаритов шкафа: порядок действий
- Начать нужно с верхней границы (крыши шкафа). На панели «Геометрия» выбираем инструмент «Отрезок» и начинаем чертить линию — на свободном участке ставим начало отрезка и вводим с клавиатуры необходимую длину отрезка (в сантиметрах), и нажимаем два раза «Enter» — отрезок готов.
- По такому же принципу рисуем нижнюю границу, отмерять которую можно с помощью инструмента «параллельная прямая» — это условная линия, которую потом можно будет удалить.
- Выбираем параллельную прямую, указываем наш отрезок и вбиваем с клавиатуры расстояние отступа (все цифры ставим в сантиметрах), на котором эта параллельная прямая должна находится от отрезка, далее два раза «Enter» и условная линия готова.
- Теперь, с помощью инструмента «отрезок» (предварительно включив нужные привязки ) рисуем остальные стороны, и у нас получится прямоугольник – это будут внешние габариты нашего шкафа.
- Далее, верхней, правой и левой стороне нарисуем боковины толщиной 16 мм. Выбираем все тот же инструмент «параллельная прямая» и во внутрь от границ, сверху, слева и справа делаем отступ в 1,6 см. По условной линии с помощью инструмента «отрезок» рисуем линии. Боковины шкафа готовы.

- По такому же принципу рисуются вертикальные перегородки, полки, ящики и остальные детали шкафа.
Думаю вы уже поняли, что «отрезок» и «параллельная прямая» это и есть два самых главных инструмента, с помощью которых и создаются чертежи в этой программе.
Но для создания полноценного чертежа вам потребуются и остальные инструменты, которые мы разберем ниже.
Инструментальные панели программы Компас 3D
Панель «Геометрия»
Панель «Размеры»
Панель «Редактирование»
- «Усечь кривую» — стирает лишний отрезок
Так же вам понадобятся:
- «Привязки» — виртуальная линейка, выравнивает ваш отрезок при черчении, относительно сетки или определенного угла.
- «Ввод текста» — поле для текста
- «Выноски» — когда нужно что то пометить или обозначить
Важные отступы, которые нужно соблюдать при прорисовке шкафа
- Толщина ДСП 16 мм
- Высота цоколя 70-100 мм.
- Высота между полками 250-300 мм.
- Высота отделения со штангой 800-1600 мм.
- Пространство, которое займет направляющая выдвижного ящика – 13 мм.
- Длинна направляющих ящика всегда идет с шагом 50 мм.
- Отступ от стенки шкафа до задней стенки ящика минимум 10 мм.
- Радиусная консоль шириной 250-400 мм.
Так же следует проверить, свободен ли доступ в шкаф при открывании раздвижных дверей. Особенно это касается выдвижных механизмов и пантографа (подъемного кронштейна для плечиков). Эти выдвижные системы нужно расположить так, чтобы при открывании дверей они свободно выдвигались, не цепляясь своими краями за двери.
Обратите внимание что двери шкафа купе в закрытом положении заходят внахлест друг за друга на 20 мм.
Поэтому разбить секции ровно на пополам не получится, отделение с ящиками или пантографом следует делать меньше минимум миллиметров на 50.
В каком разрезе показывать чертежи шкафа?
Для комфортной сборки, а так же для измерения размеров деталей, которые нужно будет указать в спецификации для распила, на чертеже нужно будет отобразить следующие виды:
- Вид спереди – от сюда мы будем брать длину и ширину деталей шкафа для спецификации, а так же, с помощью инструмента «Авто размер» обозначаем здесь размеры, на которых нужно крепить полки и перегородки. Не стоит указывать размеры от полки до полки, они вам ни чего не дадут, показывайте размеры от края детали и непосредственно до точки крепления (это должна быть середина перпендикулярной плиты ДСП).
- Вид сбоку или сверху – на данном чертеже мы должны отобразить общую глубину шкафа, а так же глубину внутренних полок и всего остального наполнения, ящиков (делать это следует другим типом линии – например пунктиром или тонкой).
Так же тут показываем фигурные полки и указываем их размер и радиус округления.
Если полка или любая другая деталь имеет сложную геометрическую форму, то ее рисуют отдельно, и проставляют все необходимые для вырезания размеры.
На самом деле вся эта процедура – это обычное черчение, материал восьмого и девятого класса школы.
В общем, делайте так, чтобы вы сами могли разобраться в своем чертеже. Представьте, как вы будете крепить ту или другую деталь, и какие размеры для ее фиксации вам понадобятся.
Вот какой чертеж шкафа получился у меня:

Прямая ссылка для скачивания: Скачать чертеж шкафа купе
Если вы себе планируете делать другой шкаф купе, можете просмотреть другие сборочные чертежи шкафов
Содержание предыдущих и последующих серий проекта:
- Делаем замеры помещения
- Создаем проект шкафа купе
- Рисуем сборочный чертеж шкафа
- Фурнитура для шкафа купе
- Расчет шкафа купе
- Сборка и установка шкафа купе
- Установка дверей шкафа купе
mebsam.com
Шкаф-купе своими руками + фото, чертежи
Обновляя свой гардероб каждый сезон, вы вдруг замечаете, что новые вещи класть просто некуда. Выбрасывать одежду хорошего качества, но купленную в прошлом сезоне, не поднимается рука. Решить проблему можно, собрав шкаф-купе своими руками.
Удобные и вместительные конструкции соберут в себе вещи всех членов семьи, занимая при этом совсем небольшое пространство в помещении. В основном это место, которое мало используется и не совсем удобно для размещения других элементов мебели.
Варианты конструкций
Встроенный вариант
Если вы желаете установить в квартире или доме шкаф-купе, необходимо сделать точные замеры предполагаемого места установки элемента мебели и сделать заказ в компании, занимающейся изготовлением шкафов. Вторым вариантом будет замер места установки, самостоятельное проектирование конструкции, заказ распила деталей и монтаж шкафа-купе.
Угловой шкаф
У вас есть выбор — встраиваемые конструкции, угловые шкафы и модели отдельных проходных конструкций. Когда вы определитесь с выбором, можно приступать к самостоятельной сборке.
Типы шкафов-купе отличаются по конструкции. Если вы никогда не занимались сборкой мебели, лучше начинать с проходной модели. Эту универсальную модель можно установить практически в любом помещении.
Проходной шкаф
Во многих проектах квартир прихожую делали небольших размеров в форме прямоугольника. Если поставить обычный шкаф с распашной дверью, места совершенно не остается. Шкаф-купе с раздвижной дверью стал настоящим спасением. Его высота в основном идет до потолка, что дает максимальное использование площади. Зеркальные полотна дверей зрительно увеличивают пространство.
Материалы
Используемые материалы
Даже самый привередливый покупатель сможет найти на рынке нужный ему цвет и оттенок ламинированного ДСП, чаще всего применяемого для самостоятельной сборки шкафа-купе. Для задней стенки используют оргалит. Выбор фурнитуры в магазинах практически не имеет границ — от самых простых до изысканных причудливых форм. Дверное полотно может быть изготовлено на заказ из любого материала.
Для шкафов используют 16 мм толщины листы ЛДСП. На рынке продаются листы высотой в 2450 или 2750 мм и шириной в 1830 мм. Если желаете сэкономить деньги, уменьшив отходы материала, учитывайте эти размеры при проектировке шкафа-купе.
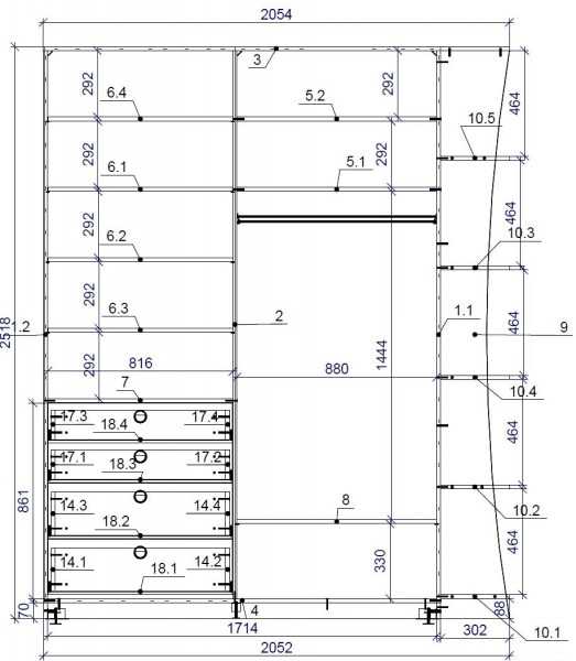
Давайте подробно рассмотрим вариант сборки шкафа-купе высотой в 2450 мм, шириной в 2400 и глубиной в 650 мм.
Деталировка

Кроме листов ЛДСП нам понадобится меламиновая самоклеящаяся кромка. Чтобы собрать шкаф представленной на картинке конструкции нам понадобятся детали:
- Две боковины размером в 2433х650 мм.
- Днище размером в 2367х650 мм.
- Крышка шкафа размером в 2400х650 мм.
- Большая полка — 2367х550 мм.
- Семь маленьких полок — 778х550 мм.
- Две перегородки — 1917х550 мм.
- Задний и передний цоколи — 2367х100 мм.
- Боковые части коробки цоколя в количестве 3 шт. и размером в 550х100 мм.
- Два ребра цокольной коробки размером в 1159х100 мм.
Детали задней стенки из оргалита:
- Широкая деталь на два отсека — 1940х1595 мм.
- Узкая деталь на один отсек — 1940х800 мм.
- Деталь для верхней части шкафа — 2395х410 мм.
Распиловку деталей будущего шкафа-купе лучше заказать в службе по раскройке, которая обязательно есть при любом строительном супермаркете. Покажите специалистам свой проект шкафа и точные замеры. В нашем случае уже есть деталировка и мастерам по распилу лучше показать ее.
Система фасадов

Делать самостоятельно систему дверей шкафа-купе можно, но нужно ли? Если вы планируете собрать не один, а несколько шкафов, это может быть выгодно. Двери для одного шкафа обойдутся вам намного дороже, чем заказанные раздвижные двери в компании производящей, поставляющей и собирающей раздвижные фасады.
Вам нужно посетить офис компании и сделать заказ, указав точные размеры чистого проема и количество полотен. Для нашего шкафа чистый размер фасада имеет высоту в 2317 мм и ширину в 2367 мм. Нам нужно сделать две створки такого же цвета как приобретенный ЛДСП и одну створку зеркальную. Обязательно должен быть уплотнитель, стопоры, направляющие. В общем весь комплект, необходимый для качественной работы раздвижной системы фасада.
Фурнитура

Все что касается фасада уже заказано, но для внутреннего оформления шкафа нужно приобрести мебельную фурнитуру. Для нашего проекта нужно купить:
- Для крепления оргалита саморезы или гвозди.
- В средний отсек шкафа для регулировки полочек по высоте нужны подполочники.
- Конфирматы размеров 70х5 мм.
- Держатели для штанг.
- Саморезы размером в 16х4 мм.
- Две штанги под плечики размером в 775 мм.
Подготовка к сборке

Когда готовые детали будут доставлены, можно приступить к их подготовке к сборке. Для работы понадобится утюг. Приобретенную кромку аккуратно приложить к торцу детали так, чтобы красивая сторона была сверху. Тщательно пройтись по ней разогретым утюгом. Посмотрите, чтобы на утюге не был включен режим отпаривания.
Разогретую кромку хорошо прижать и тщательно протереть. Обрезанные грани аккуратно обработать наждачной бумагой. При подготовке деталей не нужно торопиться. Постарайтесь достичь максимального качества работы, чтобы ваш шкаф-купе выглядел аккуратно и красиво.
Из деталей цоколя соберите основу подиума для низа шкафа. Цоколь должен быть обязательно.
Сборка
Сборка конструкции
Для сборки шкафа понадобятся:
- Карандаш и прямоугольник.
- Дрель и сверла 5 и 8 мм.
- Рулетка.
Инструменты
Инструкция:
- Для сборки деталей в одну целую конструкцию используются приобретенные конфирматы. Сначала смотрим на свой проект и делаем разметку мест крепления.
- Когда на всех деталях будут проставлены разметки, приступаем к процессу сверления. Для отверстий в плоскости используем сверло диаметром в 8 мм. Отверстие должно быть сквозным. Глубина отверстия в торцах не больше 60 мм, а диаметр 5 мм. В местах установки подполочников делаем отверстия на нескольких уровнях. Когда шкаф будет готов, можно спокойно передвигать свои полки на нужный уровень.
- Для сборки конструкции понадобится помощь одного человека. Работа пойдет быстрее и качество сборки будет лучше. Соединяем все детали шкафа и устанавливаем его на место. Выставляем шкаф ровно, используя уровень.
- Теперь можно приступить к монтажу фасада. По краю крышки шкафа прикручиваем верхние направляющие. Отступаем от края днища шкафа максимум 10 мм и закрепляем нижние направляющие. Перед тем как закручивать саморезы, вставляем стопоры в роликовую колею.
- Теперь можно вдвоем установить фасад на место. Один человек верхнюю часть фасада заводит в направляющую, а другой устанавливает колесики в нужную колею. Для регулировки фасада используется шестигранный ключ. Винты регулировочные расположены в нижней части торца фасада. Поднимая или опуская нижний ролик, устанавливаем фасад в нужное положение.
Выполнение работы
Когда шкаф-купе загрузится вещами, регулировку нужно будет повторить. Вот и завершились работы по монтажу шкафа-купе. Теперь с гордостью можно считать себя мастером и попробовать собрать более сложную конструкцию. Опыт уже есть, значит, сборка будет намного быстрее и качественнее.
Вы хотите поделиться с нами своим опытом сборки шкафа-купе? Оставляйте комментарии к статье. Нашим читателям будет интересно узнать секреты вашей успешной сборки шкафа.
Видео: сборка шкафа-купе
Предлагаем посмотреть видео по сборке шкафа купе.
Шкафы купе своими руками фото














Чертежи







Схема крепления механизма дверей
Схема монтажа шкафа купе
Сборка шкафа купе


kakpravilnosdelat.ru
треугольным. Такой вариант устанавливается в угол. Даная конструкция не имеет боковых стенок, и все наполнение крепится к стенам.
если комната больших размеров и правильной формы, идеальным выбором станет треугольная модель. Длина сторон у такого изделия может достигать 1,2 метра.
























